Bildegalleri

EIE eiendomsmegling ved Geir Einar Moen har gleden av å presentere Kommandovegen 1A.
Solgt
Persaunet
Flott 2-roms leilighet i populært område fra 2006 | God planløsning |Nærhet til "alt"| Perfekt førstegangskjøp!
Prisantydning1 300 000 kr
Nøkkelinfo
- Boligtype
- Leilighet
- Eieform
- Andel
- Soverom
- 1
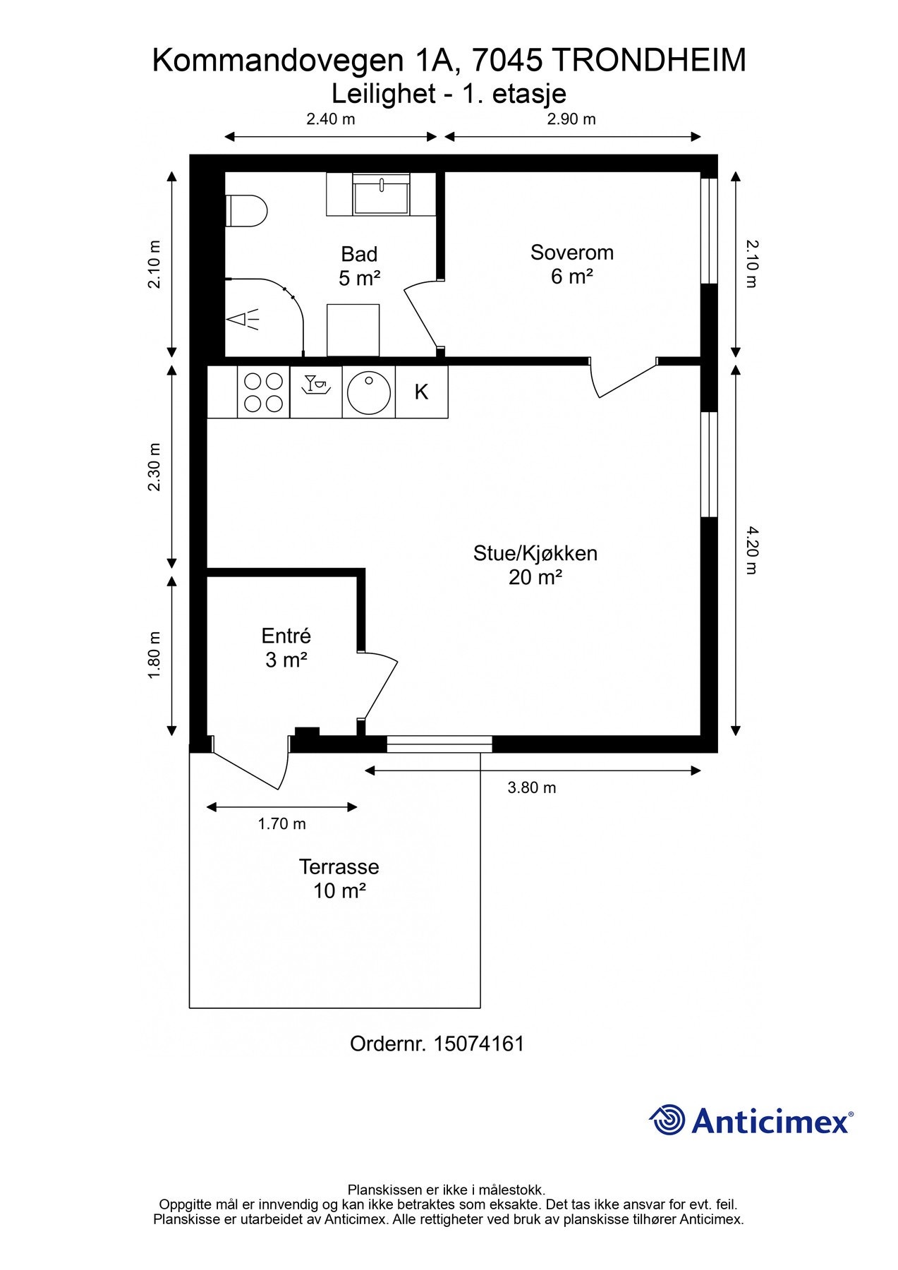
- Internt bruksareal
- 36 m² (BRA-i)
- Bruksareal
- 36 m²
- Balkong/Terrasse
- 10 m² (TBA)
- Etasje
- 1
- Byggeår
- 1942
- Energimerking
- D - Mørkegrønn
- Rom
- 2
- Tomt
- Eiet
Fasiliteter
Barnevennlig
Balkong/Terrasse
Garasje/P-plass
Kabel-TV
Offentlig vann/kloakk
Parkett
Sentralt
Bredbåndstilknytning
Moderne
Rolig
Om boligen
EIE eiendomsmegling ved Geir Einar Moen har gleden av å presentere Kommandovegen 1A! En lys og stilfull 2-roms leilighet med fantastisk beliggenhet på Persaunet.
Leiligheten har en smart og arealeffektiv planløsning som inkluderer åpen stue/kjøkken, bad, soverom, entré og terrasse på 10 kvm. De lyse fargene og naturlige innredningssonene gjør det enkelt å sette sitt eget preg på leiligheten. Boligen har en attraktiv beliggenhet på Persaunet, med gangavstand til et bredt spekter av fasiliteter. Estenstadmarka ligger kun 6 kilometer unna og byr på både tur- og sykkelstier, opplyste løyper og godt preparerte skiløyper om vinteren.
Høydepunter:
- God standard
- Sentral beliggenhet
- Terrasse på 10 kvm
- Kort vei til Estenstadmarka
- Bra kollektivtilbud
- Bod i kjeller
Velkommen til visning!
Leiligheten har en smart og arealeffektiv planløsning som inkluderer åpen stue/kjøkken, bad, soverom, entré og terrasse på 10 kvm. De lyse fargene og naturlige innredningssonene gjør det enkelt å sette sitt eget preg på leiligheten. Boligen har en attraktiv beliggenhet på Persaunet, med gangavstand til et bredt spekter av fasiliteter. Estenstadmarka ligger kun 6 kilometer unna og byr på både tur- og sykkelstier, opplyste løyper og godt preparerte skiløyper om vinteren.
Høydepunter:
- God standard
- Sentral beliggenhet
- Terrasse på 10 kvm
- Kort vei til Estenstadmarka
- Bra kollektivtilbud
- Bod i kjeller
Velkommen til visning!
NB: Knappen for å vise hele beskrivelsen har kun en visuell effekt.
NB: Knappen for å vise hele beskrivelsen har kun en visuell effekt.
Salgsoppgaven beskriver vesentlig og lovpålagt informasjon om eiendommen
Se komplett salgsoppgaveNyttige lenker
Nærområdet
EIE eiendomsmegling Trondheim sentrum
Annonseinformasjon
| FINN-kode | 417569034 |
|---|---|
| Sist endret | 03. aug. 2025 10:34 |
| Referanse | 33251122 |
Annonsene kan være mangelfulle i forhold til lovpålagt opplysningsplikt. Før bindende avtale inngås oppfordres interessenter til å innhente komplett informasjon fra meglerforetaket, selger eller utleier.





















