Bildegalleri

Velkommen til Veavegen 63!
Solgt
Sørstranda | Tiltalende bolig med alt på ett plan - 2 soverom - Stor tomt og garasje
Prisantydning1 750 000 kr
Nøkkelinfo
- Boligtype
- Enebolig
- Eieform
- Eier (Selveier)
- Soverom
- 2
- Internt bruksareal
- 101 m² (BRA-i)
- Bruksareal
- 102 m²
- Eksternt bruksareal
- 1 m² (BRA-e)
- Etasje
- 1
- Byggeår
- 1971
- Rom
- 3
- Tomteareal
- 1 754 m² (eiet)
Fasiliteter
Balkong/Terrasse
Barnevennlig
Bredbåndstilknytning
Garasje/P-plass
Hage
Kjæledyr tillatt
Ingen gjenboere
Peis/Ildsted
Rolig
Utsikt
Turterreng
Om boligen
Velkommen til Veavegen 63 - en trivelig eiendom som kan passe ypperlig som bolig eller feriested, beliggende på Sørstranda!
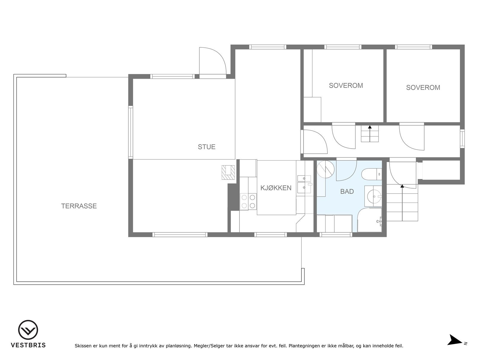
Boligen er innredet over ett plan og inneholder følgende rom:
1. etasje: Gang, bad, kjøkken/stue og to soverom.
Tilhørende utvendig bod og garasje på 32 kvm.
På sommerstid kan en nyte en kort gåtur med tilgangen til sjøen, på høsten ligger alt til rette for fjellturer i omliggende flott natur og om vinteren kan en ta i bruk Røldal skisenter med ca 1 times kjøring.
Velkommen på visning v/ påmelding til megler!
Boligen er innredet over ett plan og inneholder følgende rom:
1. etasje: Gang, bad, kjøkken/stue og to soverom.
Tilhørende utvendig bod og garasje på 32 kvm.
På sommerstid kan en nyte en kort gåtur med tilgangen til sjøen, på høsten ligger alt til rette for fjellturer i omliggende flott natur og om vinteren kan en ta i bruk Røldal skisenter med ca 1 times kjøring.
Velkommen på visning v/ påmelding til megler!
NB: Knappen for å vise hele beskrivelsen har kun en visuell effekt.
NB: Knappen for å vise hele beskrivelsen har kun en visuell effekt.
Salgsoppgaven beskriver vesentlig og lovpålagt informasjon om eiendommen
Se komplett salgsoppgaveNyttige lenker
Nærområdet
Eiendomsmegler Norge Haugesund
Best der du bor
Annonseinformasjon
| FINN-kode | 417174362 |
|---|---|
| Sist endret | 27. nov. 2025 09:32 |
| Referanse | 19250196 |
Annonsene kan være mangelfulle i forhold til lovpålagt opplysningsplikt. Før bindende avtale inngås oppfordres interessenter til å innhente komplett informasjon fra meglerforetaket, selger eller utleier.


































