Bildegalleri

Velkommen til Ormsøyveien 10A i 1. etasje - perfekt beliggenhet for en aktiv ferie.
NY PRIS! Fritidsbolig på en flate på Seløy - en perle på Helgelandskysten
Prisantydning1 670 000 kr
- Omkostninger
- 43 100 kr
- Totalpris
- 1 713 100 kr
- Kommunale avg.
- 7 158 kr per år
- Verditakst
- 1 800 000 kr
Nøkkelinfo
- Beliggenhet
- Ved sjøen
- Boligtype
- Andre
- Eieform
- Eier (Selveier)
- Internt bruksareal
- 94 m² (BRA-i)
- Bruksareal
- 160 m²
- Eksternt bruksareal
- 66 m² (BRA-e)
- Tomteareal
- 1 201 m² (eiet)
- Byggeår
- 1983
- Soverom
- 0
- Energimerking
- G - Rød
- Overtakelse
- Avklares i forbindelse med budgivning.
Fasiliteter
Barnevennlig
Bilvei frem
Båtplass
Rolig
Utsikt
Fiskemulighet
Turterreng
Visning
Alle våre visninger har påmelding. På denne måten sikrer vi at megler har god oversikt og tid til å imøtekomme alle interessenter på beste måte. Dette er veldig verdifullt for boligkjøpere og for oss. Det er enkelt å melde seg på, og du kan like enkelt melde deg av. Kontakt også gjerne megler i forkant av visning dersom du har spørsmål. Visninger uten påmeldte deltakere kan bli avlyst.
Husk å lese komplett salgsoppgave før visning. Bestill komplett, utskriftsvennlig salgsoppgave.
VisningspåmeldingOm boligen
Denne plassen er ideell for den som liker en aktiv ferie, og som gjerne vil tilbringe tid både på havet og i naturen. Det er flere toppturer i nærheten av boligen og sjøen ligger i umiddelbar nærhet. Seksjonen er etablert i et rolig og barnevennlig område med flere enheter rundt seg. Her har man bilvei helt frem til ytterdøra, og parkeringsareal er ikke mange meterne fra døra.
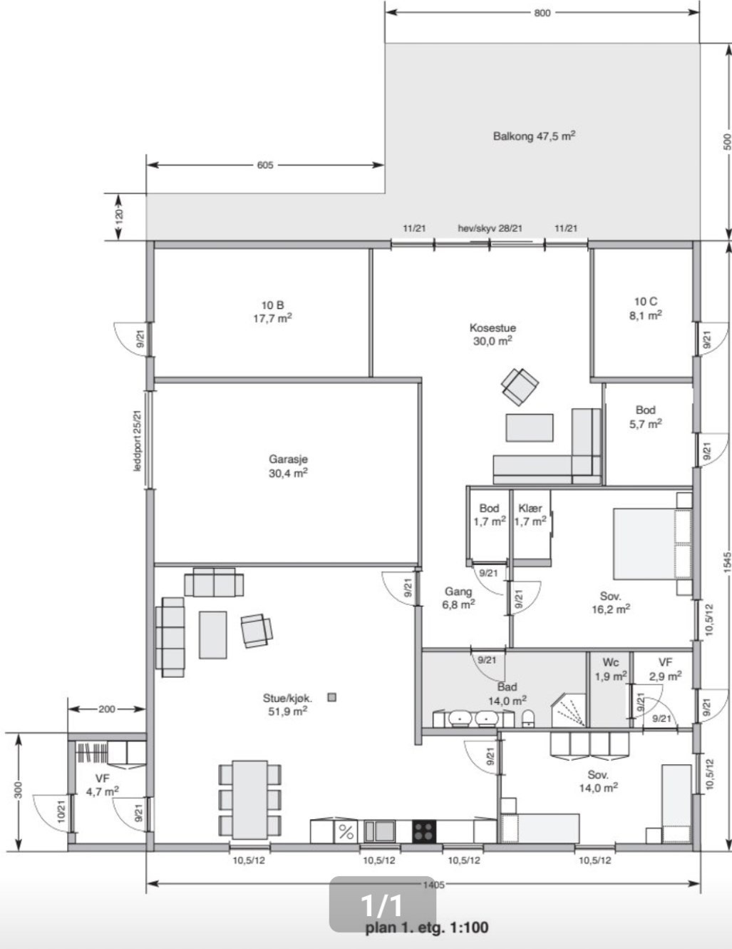
Boligen innehar i dag romslig oppholdsrom med te-kjøkken, bad, kontor, gang, rom med vaskemaskin og varmtvannsberedere samt bod og garasje. Mulighet for å kjøpe ekstra tomt som feks kan utnyttes til båtnaust.
Nydelig utsikt mot Dønnamannen, Syv søstre og hele skjærgården rundt!
Boligen innehar i dag romslig oppholdsrom med te-kjøkken, bad, kontor, gang, rom med vaskemaskin og varmtvannsberedere samt bod og garasje. Mulighet for å kjøpe ekstra tomt som feks kan utnyttes til båtnaust.
Nydelig utsikt mot Dønnamannen, Syv søstre og hele skjærgården rundt!
NB: Knappen for å vise hele beskrivelsen har kun en visuell effekt.
NB: Knappen for å vise hele beskrivelsen har kun en visuell effekt.
Salgsoppgaven beskriver vesentlig og lovpålagt informasjon om eiendommen
Se komplett salgsoppgaveNærområdet
Rede Eiendomsmegling AS
- Alltid REDE for Helgeland
Annonseinformasjon
| FINN-kode | 416487409 |
|---|---|
| Sist endret | 01. des. 2025 07:51 |
| Referanse | dd96813e-97de-472d-876d-7e9673b06da5 |
Annonsene kan være mangelfulle i forhold til lovpålagt opplysningsplikt. Før bindende avtale inngås oppfordres interessenter til å innhente komplett informasjon fra meglerforetaket, selger eller utleier.























