Bildegalleri

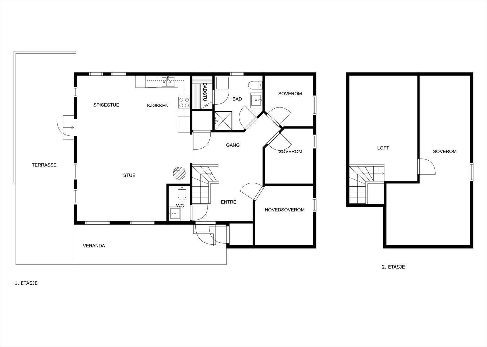
Velkommen til Fyrieggvegen 9! Lekker hytte som er oppført i 2016. Hytta går over to plan bestående av 4 soverom, stue, kjøkken, 1,5 bad, badstue og teknisk rom. Hytta ligger fantastisk til midt i bakken, med Gaustatoppen ruvende i bakgrunnen.
Inaktiv
Gausta
Moderne hytte med en fantastisk beliggenhet rett ved skianlegget! Ekte ski inn/ut. 970 moh. 4 sov., 2 stuer, badstue.
Prisantydning5 450 000 kr
- Omkostninger
- 137 600 kr
- Totalpris
- 5 587 600 kr
- Kommunale avg.
- 12 325 kr per år
Nøkkelinfo
- Beliggenhet
- På fjellet
- Boligtype
- Hytte
- Eieform
- Eier (Selveier)
- Internt bruksareal
- 102 m² (BRA-i)
- Bruksareal
- 104 m²
- Eksternt bruksareal
- 2 m² (BRA-e)
- Tomteareal
- 12 969 m² (eiet)
- Byggeår
- 2016
- Soverom
- 4
- Rom
- 5
- Energimerking
- C - Oransje
- Overtakelse
- Overtakelse skjer etter avtale med selger. Før boligen overleveres kjøper, skal fullt oppgjør og omkostninger være mottatt på meglers klientkonto.
Fasiliteter
Innlagt vann
Alpinanlegg
Balkong/Terrasse
Barnevennlig
Bilvei frem
Bredbåndstilknytning
Garasje/P-plass
Hage
Peis/Ildsted
Rolig
Utsikt
Bademulighet
Fiskemulighet
Innlagt strøm
Offentlig vann/kloakk
Turterreng
Lademulighet
Visning
Ta kontakt med Hans Petterson for å avtale visning - Tlf: +46 70-962 50 09.
Husk å lese komplett salgsoppgave før visning. Bestill komplett, utskriftsvennlig salgsoppgave.
VisningspåmeldingOm boligen
Joachim Lindhjem og Mathias Ørnes ved Nordvik har gleden av å presentere Fyrieggvegen 9!
En moderne fritidsbolig fra 2016 med en god beliggenhet. Hytta har en svært velfungerende og sosial planløsning hvor stue, spisestue og kjøkken former et sosialt allrom. Innvendig gir hytta et godt inntrykk med bl.a. store vindusflater og god takhøyde. Hytta går over to plan og inneholder 4 soverom med totalt 10 sengeplasser, ekstra tv-stue, et baderom med badstue og et ekstra toalett. På utsiden av hytta er det fin uteplass med flott utsikt mot både Gaustatoppen og nærliggende natur. To p-plasser.
Hytta ligger perfekt plassert med ski inn/ski ut til både alpint (rett ved barnebakken) og langrenn! Gangavstand til flere hyggelige fasiliteter på fjellet, samtidig er det et stille og fredelig område.
En moderne fritidsbolig fra 2016 med en god beliggenhet. Hytta har en svært velfungerende og sosial planløsning hvor stue, spisestue og kjøkken former et sosialt allrom. Innvendig gir hytta et godt inntrykk med bl.a. store vindusflater og god takhøyde. Hytta går over to plan og inneholder 4 soverom med totalt 10 sengeplasser, ekstra tv-stue, et baderom med badstue og et ekstra toalett. På utsiden av hytta er det fin uteplass med flott utsikt mot både Gaustatoppen og nærliggende natur. To p-plasser.
Hytta ligger perfekt plassert med ski inn/ski ut til både alpint (rett ved barnebakken) og langrenn! Gangavstand til flere hyggelige fasiliteter på fjellet, samtidig er det et stille og fredelig område.
NB: Knappen for å vise hele beskrivelsen har kun en visuell effekt.
NB: Knappen for å vise hele beskrivelsen har kun en visuell effekt.
Salgsoppgaven beskriver vesentlig og lovpålagt informasjon om eiendommen
Se komplett salgsoppgaveNyttige lenker
Nærområdet
Nordvik Torshov
Vi vet hva det er verdt
Annonseinformasjon
| FINN-kode | 416447165 |
|---|---|
| Sist endret | 28. sep. 2025 10:06 |
| Referanse | 29-0383/24 |
Annonsene kan være mangelfulle i forhold til lovpålagt opplysningsplikt. Før bindende avtale inngås oppfordres interessenter til å innhente komplett informasjon fra meglerforetaket, selger eller utleier.
























































