Bildegalleri

Ny og innflytningsklar Polar 98 på tomt 103
Ny hytte med fantastisk sjøutsikt midt mellom Lyngør og Tvedestrand
- Omkostninger
- 68 842 kr
- Totalpris
- 6 558 842 kr
Nøkkelinfo
- Beliggenhet
- Ved sjøen
- Boligtype
- Hytte
- Eieform
- Eier (Selveier)
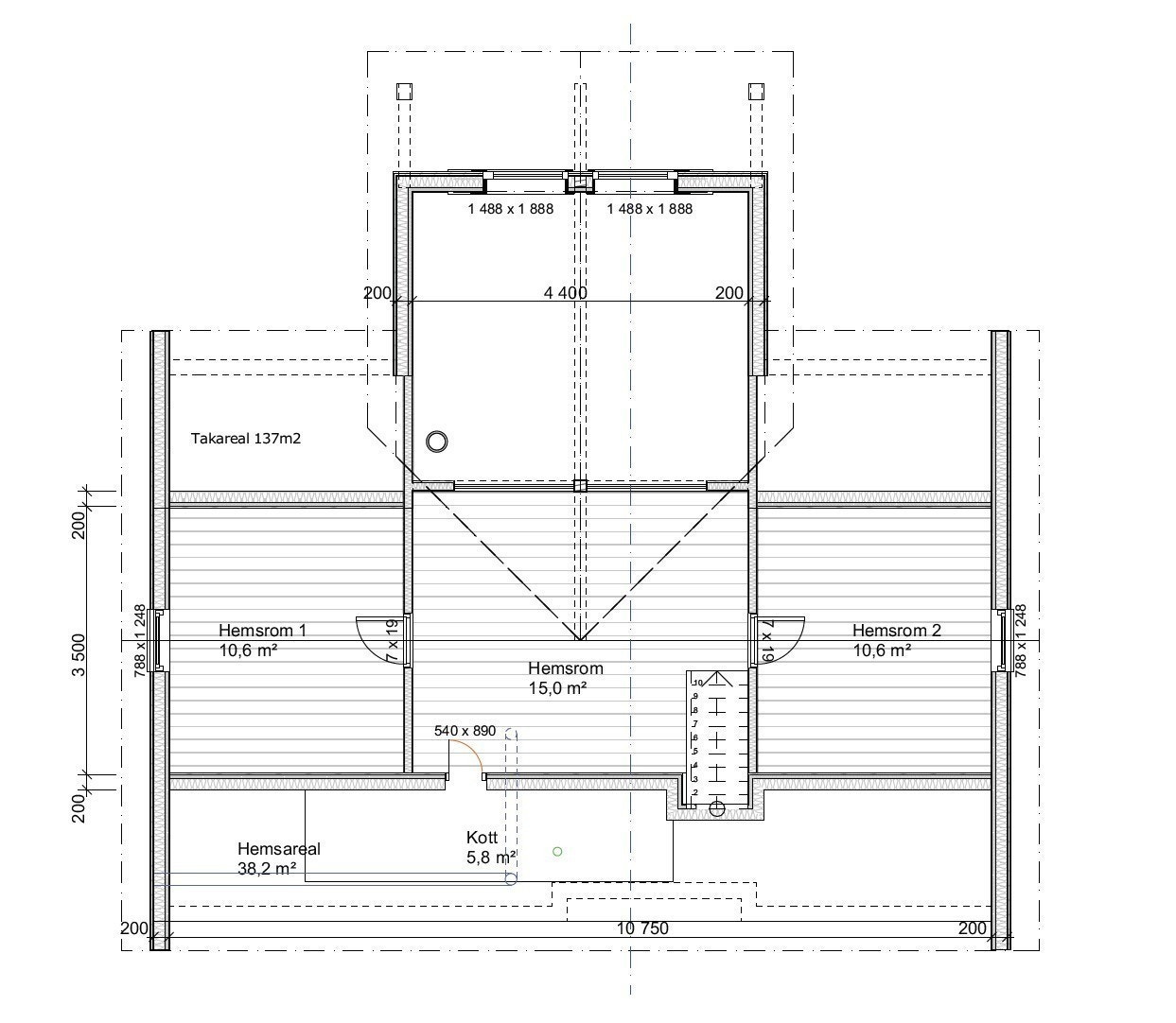
- Bruksareal
- 89 m²
- Tomteareal
- 887 m² (eiet)
- Bruttoareal
- 95 m²
- Byggeår
- 2024
- Soverom
- 4
- Meter over havet
- 68
Fasiliteter
Visning
Om eiendommen
Beliggenhet
Sammen med våre samarbeidspartnere har vi i 2024 bygd og ferdigstilt 5 nøkkelferdige hytter på noen av våre aller beste tomter! Disse er nå lagt ut for salg og her kan man flytte rett inn. Samtlige hytter har store uteområder og terrasser, gjennomtenkte interiørløsninger, utendørs boblebad og fantastiske sol- og utsiktsforhold. Finn mer info og komplette priser på alle fem hyttene på sorlandsleia.no - Her er det fastpris og førstemann til mølla som gjelder! Les mer om Polar 98 på tomt 103 litt lenger ned i annonsen.
Midt mellom Lyngør og Tvedestrand finner du Sørlandsleia, med spektakulær utsikt og sol fra morgen til kveld. Et vakkert og solrikt hytteområde som starter der bølgene slutter. Her kan du oppleve det beste sørlandskysten har å by på! Her har du mange muligheter i umiddelbar nærhet. Yrende båtliv, flotte bademuligheter, flere sosiale samlingspunkt, restauranter og aktivitetsmuligheter både for barn og voksne rett i nærheten av hyttetomtene. Det er mulighet for å leie båtplass like i nærheten av feltet.
Generelt
Polar 98 er en av bestselgerne fra Nordlyshytter. Hytta leveres med gjennomtenkt interiørpakke, overflatebehandling inne og ute, utendørs boblebad, varmepumpe, elbil-lader og stor terrasse. Hytta er innflytningsklar.
Hytta får en gjennomtenkt interiørløsning med eksklusivt eikegulv og smakfulle farger. Vi kan blant annet nevne:
- Hvite vinduer og ytterdører
- Hvitkalket stående slettpanel
- Eik Arctic gulv
- Kalk Grå kjøkken med profilert front
- Profilert listverk
- Taupe flis i entre, Walks Grey på bad
Les mer om Polar 98 på leverandørens hjemmeside: https://nordlyshytter.no/hytter/polarserien/polar-98
Adkomst/Tomteforhold
Tomt 103 måler ca. 878 kvm og ligger hhv. 4,5 og 3,5 meter høyere enn tomtene foran (tomt 102 og 104). På begge disse tomtene skal det bygges hytte med flatt tak (maks 3,5 meter mønehøyde). Det betyr at man på tomt 103 får både fri utsikt og flotte solforhold. Hytta får biloppstillingsplasser bak hytta mot veien på et noe lavere platå enn hytta. Det blir opparbeidet en fin sti fra parkering og opp til hytta.
Fra Oslo bruker man ca. 2 timer og 45 minutter med bil. Denne tiden blir ytterligere kortet ned når ny E18 gjennom Telemark og Agder står ferdig. Den enkleste måten å finne frem til feltet på er å legge inn "Sørlandsleia hyttefelt" på Google maps. Da vil du ende opp på veien opp til feltet.
Vi hjelper deg å få lave strømkostnader i ny hytte!
Investeringen som muliggjør dette dekker Tvedestrand Utvikling!
Tre viktige faktorer gjør dette mulig:
- Nye hytter har minimalt varmeutslipp sammenliknet med eldre hytter
- Topp moderne varmepumpe fra Mitsubishi
- App-basert styringssystem ”Strømkontroll” fra Futurehome
Alt dette er inkludert når du kjøper hytte fra oss.
Innhold
Standard
Salgsoppgaven beskriver vesentlig og lovpålagt informasjon om eiendommen
Se komplett salgsoppgaveNyttige lenker
Nærområdet
Tvedestrand Utvikling
Annonseinformasjon
| FINN-kode | 415952615 |
|---|---|
| Sist endret | 07. juli 2025 13:27 |
| Referanse | 103_polar98_v2 |
Annonsene kan være mangelfulle i forhold til lovpålagt opplysningsplikt. Før bindende avtale inngås oppfordres interessenter til å innhente komplett informasjon fra meglerforetaket, selger eller utleier.


















