Bildegalleri

Velkommen til Grindatunet 11G!
RÅHOLT
Nyere, lys & smakfull 3-roms hjørneleilighet |Uteplass på hele 21 m² |Kabel-TV/bredbånd & fjernvarme inkl. |Garasjeplass
Prisantydning4 300 000 kr
Nøkkelinfo
- Boligtype
- Leilighet
- Eieform
- Eier (Selveier)
- Soverom
- 2
- Internt bruksareal
- 78 m² (BRA-i)
- Bruksareal
- 86 m²
- Eksternt bruksareal
- 8 m² (BRA-e)
- Balkong/Terrasse
- 21 m² (TBA)
- Etasje
- 1
- Byggeår
- 2019
- Energimerking
- Rom
- 3
- Tomteareal
- 2 379 m² (eiet)
Fasiliteter
Balkong/Terrasse
Barnevennlig
Bredbåndstilknytning
Garasje/P-plass
Heis
Kjæledyr tillatt
Kabel-TV
Offentlig vann/kloakk
Parkett
Sentralt
Balansert ventilasjon
Visning
Velkommen til hyggelig visning!
OBS! Alle våre visninger har påmelding. På denne måten sikrer vi at megler har god oversikt og tid til å imøtekomme alle interessenter. Meld deg på visning ved å trykke på lenken visningspåmelding. Passer ikke tidspunktet, ta kontakt med megler og avtal tid for privatvisning.
VisningspåmeldingOm boligen
Velkommen til Grindatunet 11G!
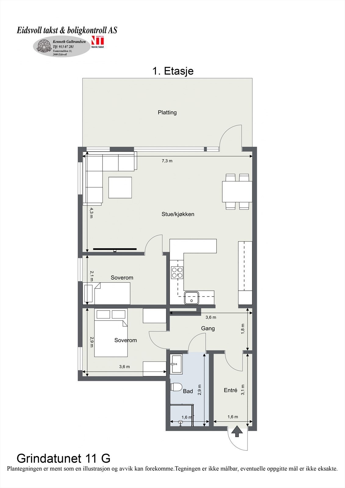
Dette er en moderne og flott 3-roms hjørneleilighet beliggende attraktivt og enkelt til i byggets 1. etasje. Leiligheten ligger i et bygg ferdig oppført i 2019, og holder en gjennomgående god standard. Boligen har en god planløsning bestående av en innbydende separat gang, pent flislagt bad, to luftige soverom, og en åpen stue-/kjøkkenløsning med utgang til en flott uteplass på hele 21 m².
Parkering gjøres trygt og godt på tilhørende garasjeplass i felles garasjekjeller.
Høydepunkter:
- Hjørneleilighet
- Trappefri adkomst
- 21 m² uteplass
- Garasjeplass
- Fyring, kabel-TV/bredbånd inkl.
Her vil du bo attraktivt og sentralt til med kort vei til dagligvare, Amfi Eidsvoll og svømmehall, og Eidsvoll verk stasjon med flere togforbindelser.
Dette er en moderne og flott 3-roms hjørneleilighet beliggende attraktivt og enkelt til i byggets 1. etasje. Leiligheten ligger i et bygg ferdig oppført i 2019, og holder en gjennomgående god standard. Boligen har en god planløsning bestående av en innbydende separat gang, pent flislagt bad, to luftige soverom, og en åpen stue-/kjøkkenløsning med utgang til en flott uteplass på hele 21 m².
Parkering gjøres trygt og godt på tilhørende garasjeplass i felles garasjekjeller.
Høydepunkter:
- Hjørneleilighet
- Trappefri adkomst
- 21 m² uteplass
- Garasjeplass
- Fyring, kabel-TV/bredbånd inkl.
Her vil du bo attraktivt og sentralt til med kort vei til dagligvare, Amfi Eidsvoll og svømmehall, og Eidsvoll verk stasjon med flere togforbindelser.
NB: Knappen for å vise hele beskrivelsen har kun en visuell effekt.
NB: Knappen for å vise hele beskrivelsen har kun en visuell effekt.
Salgsoppgaven beskriver vesentlig og lovpålagt informasjon om eiendommen
Se komplett salgsoppgaveNyttige lenker
Nærområdet
EiendomsMegler 1 Østlandet - avd. Nybygg
Vi loser deg trygt gjennom hele boligsalget
Annonseinformasjon
| FINN-kode | 415938556 |
|---|---|
| Sist endret | 06. mars 2026 11:47 |
| Referanse | 6032260356 |
Annonsene kan være mangelfulle i forhold til lovpålagt opplysningsplikt. Før bindende avtale inngås oppfordres interessenter til å innhente komplett informasjon fra meglerforetaket, selger eller utleier.
































