Bildegalleri

velkommen til Evenesdalveien 110 -Naturskjønne omgivelser
Solgt
Nedlagt småbruk i vakre Evenesdal - stor eiendom på 434 dekar- konsesjonsplikt
Prisantydning1 550 000 kr
Nøkkelinfo
- Boligtype
- Gårdsbruk/Småbruk
- Eieform
- Eier (Selveier)
- Soverom
- 3
- Internt bruksareal
- 100 m² (BRA-i)
- Bruksareal
- 139 m²
- Eksternt bruksareal
- 39 m² (BRA-e)
- Etasje
- 2
- Byggeår
- 1900
- Energimerking
- G - Oransje
- Rom
- 4
- Tomteareal
- 434 000 m² (eiet)
Fasiliteter
Barnevennlig
Garasje/P-plass
Hage
Kjæledyr tillatt
Ingen gjenboere
Peis/Ildsted
Rolig
Utsikt
Fiskemulighet
Turterreng
Om boligen
Velkommen til Evenesdal og et nedlagt småbruk. Eiendommen ligger ca. 10km sørøst for Røkland som har skole, barnehage, matvarebutikk, post i butikk mm. Her er det store natur- og utmarksområder i umiddelbar nærhet med flotte turmuligheter både sommer og vinter og fiskerett i Fuglvatnet. Området rundt boligen er relativt flatt og solrikt.
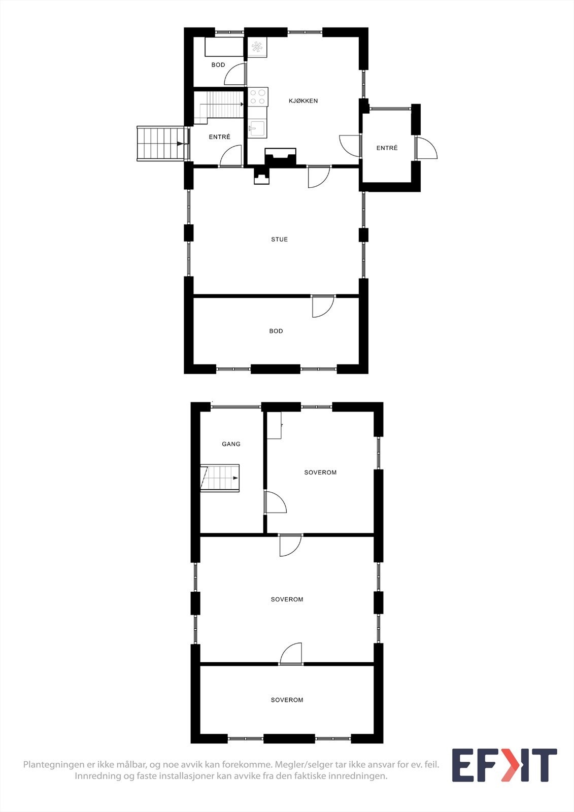
Hovedetasjen er med Entré/vindfang, kjøkken, stue, trapperom og matbod. Andreetasjen er med trapp, gang og 3 soverom.
Boligen er et eldre tømmerhus bygget før 1900 og holder eldre nøktern standard. Det er innlagt strøm. Vann kommer fra privat kum som ikke er koblet til. Boligen har i de senere år vært benyttet som fritidsbolig. Det må påregnes kostnader for å oppgradere bygningen til helårsbolig
Hovedetasjen er med Entré/vindfang, kjøkken, stue, trapperom og matbod. Andreetasjen er med trapp, gang og 3 soverom.
Boligen er et eldre tømmerhus bygget før 1900 og holder eldre nøktern standard. Det er innlagt strøm. Vann kommer fra privat kum som ikke er koblet til. Boligen har i de senere år vært benyttet som fritidsbolig. Det må påregnes kostnader for å oppgradere bygningen til helårsbolig
NB: Knappen for å vise hele beskrivelsen har kun en visuell effekt.
NB: Knappen for å vise hele beskrivelsen har kun en visuell effekt.
Salgsoppgaven beskriver vesentlig og lovpålagt informasjon om eiendommen
Se komplett salgsoppgaveNærområdet
Notar Salten
God magefølelse
Annonseinformasjon
| FINN-kode | 415499473 |
|---|---|
| Sist endret | 08. aug. 2025 16:49 |
| Referanse | NO7.2544 |
Annonsene kan være mangelfulle i forhold til lovpålagt opplysningsplikt. Før bindende avtale inngås oppfordres interessenter til å innhente komplett informasjon fra meglerforetaket, selger eller utleier.


























