Bildegalleri

Velkommen til denne unike, innholdsrike og seksjonerte eiendommen i Kaffegata 73 og 75!
Inaktiv
FLISA SENTRUM
Unik, oppgradert og seksjonert eiendom med næringsdel i 1 etg og innholdsrik bolig i 2 og 3 etg. + hybelleil i 2 etg.
Prisantydning8 490 000 kr
Nøkkelinfo
- Boligtype
- Andre
- Eieform
- Eier (Selveier)
- Soverom
- 0
- Internt bruksareal
- 682 m² (BRA-i)
- Bruksareal
- 682 m²
- Etasje
- 4
- Byggeår
- 1959
- Energimerking
- F - Gul
- Tomteareal
- 419 m² (eiet)
Fasiliteter
Balkong/Terrasse
Bredbåndstilknytning
Garasje/P-plass
Offentlig vann/kloakk
Sentralt
Visning
For visning av eiendommen, ta direkte kontakt med megler på tlf.: 94178482 / aste.gjermunds@aktiv.no
VisningspåmeldingOm boligen
Velkommen til Kaffegata 73 og 75!
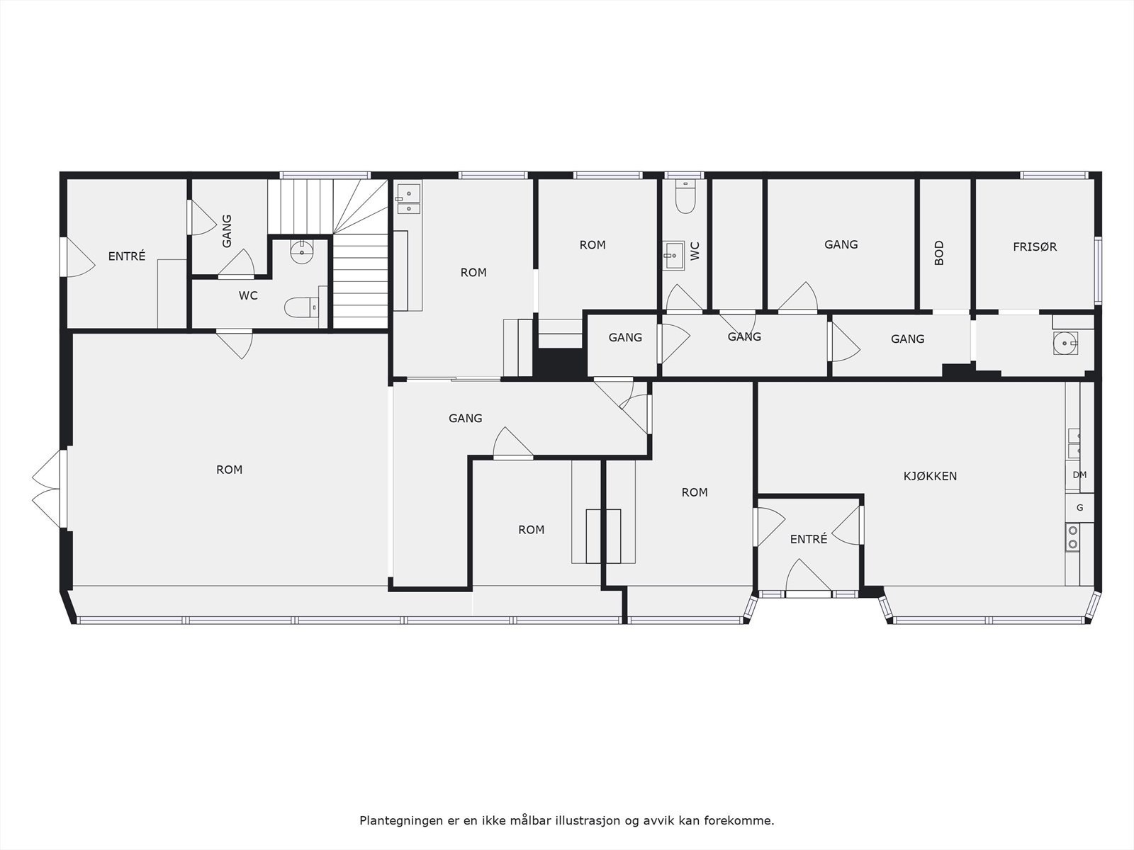
En unik eiendom midt i Flisa sentrum bestående av en svært romslig bolig i 2. og 3. etg. med hybelleil. i 2. etg., og en næringsdel i 1.etg.
Boligen ble vesentlig påkostet og oppgradert i 2009 og har bl.a. vannbåren varme, 4 soverom, stor terrasse og inntilbygd dobbelgarasje med elbil-lader.
Næringsseksjonen er pr. idag tilrettelagt for butikk, frisør og kontor med personalrom. Iflg. kommunen er det vedtatt retningslinjer for dispensasjon fra reguleringskravet mhp. arealbruk langs deler av Kaffegata, der det kan gis dispensasjon fra kravet om forretnings-/næringsareal i 1. etg. mot Kaffegata dersom bl.a. ny arealbruk er bolig.
Er du på jakt etter en spennende eiendom du kan leie ut, eller bo i- og leie ut samtidig kan dette være det du leter etter!
En unik eiendom midt i Flisa sentrum bestående av en svært romslig bolig i 2. og 3. etg. med hybelleil. i 2. etg., og en næringsdel i 1.etg.
Boligen ble vesentlig påkostet og oppgradert i 2009 og har bl.a. vannbåren varme, 4 soverom, stor terrasse og inntilbygd dobbelgarasje med elbil-lader.
Næringsseksjonen er pr. idag tilrettelagt for butikk, frisør og kontor med personalrom. Iflg. kommunen er det vedtatt retningslinjer for dispensasjon fra reguleringskravet mhp. arealbruk langs deler av Kaffegata, der det kan gis dispensasjon fra kravet om forretnings-/næringsareal i 1. etg. mot Kaffegata dersom bl.a. ny arealbruk er bolig.
Er du på jakt etter en spennende eiendom du kan leie ut, eller bo i- og leie ut samtidig kan dette være det du leter etter!
NB: Knappen for å vise hele beskrivelsen har kun en visuell effekt.
NB: Knappen for å vise hele beskrivelsen har kun en visuell effekt.
Salgsoppgaven beskriver vesentlig og lovpålagt informasjon om eiendommen
Se komplett salgsoppgaveNærområdet
Aktiv Innlandet
Annonseinformasjon
| FINN-kode | 415072760 |
|---|---|
| Sist endret | 29. aug. 2025 10:58 |
| Referanse | 1211250203 |
Annonsene kan være mangelfulle i forhold til lovpålagt opplysningsplikt. Før bindende avtale inngås oppfordres interessenter til å innhente komplett informasjon fra meglerforetaket, selger eller utleier.


























































