Bildegalleri

Velkommen til Engmovegen 9
Innholdsrik enebolig på Blåsmo med fine uteområder | Pent opparbeidet tomt | Isolert garasje på 60kvm
Prisantydning4 590 000 kr
Nøkkelinfo
- Boligtype
- Enebolig
- Eieform
- Eier (Selveier)
- Soverom
- 3
- Internt bruksareal
- 163 m² (BRA-i)
- Bruksareal
- 223 m²
- Eksternt bruksareal
- 60 m² (BRA-e)
- Balkong/Terrasse
- 67 m² (TBA)
- Etasje
- 2
- Byggeår
- 1970
- Rom
- 7
- Tomteareal
- 1 111 m² (eiet)
Fasiliteter
Balkong/Terrasse
Barnevennlig
Garasje/P-plass
Hage
Peis/Ildsted
Rolig
Sentralt
Turterreng
Lademulighet
Om boligen
Velkommen til Engmovegen 9:
Enebolig med ettertraktet beliggenhet på Blåsmoen, et attraktivt og barnevennlig område. Kun 2 minutter til Fannrem sentrum hvor man finner blant annet dagligvarebutikk, frisør og café. Boligen har vært gjenstand for flere oppgraderinger de senere år. Stor isolert garasje på 60kvm. Boligen har et innredet loft med to soverom, men er ikke med i arealberegningen pga lav takhøyde.
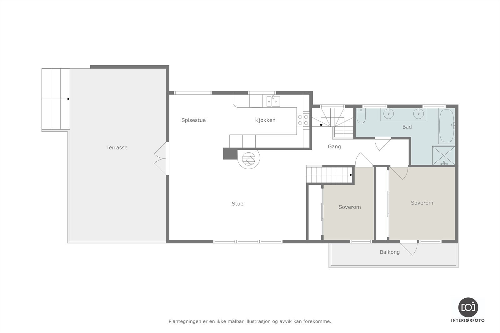
Innhold:
1.etg: Gang, 2 soverom, Bad, Trapperom, Stue, Kjøkken
2.etg: Gang, Bad/vaskerom, Kjellerstue, Boder, Trapperom
Garasje
Velkommen!
Enebolig med ettertraktet beliggenhet på Blåsmoen, et attraktivt og barnevennlig område. Kun 2 minutter til Fannrem sentrum hvor man finner blant annet dagligvarebutikk, frisør og café. Boligen har vært gjenstand for flere oppgraderinger de senere år. Stor isolert garasje på 60kvm. Boligen har et innredet loft med to soverom, men er ikke med i arealberegningen pga lav takhøyde.
Innhold:
1.etg: Gang, 2 soverom, Bad, Trapperom, Stue, Kjøkken
2.etg: Gang, Bad/vaskerom, Kjellerstue, Boder, Trapperom
Garasje
Velkommen!
NB: Knappen for å vise hele beskrivelsen har kun en visuell effekt.
NB: Knappen for å vise hele beskrivelsen har kun en visuell effekt.
Salgsoppgaven beskriver vesentlig og lovpålagt informasjon om eiendommen
Se komplett salgsoppgaveNærområdet
Aktiv Orkla
Annonseinformasjon
| FINN-kode | 414487273 |
|---|---|
| Sist endret | 16. jan. 2026 09:34 |
| Referanse | 1702250145 |
Annonsene kan være mangelfulle i forhold til lovpålagt opplysningsplikt. Før bindende avtale inngås oppfordres interessenter til å innhente komplett informasjon fra meglerforetaket, selger eller utleier.





































