Bildegalleri

EIE eiendomsmegling ved Yasin Unal har gleden av å presentere Innherredsveien 8! Foto: Aleksander Jacobsen.
SENTRUM/SOLSIDEN
Innbydende & stor 2-roms leilighet med heis i bygget. Attraktiv beliggenhet med kort vei til alt. Felles takterrasse!
Prisantydning3 050 000 kr
Pris på lån: fra 12 345 kr/mnd
Eff.rente 5,00 %. 2 135 000 o/25 år. Kostnad: 1 568 500 kr. Totalt 3 703 500 kr.
LånekalkulatorNøkkelinfo
- Boligtype
- Leilighet
- Eieform
- Andel
- Soverom
- 1
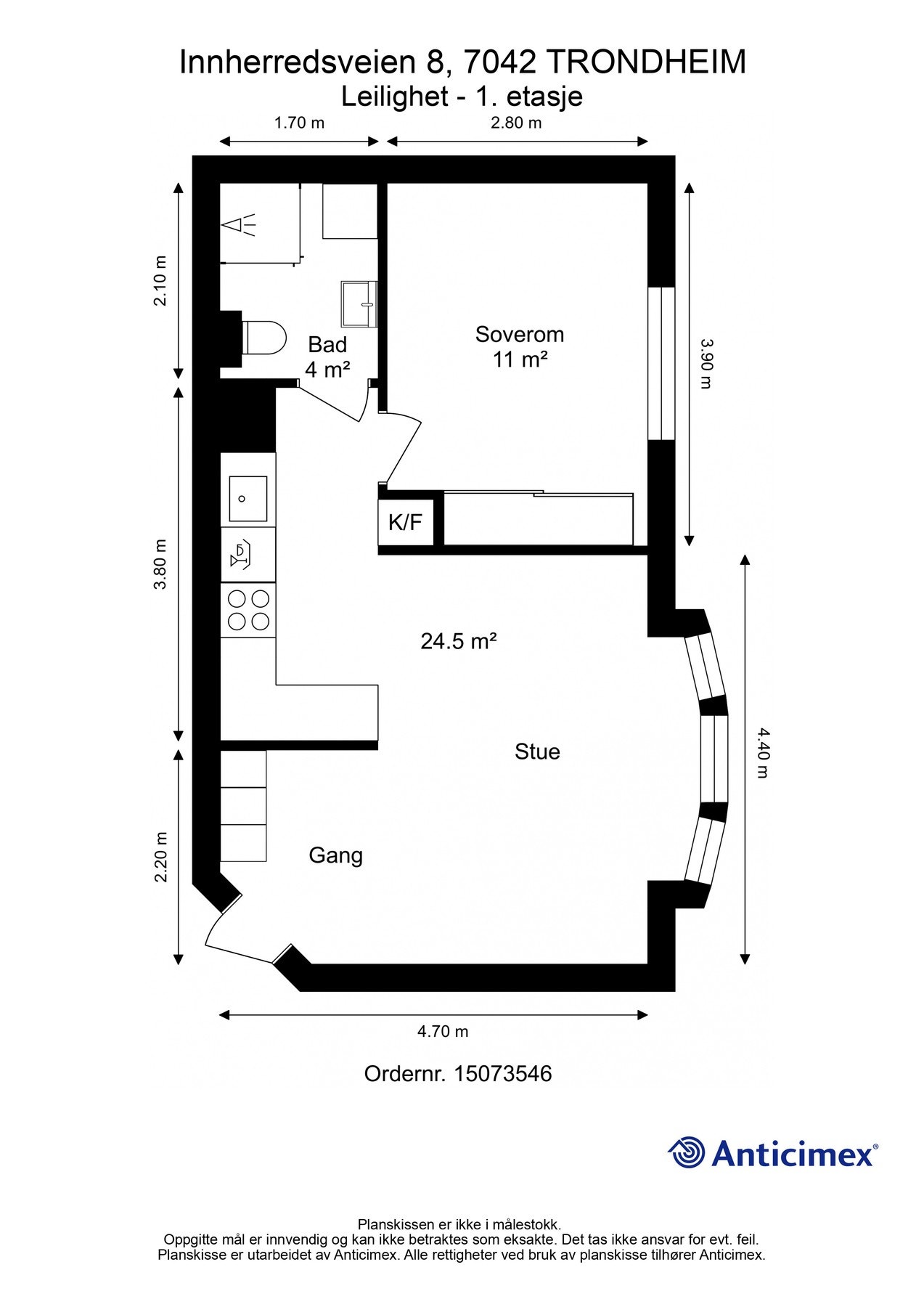
- Internt bruksareal
- 40 m² (BRA-i)
- Bruksareal
- 40 m²
- Etasje
- 2
- Byggeår
- 1915
- Energimerking
- F - Rød
- Rom
- 2
- Tomt
- Eiet
Fasiliteter
Balkong/Terrasse
Kabel-TV
Heis
Offentlig vann/kloakk
Parkett
Vaktmester-/vektertjeneste
Sentralt
Bredbåndstilknytning
Moderne
Om boligen
EIE eiendomsmegling ved Yasin Unal har gleden av å presentere Innherredsveien 8 - En lys og innbydende 2-roms andelsleilighet i et populært område på Solsiden - midt i hjertet av Trondheim.
Leiligheten ligger i et attraktivt område med gangavstand til sentrum, NTNU og Solsiden. Boligen har en smart og arealeffektiv planløsning og inneholder entre, stue, kjøkken, soverom og bad. Leiligheten utmerker seg med god takhøyde, store og luftige rom, samt en gjennomtenkt rominndeling som skaper en åpen og innbydende atmosfære.
Merk dette ved boligen:
- Lys og stilfull 2-roms i god stand
- Store vindusflater og god takhøyde
- Kjøkken fra 2018
- Romslig stue og separat soverom
- Felles takterrasse og balkong med gode solforhold
- Heis i bygget
- Fasade og tak oppgradert i 2020
- Deler bod i kjeller med naboen og innendørs sykkelparkering
- Rolig beliggenhet med umiddelbar nærhet til Solsiden, sentrum, NTNU og kollektivtransport
Velkommen til visning!
Leiligheten ligger i et attraktivt område med gangavstand til sentrum, NTNU og Solsiden. Boligen har en smart og arealeffektiv planløsning og inneholder entre, stue, kjøkken, soverom og bad. Leiligheten utmerker seg med god takhøyde, store og luftige rom, samt en gjennomtenkt rominndeling som skaper en åpen og innbydende atmosfære.
Merk dette ved boligen:
- Lys og stilfull 2-roms i god stand
- Store vindusflater og god takhøyde
- Kjøkken fra 2018
- Romslig stue og separat soverom
- Felles takterrasse og balkong med gode solforhold
- Heis i bygget
- Fasade og tak oppgradert i 2020
- Deler bod i kjeller med naboen og innendørs sykkelparkering
- Rolig beliggenhet med umiddelbar nærhet til Solsiden, sentrum, NTNU og kollektivtransport
Velkommen til visning!
NB: Knappen for å vise hele beskrivelsen har kun en visuell effekt.
NB: Knappen for å vise hele beskrivelsen har kun en visuell effekt.
Salgsoppgaven beskriver vesentlig og lovpålagt informasjon om eiendommen
Se komplett salgsoppgaveNyttige lenker
Nærområdet
EIE eiendomsmegling Heimdal
Annonseinformasjon
| FINN-kode | 414311015 |
|---|---|
| Sist endret | 18. nov. 2025 13:07 |
| Referanse | 97251089 |
Annonsene kan være mangelfulle i forhold til lovpålagt opplysningsplikt. Før bindende avtale inngås oppfordres interessenter til å innhente komplett informasjon fra meglerforetaket, selger eller utleier.






















