Bildegalleri

Velkommen til Viervegen 15 i Vrådal!
Solgt
BUD INNKOMMET! | Vrådal - stor duohytte med stor og usjenert uteplass| Helårshytte |Ski in/ ski out |3 soverom | Solrikt
Prisantydning2 990 000 kr
- Omkostninger
- 85 790 kr
- Totalpris
- 3 075 790 kr
- Kommunale avg.
- 15 000 kr per år
- Formuesverdi
- 1 068 473 kr
Nøkkelinfo
- Beliggenhet
- På fjellet
- Boligtype
- Hytte
- Eieform
- Eier (Selveier)
- Internt bruksareal
- 98 m² (BRA-i)
- Bruksareal
- 105 m²
- Eksternt bruksareal
- 7 m² (BRA-e)
- Balkong/Terrasse
- 103 m² (TBA)
- Tomteareal
- 5 700 m² (eiet)
- Byggeår
- 2007
- Soverom
- 3
- Rom
- 4
- Energimerking
- D - Oransje
- Overtakelse
- Etter nærmere avtale.
Fasiliteter
Innlagt vann
Alpinanlegg
Balkong/Terrasse
Barnevennlig
Bilvei frem
Bredbåndstilknytning
Garasje/P-plass
Golfbane
Hage
Kabel-TV
Peis/Ildsted
Rolig
Utsikt
Bademulighet
Fiskemulighet
Innlagt strøm
Turterreng
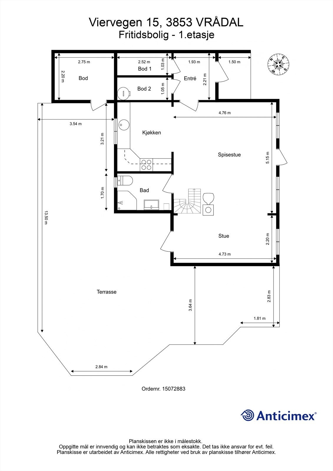
Om boligen
Innbydende tømmerhytte i populære Vrådal - med fantastisk intern beliggenhet innerst i en blindvei, usjenert og med flott utsikt over skibakkene. Her bor du med ekte ski in/ ski out, sol fra morgen til kveld og en imponerende terrasse på hele 95 kvm. Hytta er romslig og velholdt, med god planløsning, 3 soverom og sengeplasser til opptil 9 personer. Et perfekt sted for både aktive feriedager og rolige helger - sommer som vinter.
- Ski in/ ski out
- Meget solrikt
- Klassisk stor tømmerhytte
- Usjenert beliggenhet, men samtidig sentral intern beliggenhet
- Stilfull peisovn som kan roteres.
- 3 soverom
- Bad + separat toalett i 2.etasje
- Romslig stue med spisestuesofa og tv-krok
- Godt utstyrt kjøkken
- Nybeiset ute i 2023
- 95 kvm stor terrasse
- Parkering v/hytta
Velkommen!
- Ski in/ ski out
- Meget solrikt
- Klassisk stor tømmerhytte
- Usjenert beliggenhet, men samtidig sentral intern beliggenhet
- Stilfull peisovn som kan roteres.
- 3 soverom
- Bad + separat toalett i 2.etasje
- Romslig stue med spisestuesofa og tv-krok
- Godt utstyrt kjøkken
- Nybeiset ute i 2023
- 95 kvm stor terrasse
- Parkering v/hytta
Velkommen!
NB: Knappen for å vise hele beskrivelsen har kun en visuell effekt.
NB: Knappen for å vise hele beskrivelsen har kun en visuell effekt.
Salgsoppgaven beskriver vesentlig og lovpålagt informasjon om eiendommen
Se komplett salgsoppgaveNyttige lenker
Nærområdet
Krogsveen Sandefjord
Velkommen til en enklere boligreise.
Annonseinformasjon
| FINN-kode | 413350629 |
|---|---|
| Sist endret | 21. sep. 2025 12:09 |
| Referanse | KR22.25213 |
Annonsene kan være mangelfulle i forhold til lovpålagt opplysningsplikt. Før bindende avtale inngås oppfordres interessenter til å innhente komplett informasjon fra meglerforetaket, selger eller utleier.

































![Soverom 2 [ plass til 2 personer ] Galleribilde](https://images.finncdn.no/dynamic/1600w/2025/6/vertical-2/20/9/413/350/629_fd01e26a-99d7-4ec1-bb90-8051d9a3e1c6.jpg)

![Soverom 3 [ plass til 2 personer ]. Her kan man fint sette inn en køyeseng om man ønsker plass til flere. Galleribilde](https://images.finncdn.no/dynamic/1600w/2025/6/vertical-2/20/9/413/350/629_68c06b1e-3ecd-4a7d-be96-4e24ac3e31a7.jpg)
























