Bildegalleri

Velkommen til Øvre Gunnaråsen 59!
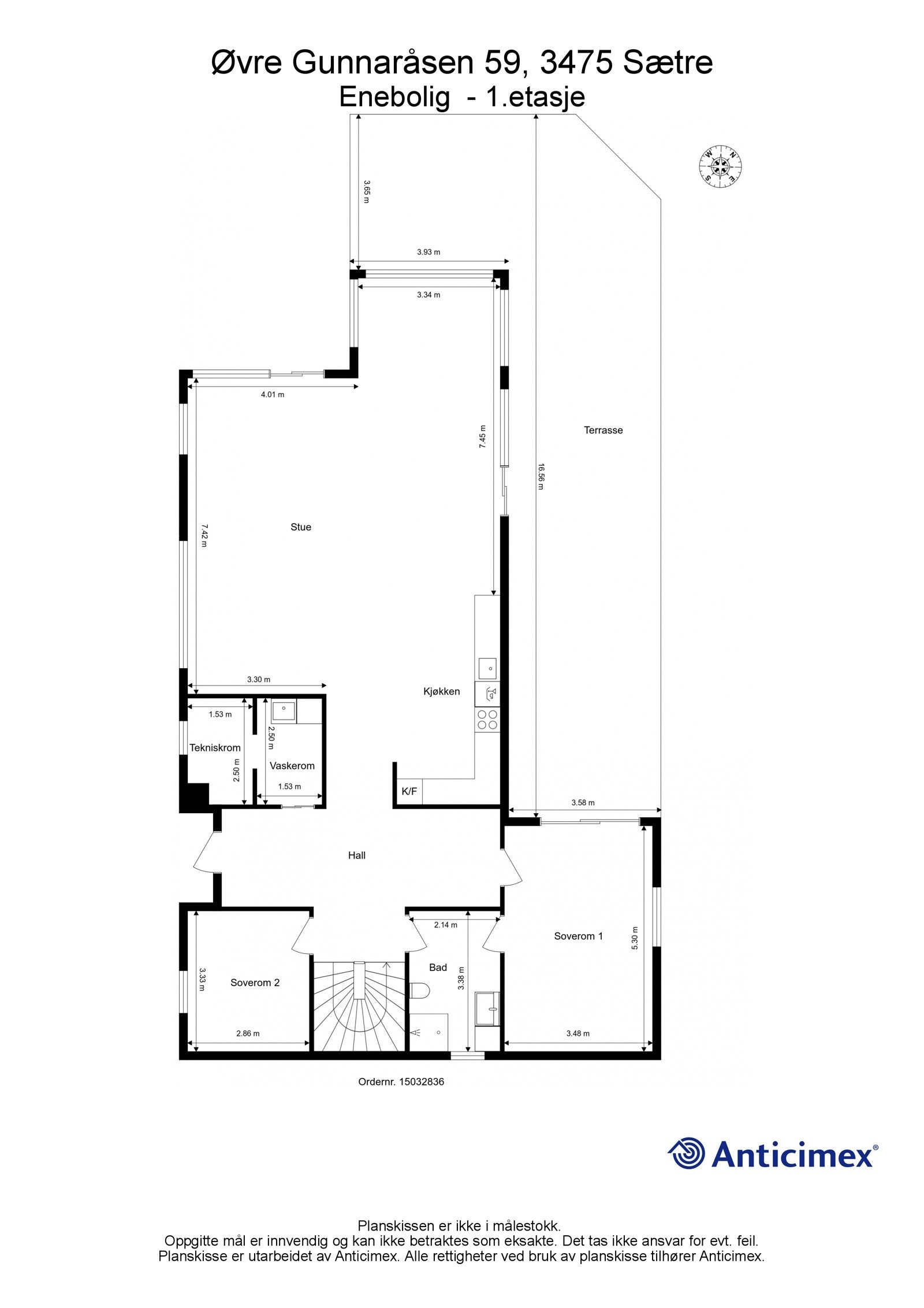
Stor enebolig fra 2023 med høy standard og flott sjøutsikt, 3 bad, takterrasse, stor kjeller og mulighet for garasje.
Nøkkelinfo
- Boligtype
- Enebolig
- Eieform
- Eier (Selveier)
- Soverom
- 4
- Internt bruksareal
- 342 m² (BRA-i)
- Bruksareal
- 342 m²
- Balkong/Terrasse
- 153 m² (TBA)
- Byggeår
- 2023
- Energimerking
- B - Oransje
- Tomteareal
- 795 m² (eiet)
Fasiliteter
Visning
Om boligen
Flott enebolig fra 2023 med høy standard, gjennomtenkte løsninger og mange muligheter.
Deler av kjelleren er innredet med soverom/kontor, bad og badstue og denne delen passer perfekt til hjemmekontor, ungdomsstue eller generasjonsdel. Det er klargjort med vann til soverom/kontor.
Diverse:
* Her får du blant annet 2 store stuer, 3 lekre bad, badstue og 4 store soverom
* Uinnredet og fullisolert kjeller ca. 80 kvm
* Fantastisk utsikt og gode solforhold
* Dobbel garasje byggemeldes og kan bestilles
* Bo på en flate
* Utstrakt bruk av spotter i alle oppholdsrom, hall og bad
* Enstavs eikeparkett i alle gulv (1./2. etg)
* Sigdal kjøkken m/integrerte hvitevarer fra AEG
* Kompositt stein benkeplate
* Elbillader
* Fibernett
* Stor delvis overbygget takterrasse
* Balkong/terrasse utenfor 2 av soverommene
Salgsoppgaven beskriver vesentlig og lovpålagt informasjon om eiendommen
Se komplett salgsoppgaveNyttige lenker
Nærområdet

FREM EIENDOMSMEGLING
Annonsene kan være mangelfulle i forhold til lovpålagt opplysningsplikt. Før bindende avtale inngås oppfordres interessenter til å innhente komplett informasjon fra meglerforetaket, selger eller utleier.























































































