Bildegalleri

Velkommen til tittelsnesvegen 661!
Solgt
Valestrand
Stor og flott eiendom - Innholdsrik enebolig med næringslokaler på sokkel
Prisantydning1 890 000 kr
Nøkkelinfo
- Boligtype
- Enebolig
- Eieform
- Eier (Selveier)
- Soverom
- 4
- Internt bruksareal
- 192 m² (BRA-i)
- Bruksareal
- 192 m²
- Etasje
- 3
- Byggeår
- 1955
- Energimerking
- G - Gul
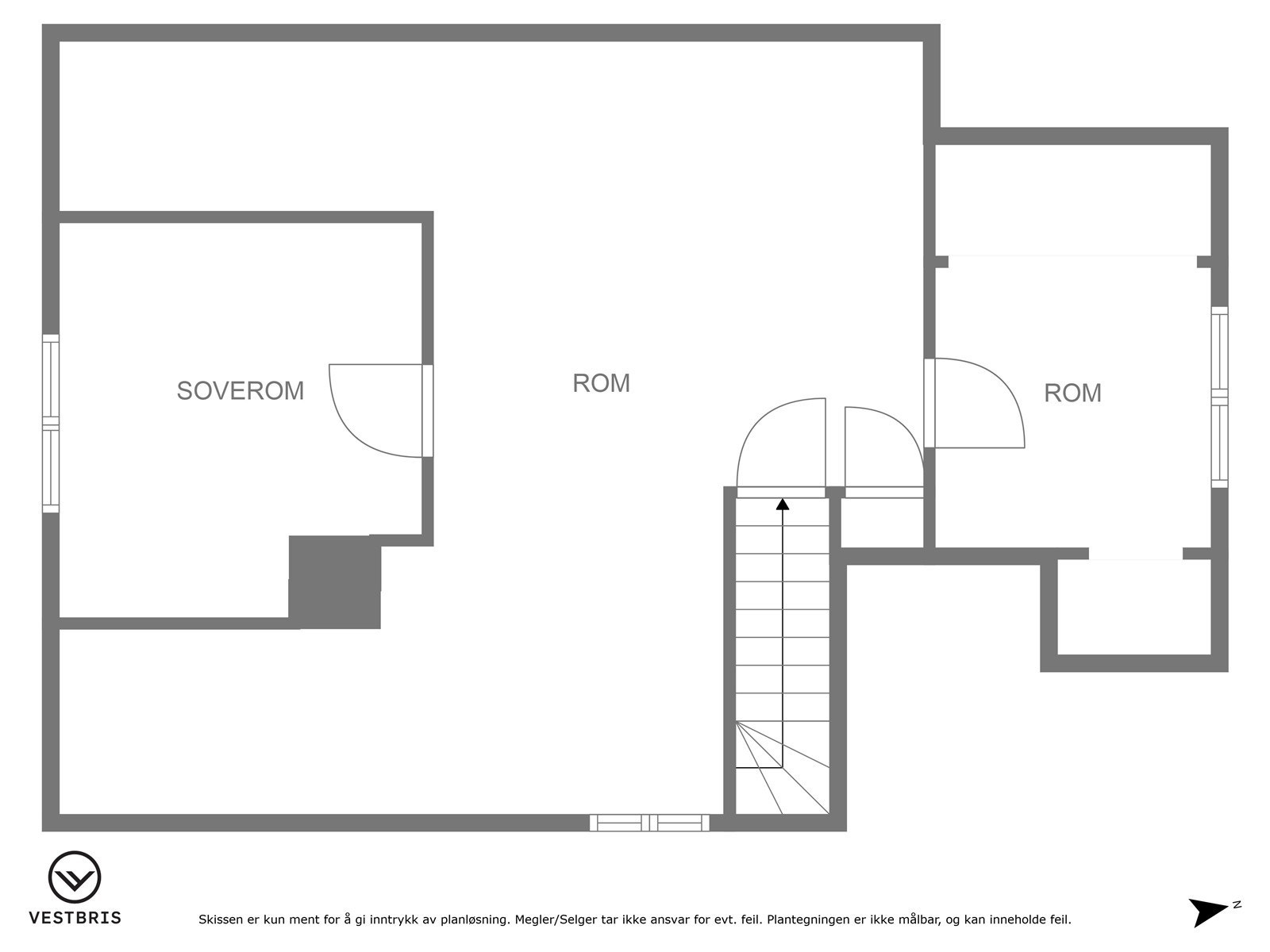
- Rom
- 4
- Tomteareal
- 13 133 m² (eiet)
Fasiliteter
Aircondition
Bredbåndstilknytning
Hage
Kjæledyr tillatt
Offentlig vann/kloakk
Parkett
Peis/Ildsted
Rolig
Utsikt
Utvidelsesmuligheter
Turterreng
Om boligen
På Valestrand nord i Sveio har vi for salg kombinasjons-eiendom med vestvendt beliggenhet og noe utsikt til sjøen i vest. Eiendommen ligger fint og vestvendt til med gode solforhold. Kort avstand til Bømlafjordtunnelen som fører til Stord og Bømlo. Eiendommen er i senere tid påkostet innvendig med oppgradering av boligdelen. Det er i oppgraderingen tatt hensyn til boligens opprinnelige preg med tømrede vegger og skapt en fin kombinasjon med moderne fasiliteter. Utvendig har boligen fått ny bordkledning og nye vinduer i husets hoveddel. Eiendommens store størrelse byr på hage, innmarksbeite og skog.
NB: Knappen for å vise hele beskrivelsen har kun en visuell effekt.
NB: Knappen for å vise hele beskrivelsen har kun en visuell effekt.
Salgsoppgaven beskriver vesentlig og lovpålagt informasjon om eiendommen
Se komplett salgsoppgaveNyttige lenker
Nærområdet
Eiendomsmegler Norge Haugesund
Best der du bor
Annonseinformasjon
| FINN-kode | 413042072 |
|---|---|
| Sist endret | 13. okt. 2025 10:07 |
| Referanse | 19250178 |
Annonsene kan være mangelfulle i forhold til lovpålagt opplysningsplikt. Før bindende avtale inngås oppfordres interessenter til å innhente komplett informasjon fra meglerforetaket, selger eller utleier.





































