Bildegalleri

Velkommen til visning av Saudagata 28! Presentert av Eiendomsmegler MNEF, Daniel Løken.
STORHAUG
Påkostet 3-romsleilighet med flott atmosfære - Solrik altan - Populær beliggenhet i ærverdig murhus!
Prisantydning4 100 000 kr
Nøkkelinfo
- Boligtype
- Leilighet
- Eieform
- Eier (Selveier)
- Soverom
- 2
- Internt bruksareal
- 98 m² (BRA-i)
- Bruksareal
- 98 m²
- Balkong/Terrasse
- 10 m² (TBA)
- Etasje
- 2
- Byggeår
- 1905
- Energimerking
- G - Oransje
- Rom
- 4
- Tomteareal
- 232 m² (eiet)
Fasiliteter
Balkong/Terrasse
Barnevennlig
Bredbåndstilknytning
Kjæledyr tillatt
Kabel-TV
Offentlig vann/kloakk
Peis/Ildsted
Rolig
Sentralt
Utsikt
Om boligen
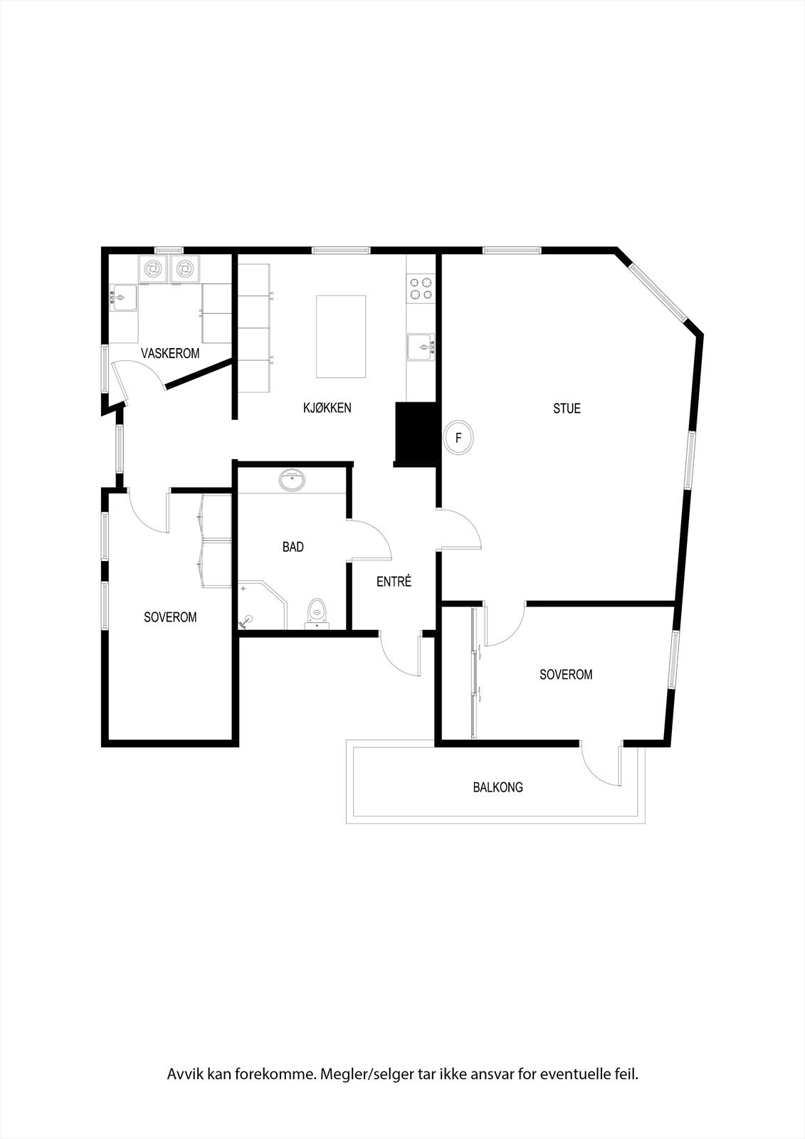
Velkommen til en pen, romslig og innbydende 3-romsleilighet med en populær beliggenhet i et ærverdig murhus. Bygget har hjørneplassering og ingen bebyggelse på nordøstsiden, noe som gir rikelig med naturlig lys, fin utsikt fra stuen og kjøkkenet mot fjell i Ryfylke. Leiligheten går over hele andre etasje.
Leiligheten har en gjennomgående takhøyde på ca. 3 meter, store vindusflater og en luftig romfølelse som må oppleves. Hjemmet er praktisk utformet med entré, 2 soverom, vaskerom, bad, stue, kjøkken og en solrik altan.
Her vil du bo svært sentralt i et fint og etterspurt område på Storhaug. Området er sentrumsnært, samtidig som det kan beskrives som et rolig og smakfullt område som bærer preg av ærverdige eiendommer og idylliske omgivelser.
Velkommen til en hyggelig visning!
Leiligheten har en gjennomgående takhøyde på ca. 3 meter, store vindusflater og en luftig romfølelse som må oppleves. Hjemmet er praktisk utformet med entré, 2 soverom, vaskerom, bad, stue, kjøkken og en solrik altan.
Her vil du bo svært sentralt i et fint og etterspurt område på Storhaug. Området er sentrumsnært, samtidig som det kan beskrives som et rolig og smakfullt område som bærer preg av ærverdige eiendommer og idylliske omgivelser.
Velkommen til en hyggelig visning!
NB: Knappen for å vise hele beskrivelsen har kun en visuell effekt.
NB: Knappen for å vise hele beskrivelsen har kun en visuell effekt.
Salgsoppgaven beskriver vesentlig og lovpålagt informasjon om eiendommen
Se komplett salgsoppgaveNyttige lenker
Nærområdet
Eiendomsmegler Norge Stavanger
Best der du bor
Annonseinformasjon
| FINN-kode | 413030523 |
|---|---|
| Sist endret | 17. jan. 2026 10:16 |
| Referanse | 20250104 |
Annonsene kan være mangelfulle i forhold til lovpålagt opplysningsplikt. Før bindende avtale inngås oppfordres interessenter til å innhente komplett informasjon fra meglerforetaket, selger eller utleier.



































