Bildegalleri

Velkommen til Skiljebakken 23 - Presentert av eiendomsmegler Anders Grønbech Lindø
Inaktiv
Etne
Stor og velholdt familiebolig med nydelig beliggenhet. Utsikt - Rolig gate uten gjennomgangstrafikk.
Prisantydning4 500 000 kr
Nøkkelinfo
- Boligtype
- Enebolig
- Eieform
- Eier (Selveier)
- Soverom
- 3
- Internt bruksareal
- 317 m² (BRA-i)
- Bruksareal
- 349 m²
- Eksternt bruksareal
- 32 m² (BRA-e)
- Balkong/Terrasse
- 48 m² (TBA)
- Byggeår
- 1982
- Energimerking
- F - Gul
- Tomteareal
- 1 154 m² (eiet)
Fasiliteter
Balkong/Terrasse
Barnevennlig
Garasje/P-plass
Hage
Offentlig vann/kloakk
Parkett
Peis/Ildsted
Rolig
Utsikt
Turterreng
Visning
Ønsker du å delta på visningen ber vi deg melde deg på slik at vi vet at du kommer. Da kan vi bistå alle best mulig og gi deg tiden du trenger på visningen. Kontakt gjerne megler før visning hvis du har spørsmål. Visningen avholdes bare dersom det er påmeldte. Hvis det ikke er oppsatt visningstidspunkt eller tidspunkt ikke passer, kontakt megler.
VisningspåmeldingOm boligen
Skiljebakken 23 er midt i blinken for deg som er på jakt etter en velholdt og stor enebolig med flott beliggenhet.
Tidligere eiere har modernisert og oppgradert boligen jevnlig de siste 20 årene. Skifertak og ellers pene detaljer på huset som er med på å skille det ut.
Innredningen går over tre plan og er som følgende:
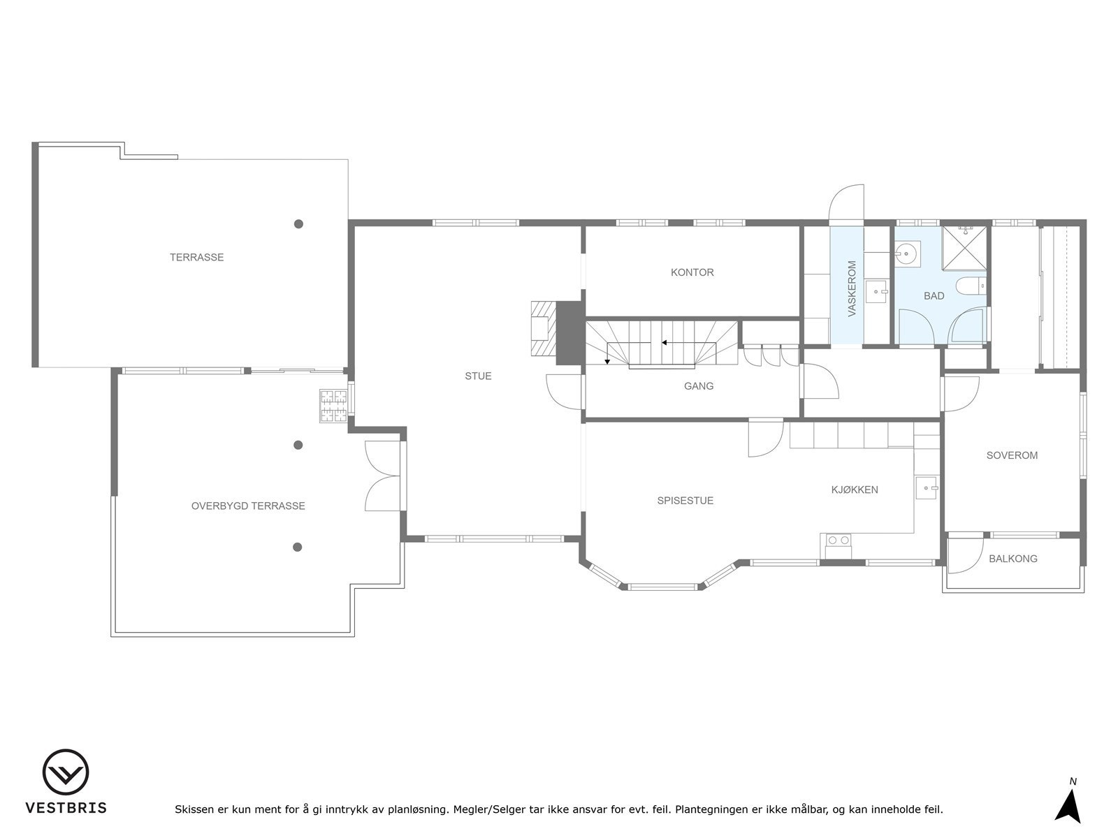
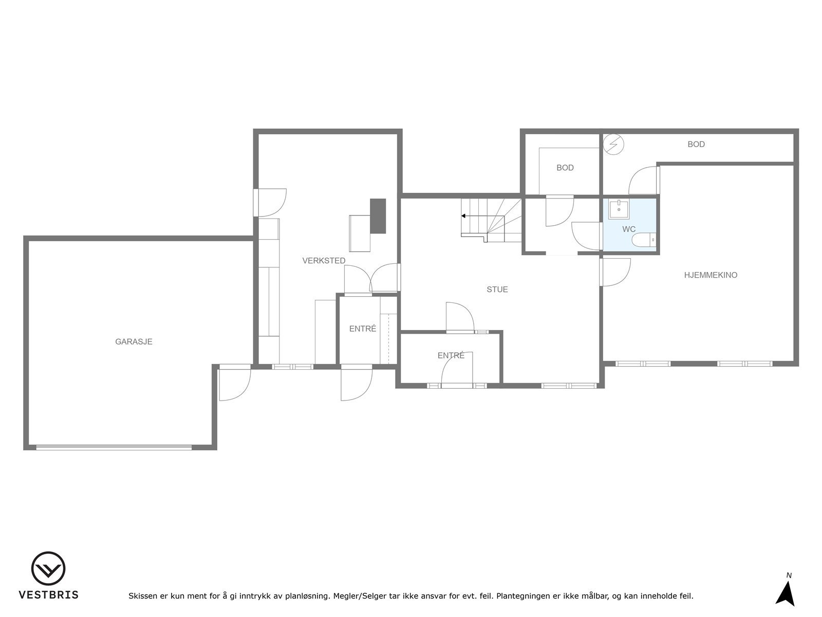
Underetasje - Hall m/trapp, vindfang, kjellerstue, toalettrom og fem stk bod. (BRA-i)
Hovedetasje - Stue, kjøkken, bad, vaskerom, garderobe, kontor, soverom og to ganger (BRA-i)
Loftsetasje - Gang, bad og fire soverom (to godkjente soverom)
Fin beliggenhet på Kambe med utsikt i ende av blindvei. (ingen gjennomgangstrafikk).
Barnevennlig plassering med kort avstand til sentrum, skole, idrettsanlegg m.m.
Velkommen til visning - husk påmeldin
Tidligere eiere har modernisert og oppgradert boligen jevnlig de siste 20 årene. Skifertak og ellers pene detaljer på huset som er med på å skille det ut.
Innredningen går over tre plan og er som følgende:
Underetasje - Hall m/trapp, vindfang, kjellerstue, toalettrom og fem stk bod. (BRA-i)
Hovedetasje - Stue, kjøkken, bad, vaskerom, garderobe, kontor, soverom og to ganger (BRA-i)
Loftsetasje - Gang, bad og fire soverom (to godkjente soverom)
Fin beliggenhet på Kambe med utsikt i ende av blindvei. (ingen gjennomgangstrafikk).
Barnevennlig plassering med kort avstand til sentrum, skole, idrettsanlegg m.m.
Velkommen til visning - husk påmeldin
NB: Knappen for å vise hele beskrivelsen har kun en visuell effekt.
NB: Knappen for å vise hele beskrivelsen har kun en visuell effekt.
Salgsoppgaven beskriver vesentlig og lovpålagt informasjon om eiendommen
Se komplett salgsoppgaveNyttige lenker
Nærområdet
Eiendomsmegler 1 avd Tysvær
En del av Sparebank 1 Sør-Norge
Annonseinformasjon
| FINN-kode | 412400658 |
|---|---|
| Sist endret | 07. juli 2025 13:31 |
| Referanse | 2503250096 |
Annonsene kan være mangelfulle i forhold til lovpålagt opplysningsplikt. Før bindende avtale inngås oppfordres interessenter til å innhente komplett informasjon fra meglerforetaket, selger eller utleier.



























































