Bildegalleri

Velkommen til Klukevegen 67, presentert av Nina Dæhli Harviken. Foto: Pil Branding (Kim Rognmo).
Hamar
Nyere og delikat enebolig i rekke. Utleiemuligheter. Stor terrasse og integrert carport. Kort vei til sentrum.
Prisantydning5 290 000 kr
Nøkkelinfo
- Boligtype
- Enebolig
- Eieform
- Eier (Selveier)
- Soverom
- 2
- Internt bruksareal
- 132 m² (BRA-i)
- Bruksareal
- 139 m²
- Eksternt bruksareal
- 7 m² (BRA-e)
- Balkong/Terrasse
- 39 m² (TBA)
- Byggeår
- 2022
- Energimerking
- B - Oransje
- Tomteareal
- 960 m² (eiet)
Fasiliteter
Barnevennlig
Balkong/Terrasse
Garasje/P-plass
Offentlig vann/kloakk
Peis/Ildsted
Turterreng
Moderne
Balansert ventilasjon
Om boligen
EIE har gleden av å presentere denne lekre eneboligen i kjede i Klukevegen 67!
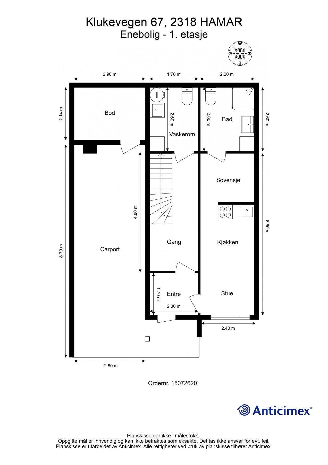
Boligen går over tre plan og inneholder en delvis åpen stue- og kjøkkenløsning, bad, vaskerom og to soverom. Et tredje soverom kan enkelt etableres ved å sette opp en lettvegg på det største soverommet (dette rommet er opprinnelig to soverom på byggetegningene). I tillegg er det en hybel som gir fleksibilitet og økonomiske fordeler. Med stue/kjøkken, bad og sovealkove, kan leietakerne føle seg hjemme. Hybelen har tidligere vært utleid for kr. 7 600,- pr. mnd. inkl. strøm, internett og parkering foran carporten. Fra 2. etasje er det utgang til stor og sørvendt veranda på 39 kvm med plass til store og små selskap. Solforholdene er gode og det er fint utsyn mot store landbruksområder. Boligen ligger på enden av rekken og har derfor en mer luftig uteplass. I bakkant er det en hageflekk, og feltet har en hyggelig lekeplass. Inntilbygget carport med bod.
Boligen går over tre plan og inneholder en delvis åpen stue- og kjøkkenløsning, bad, vaskerom og to soverom. Et tredje soverom kan enkelt etableres ved å sette opp en lettvegg på det største soverommet (dette rommet er opprinnelig to soverom på byggetegningene). I tillegg er det en hybel som gir fleksibilitet og økonomiske fordeler. Med stue/kjøkken, bad og sovealkove, kan leietakerne føle seg hjemme. Hybelen har tidligere vært utleid for kr. 7 600,- pr. mnd. inkl. strøm, internett og parkering foran carporten. Fra 2. etasje er det utgang til stor og sørvendt veranda på 39 kvm med plass til store og små selskap. Solforholdene er gode og det er fint utsyn mot store landbruksområder. Boligen ligger på enden av rekken og har derfor en mer luftig uteplass. I bakkant er det en hageflekk, og feltet har en hyggelig lekeplass. Inntilbygget carport med bod.
NB: Knappen for å vise hele beskrivelsen har kun en visuell effekt.
NB: Knappen for å vise hele beskrivelsen har kun en visuell effekt.
Salgsoppgaven beskriver vesentlig og lovpålagt informasjon om eiendommen
Se komplett salgsoppgaveNyttige lenker
Nærområdet
EIE eiendomsmegling Innlandet
Annonseinformasjon
| FINN-kode | 412360951 |
|---|---|
| Sist endret | 08. des. 2025 14:55 |
| Referanse | 72250201 |
Annonsene kan være mangelfulle i forhold til lovpålagt opplysningsplikt. Før bindende avtale inngås oppfordres interessenter til å innhente komplett informasjon fra meglerforetaket, selger eller utleier.














































