Bildegalleri

Velkommen til denne flotte leiligheten i Hoffsveien 6A!
HOFF/SKØYEN
Lys og gjennomgående 2-roms | Nytt kjøkken 2020 | Fyring, V.v, TV og bredbånd er inkl. | Heis | Garasje m/ el-lader |
Prisantydning5 500 000 kr
Nøkkelinfo
- Boligtype
- Leilighet
- Eieform
- Eier (Selveier)
- Soverom
- 1
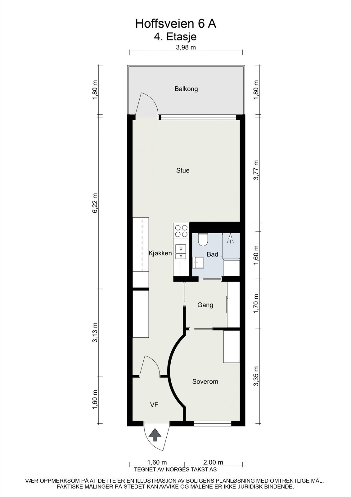
- Internt bruksareal
- 44 m² (BRA-i)
- Bruksareal
- 48 m²
- Eksternt bruksareal
- 4 m² (BRA-e)
- Balkong/Terrasse
- 7 m² (TBA)
- Etasje
- 4
- Byggeår
- 2005
- Energimerking
- D - Mørkegrønn
- Rom
- 2
- Tomteareal
- 4 884 m² (eiet)
Fasiliteter
Balkong/Terrasse
Bredbåndstilknytning
Garasje/P-plass
Heis
Kjæledyr tillatt
Ingen gjenboere
Kabel-TV
Offentlig vann/kloakk
Parkett
Rolig
Sentralt
Vaktmester-/vektertjeneste
Turterreng
Lademulighet
Om boligen
Velkommen til Hoffsveien 6A!
Dette er en gjennomgående og lys 2-roms leilighet med heis, vestvendt balkong og garasjeplass med el-bil lader. Perfekt førstegangskjøp! Leiligheten holder god standard, og er moderne og gjennomført. Leiligheten ligger meget sentralt til på Hoff/Skøyen med alt av fasiliteter rett rundt hjørnet. Enkel heisadkomst til stor felles takterrasse med masse sol. Her vil du garantert trives!
Verdt å merke seg:
-Nytt kjøkken 2020
-Heis, balkong og garasjeplass med el-bil lader!
-Fyring, V.v, TV og bredbånd er inkl. i felleskost
-Sentral beliggenhet
-Ekstern bod på ca. 5 kvm
-Stor og solrik felles takterrasse
-Godt med kollektiv muligheter
Velkommen på visning!
Dette er en gjennomgående og lys 2-roms leilighet med heis, vestvendt balkong og garasjeplass med el-bil lader. Perfekt førstegangskjøp! Leiligheten holder god standard, og er moderne og gjennomført. Leiligheten ligger meget sentralt til på Hoff/Skøyen med alt av fasiliteter rett rundt hjørnet. Enkel heisadkomst til stor felles takterrasse med masse sol. Her vil du garantert trives!
Verdt å merke seg:
-Nytt kjøkken 2020
-Heis, balkong og garasjeplass med el-bil lader!
-Fyring, V.v, TV og bredbånd er inkl. i felleskost
-Sentral beliggenhet
-Ekstern bod på ca. 5 kvm
-Stor og solrik felles takterrasse
-Godt med kollektiv muligheter
Velkommen på visning!
NB: Knappen for å vise hele beskrivelsen har kun en visuell effekt.
NB: Knappen for å vise hele beskrivelsen har kun en visuell effekt.
Salgsoppgaven beskriver vesentlig og lovpålagt informasjon om eiendommen
Se komplett salgsoppgaveNærområdet
Aktiv Grünerløkka
Annonseinformasjon
| FINN-kode | 412355859 |
|---|---|
| Sist endret | 05. jan. 2026 12:06 |
| Referanse | 1008250171 |
Annonsene kan være mangelfulle i forhold til lovpålagt opplysningsplikt. Før bindende avtale inngås oppfordres interessenter til å innhente komplett informasjon fra meglerforetaket, selger eller utleier.







































