Bildegalleri

EiendomsMegler 1 v/Karen Heggset Monge har gleden av å presentere Nygårdsvegen 15 A FOTO: EFKT(Vilde Dahl)
Strøken og meget flott nyere 3-roms leilighet m/carport
Prisantydning1 390 000 kr
Nøkkelinfo
- Boligtype
- Leilighet
- Eieform
- Andel
- Soverom
- 2
- Internt bruksareal
- 74 m² (BRA-i)
- Bruksareal
- 89 m²
- Eksternt bruksareal
- 15 m² (BRA-e)
- Balkong/Terrasse
- 13 m² (TBA)
- Byggeår
- 2023
- Energimerking
- B - Oransje
- Rom
- 3
- Tomteareal
- 1 735 m² (eiet)
Fasiliteter
Barnevennlig
Balkong/Terrasse
Garasje/P-plass
Peis/Ildsted
Turterreng
Moderne
Rolig
Visning
onsdag, 14. januar
17:00 – 17:45
Våre visninger har påmelding. Dette gjør vi for å kunne yte bedre service for våre kunder. Verdifullt for boligkjøper og for oss. Vi anbefaler at salgsoppgaven lastes ned digitalt før visning, og ring oss gjerne på forhånd for spørsmål om boligen. Passer ikke angitt tidspunkt, ta kontakt så finner vi en løsning. Skulle det mot formodning ikke være påmeldte til angitt visningstidspunkt vil ikke visning bli gjennomført.
Om boligen
EiendomsMegler1 v/Karen Heggset Monge har gleden av å presentere Nygårdsveien 15 A!
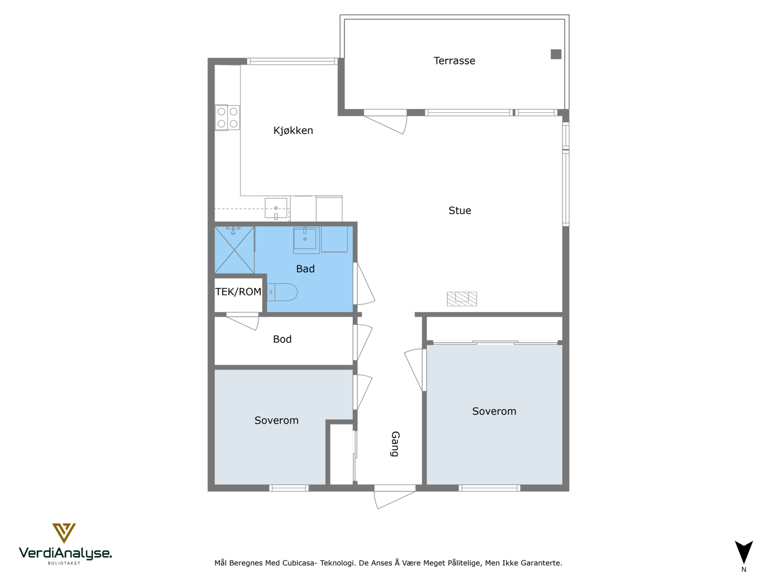
Meget flott 3 - roms leilighet i 1 etasje ( bygd i 2023) som inneholder gang, 2 soverom, bad, teknisk rom/bod, kjøkken med åpen løsning til stue og med utgang til veranda på 12 kvm. Det er også utebod og carport samt felles biloppstillingsplasser på sameiets tomt.
Fin beliggenhet på Jørihaugen med kort vei til barnehage, skole, butikk og fine turområder.
Vi ønsker velkommen til visning!
Meget flott 3 - roms leilighet i 1 etasje ( bygd i 2023) som inneholder gang, 2 soverom, bad, teknisk rom/bod, kjøkken med åpen løsning til stue og med utgang til veranda på 12 kvm. Det er også utebod og carport samt felles biloppstillingsplasser på sameiets tomt.
Fin beliggenhet på Jørihaugen med kort vei til barnehage, skole, butikk og fine turområder.
Vi ønsker velkommen til visning!
NB: Knappen for å vise hele beskrivelsen har kun en visuell effekt.
NB: Knappen for å vise hele beskrivelsen har kun en visuell effekt.
Salgsoppgaven beskriver vesentlig og lovpålagt informasjon om eiendommen
Se komplett salgsoppgaveNyttige lenker
Nærområdet
EiendomsMegler 1 Kristiansund
Vi loser deg trygt gjennom hele boligsalget
Annonseinformasjon
| FINN-kode | 412071132 |
|---|---|
| Sist endret | 07. jan. 2026 09:54 |
| Referanse | 17250203 |
Annonsene kan være mangelfulle i forhold til lovpålagt opplysningsplikt. Før bindende avtale inngås oppfordres interessenter til å innhente komplett informasjon fra meglerforetaket, selger eller utleier.




















