Bildegalleri

Anders Øium v/Eiendomsmegler 1 presenterer Storrustvegen 31! Foto: Ivar Flagestad.
Dahle
Pen og innholdsrik enebolig med utleiedel i sokkel | Barnevennlig beliggenhet | Garasje | Noe oppgradert
Prisantydning2 100 000 kr
Nøkkelinfo
- Boligtype
- Enebolig
- Eieform
- Eier (Selveier)
- Soverom
- 4
- Internt bruksareal
- 178 m² (BRA-i)
- Bruksareal
- 246 m²
- Eksternt bruksareal
- 68 m² (BRA-e)
- Balkong/Terrasse
- 114 m² (TBA)
- Etasje
- 2
- Byggeår
- 1976
- Rom
- 7
- Tomteareal
- 1 245 m² (eiet)
Fasiliteter
Balkong/Terrasse
Barnevennlig
Garasje/P-plass
Hage
Kjæledyr tillatt
Offentlig vann/kloakk
Peis/Ildsted
Rolig
Utsikt
Turterreng
Visning
Vi ønsker at interessenter melder seg på våre visninger på forhånd. Dette gjør vi for å kunne yte bedre service for våre kunder. Vi anbefaler at salgsoppgaven lastes ned digitalt før visning, og kontakt oss gjerne på forhånd for spørsmål om boligen. Visning avholdes ikke uten påmeldte. Velkommen!
VisningspåmeldingOm boligen
EiendomsMegler1 Lillehammer og Gudbrandsdal presenterer Storrustvegen 31!
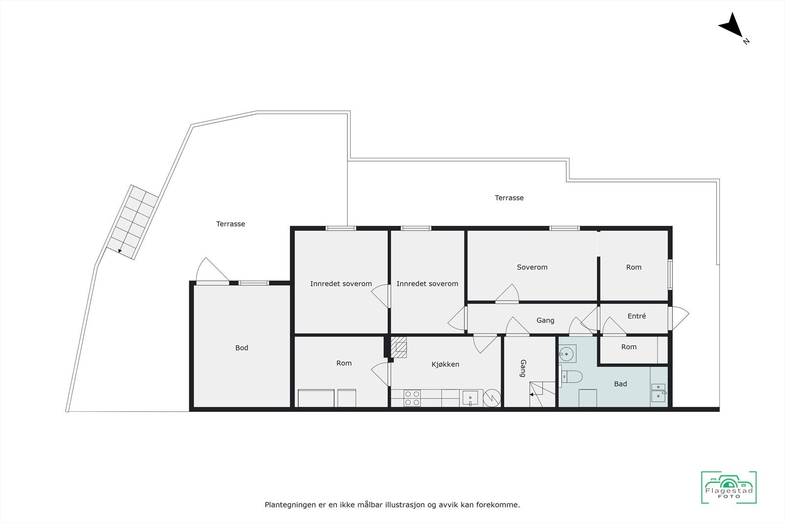
Eneboligen fra 1976 ligger fint til på Dahle, i et etablert og familievennlig område ca 3 km fra Otta sentrum. Boligen går over to plan m/planløsning som bl.a. inneholder stue/spisestue, kjøkken, 3 soverom og bad, samt en underetasje innredet som hybel. Fra stuen er det utgang til utestue m/videre tilgang til romslig terrasse m/fint utsyn mot nærområdet og Otta-elva. Det er godt med bod-/lagringsplass og parkering i garasje. Herfra er det kort avstand til barnehage/skole og få minutters kjøring til nærmeste dagligvare og servicetilbud. Det er fine, nærliggende tur- og friluftsområder, og lysløype rett i nærheten.
Velkommen til visning!
Eneboligen fra 1976 ligger fint til på Dahle, i et etablert og familievennlig område ca 3 km fra Otta sentrum. Boligen går over to plan m/planløsning som bl.a. inneholder stue/spisestue, kjøkken, 3 soverom og bad, samt en underetasje innredet som hybel. Fra stuen er det utgang til utestue m/videre tilgang til romslig terrasse m/fint utsyn mot nærområdet og Otta-elva. Det er godt med bod-/lagringsplass og parkering i garasje. Herfra er det kort avstand til barnehage/skole og få minutters kjøring til nærmeste dagligvare og servicetilbud. Det er fine, nærliggende tur- og friluftsområder, og lysløype rett i nærheten.
Velkommen til visning!
NB: Knappen for å vise hele beskrivelsen har kun en visuell effekt.
NB: Knappen for å vise hele beskrivelsen har kun en visuell effekt.
Salgsoppgaven beskriver vesentlig og lovpålagt informasjon om eiendommen
Se komplett salgsoppgaveNyttige lenker
Nærområdet
EiendomsMegler 1 Lillehammer og Gudbrandsdal - avd Gudbrandsdal
Vi loser deg trygt gjennom hele boligsalget
Annonseinformasjon
| FINN-kode | 411863208 |
|---|---|
| Sist endret | 09. des. 2025 11:13 |
| Referanse | 1312250049 |
Annonsene kan være mangelfulle i forhold til lovpålagt opplysningsplikt. Før bindende avtale inngås oppfordres interessenter til å innhente komplett informasjon fra meglerforetaket, selger eller utleier.






















































