Bildegalleri

Velkommen til Johan Bojers gate 9 - en herskapelig enebolig med en attraktiv og sentrumsnær beliggenhet!
Inaktiv
SENTRUM
Herskapelig enebolig med utmerket beliggenhet i Steinkjer sentrum | Grønn og frodig hage | Gode sol- og utsiktsforhold
Prisantydning5 850 000 kr
Nøkkelinfo
- Boligtype
- Enebolig
- Eieform
- Eier (Selveier)
- Soverom
- 3
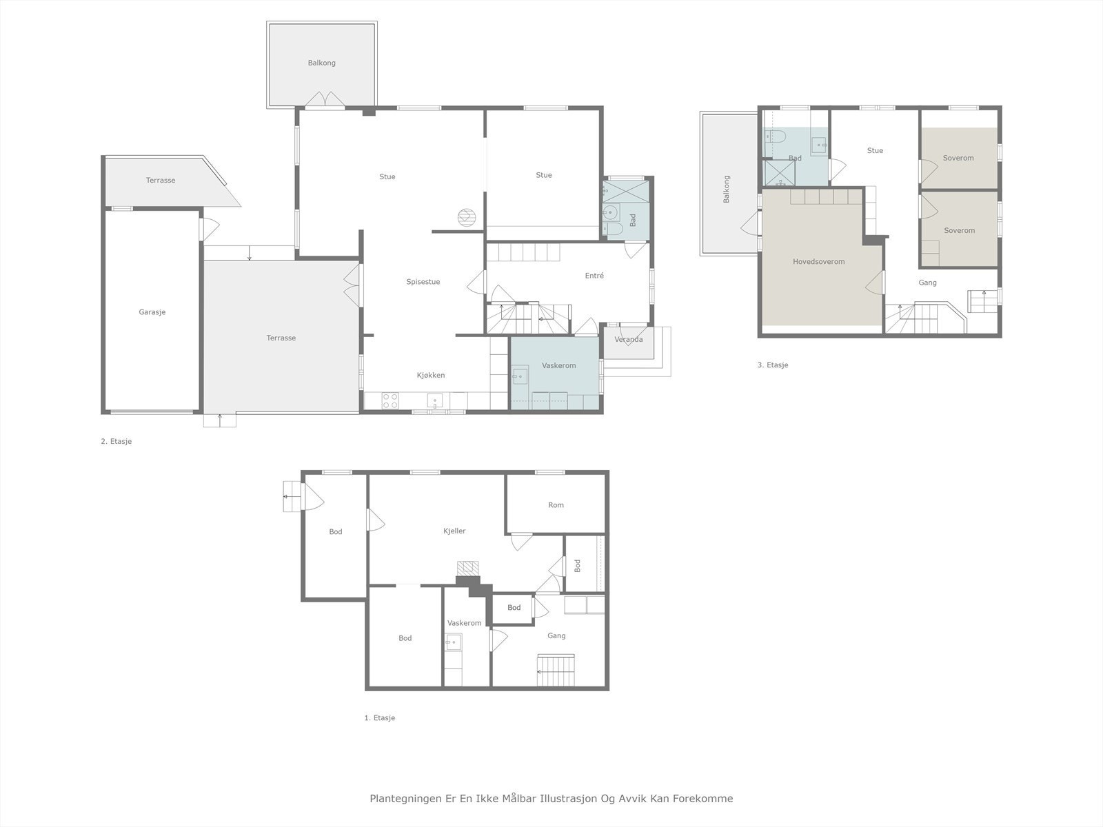
- Internt bruksareal
- 238 m² (BRA-i)
- Bruksareal
- 258 m²
- Eksternt bruksareal
- 20 m² (BRA-e)
- Balkong/Terrasse
- 53 m² (TBA)
- Byggeår
- 1923
- Energimerking
- G - Gul
- Tomteareal
- 548 m² (eiet)
Fasiliteter
Takterrasse
Balkong/Terrasse
Barnevennlig
Bredbåndstilknytning
Garasje/P-plass
Hage
Kjæledyr tillatt
Offentlig vann/kloakk
Parkett
Peis/Ildsted
Rolig
Sentralt
Utsikt
Turterreng
Lademulighet
Balansert ventilasjon
Om boligen
Aktiv eiendomsmegling v/Hallvard Fjone ønsker velkommen til Johan Bojers gate 9 - en svært lekker enebolig med en ettertraktet og attraktiv beliggenhet!
Eneboligen har en utmerket beliggenhet med fantastiske sol- og utsiktsforhold. Villaen fra 1923 har den herskapelige og ærverdige stilen i behold, og har vært gjenstand for betydelige oppgraderinger de seneste årene.
Eiendommen ligger skjermet til i et familievennlig boområde, samtidig som det urbane bylivet er like ved.
Kvaliteter verdt å merke seg:
Eneboligen har en utmerket beliggenhet med fantastiske sol- og utsiktsforhold. Villaen fra 1923 har den herskapelige og ærverdige stilen i behold, og har vært gjenstand for betydelige oppgraderinger de seneste årene.
Eiendommen ligger skjermet til i et familievennlig boområde, samtidig som det urbane bylivet er like ved.
Kvaliteter verdt å merke seg:
- Flere stuer med store vindusflater som gir godt med naturlig lys
- Nydelig hage med fin beplantning
- Garasje med El-bil lader
- Lekkert kjøkken
- Vedfyring, varmepumpe og gulvvarme
- Skole barnehage like i nærheten
- Nærhet til Furuskogen og fine turterreng
NB: Knappen for å vise hele beskrivelsen har kun en visuell effekt.
NB: Knappen for å vise hele beskrivelsen har kun en visuell effekt.
Salgsoppgaven beskriver vesentlig og lovpålagt informasjon om eiendommen
Se komplett salgsoppgaveNyttige lenker
Nærområdet
Aktiv Steinkjer
Annonseinformasjon
| FINN-kode | 411582066 |
|---|---|
| Sist endret | 24. nov. 2025 12:11 |
| Referanse | 1708250017 |
Annonsene kan være mangelfulle i forhold til lovpålagt opplysningsplikt. Før bindende avtale inngås oppfordres interessenter til å innhente komplett informasjon fra meglerforetaket, selger eller utleier.
























































