Bildegalleri

Velkommen til Børjerlia 59 - et av Lommedalens fineste og mest gjennomførte hus
Solgt
LOMMEDALEN
Eksklusiv arkitekttegnet enebolig i blindvei. 5 soverom, fantastisk utsikt, innbydende hage og nærhet til marka
Prisantydning16 000 000 kr
Nøkkelinfo
- Boligtype
- Enebolig
- Eieform
- Eier (Selveier)
- Soverom
- 5
- Internt bruksareal
- 305 m² (BRA-i)
- Bruksareal
- 350 m²
- Eksternt bruksareal
- 45 m² (BRA-e)
- Balkong/Terrasse
- 111 m² (TBA)
- Byggeår
- 1970
- Energimerking
- E - Oransje
- Rom
- 9
- Tomteareal
- 1 446 m² (eiet)
Fasiliteter
Alpinanlegg
Balkong/Terrasse
Barnevennlig
Bredbåndstilknytning
Garasje/P-plass
Golfbane
Hage
Kjæledyr tillatt
Ingen gjenboere
Kabel-TV
Offentlig vann/kloakk
Parkett
Peis/Ildsted
Rolig
Utsikt
Turterreng
Lademulighet
Balansert ventilasjon
Om boligen
Velkommen til Børjerlia 59, og et av Lommedalens fineste og mest gjennomførte hus. Eneboligen har en nydelig beliggenhet i et attraktivt boligområde med nærhet til barnehager, skoler, buss, butikk, fritidsaktiviteter, skibakke og vakre turområder.
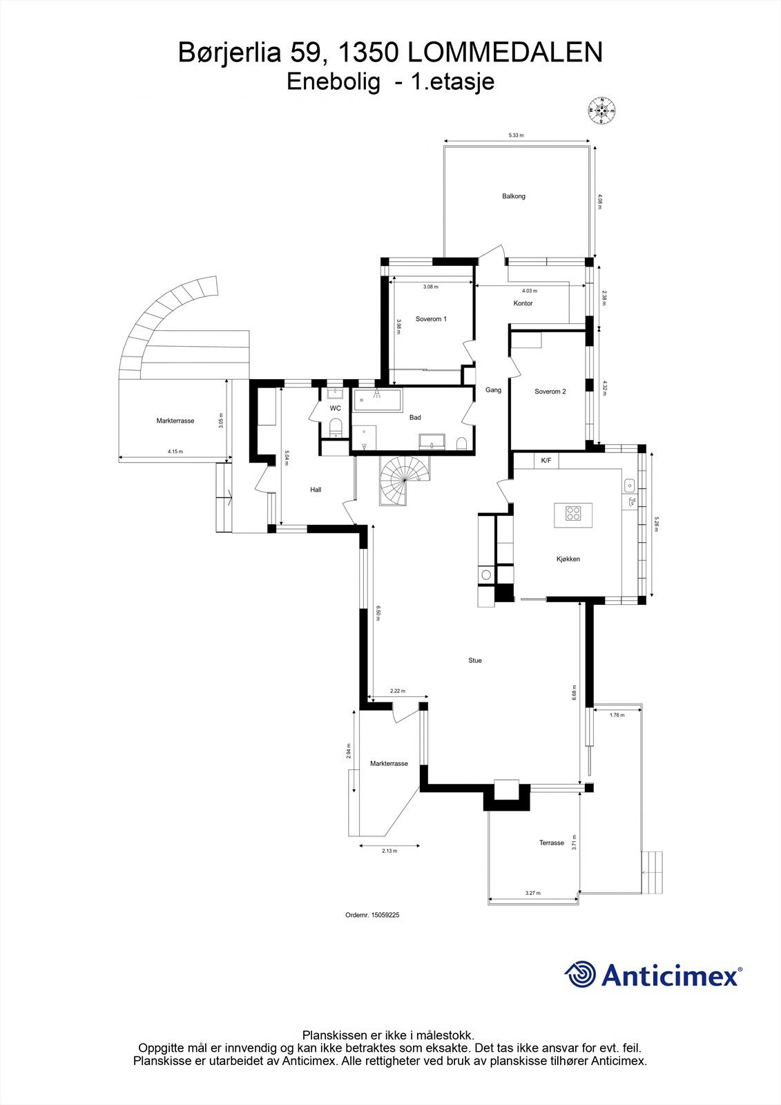
Boligen inneholder:
-Underetasje 131 kvm: Entré, trappegang, 3 soverom hvorav den ene innredet som trimrom, TV stue, bad med jacuzzi, badstue, vaskerom og 2 boder
-1. etasje 174 kvm: Hall, stue, kjøkken, bad, to soverom, toalettrom og kontor
Høydepunkter:
-Særdeles flott arkitekttegnet bolig med gjennomførte, gode valg
- Dobbelt garasje
-Nydelige uteområder, hage og fantastisk utsikt
-Kvänumkjøkken (2022) med Miele/Gaggenau hvitevarer
-3 ildsteder
-Balansert ventilasjon m/varmegjenvinning, to varmepumper
-Barnevennlig og hyggelig område
Boligen inneholder:
-Underetasje 131 kvm: Entré, trappegang, 3 soverom hvorav den ene innredet som trimrom, TV stue, bad med jacuzzi, badstue, vaskerom og 2 boder
-1. etasje 174 kvm: Hall, stue, kjøkken, bad, to soverom, toalettrom og kontor
Høydepunkter:
-Særdeles flott arkitekttegnet bolig med gjennomførte, gode valg
- Dobbelt garasje
-Nydelige uteområder, hage og fantastisk utsikt
-Kvänumkjøkken (2022) med Miele/Gaggenau hvitevarer
-3 ildsteder
-Balansert ventilasjon m/varmegjenvinning, to varmepumper
-Barnevennlig og hyggelig område
NB: Knappen for å vise hele beskrivelsen har kun en visuell effekt.
NB: Knappen for å vise hele beskrivelsen har kun en visuell effekt.
Salgsoppgaven beskriver vesentlig og lovpålagt informasjon om eiendommen
Se komplett salgsoppgaveNyttige lenker
Nærområdet
Krogsveen Bærum
Verdien av en god megler.
Annonseinformasjon
| FINN-kode | 411450753 |
|---|---|
| Sist endret | 07. nov. 2025 13:58 |
| Referanse | KR10.25140 |
Annonsene kan være mangelfulle i forhold til lovpålagt opplysningsplikt. Før bindende avtale inngås oppfordres interessenter til å innhente komplett informasjon fra meglerforetaket, selger eller utleier.















































































