Bildegalleri

Velkommen til Kastanjeveien 52! Foto: Ole Thorgeir Solheim Thoresen
Åssiden
Praktisk og arealeffektiv 2-roms eierleilighet beliggende i 1. etasje. Innglasset balkong. Garasjeplass. Rett v/marka.
Prisantydning2 150 000 kr
Pris på lån: fra 8 702 kr/mnd
Eff.rente 5,00 %. 1 505 000 o/25 år. Kostnad: 1 105 600 kr. Totalt 2 610 600 kr.
LånekalkulatorNøkkelinfo
- Boligtype
- Leilighet
- Eieform
- Eier (Selveier)
- Soverom
- 1
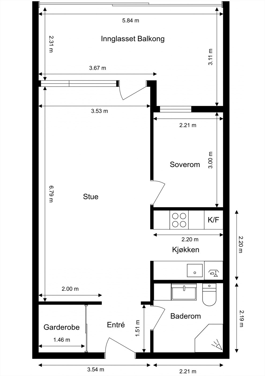
- Internt bruksareal
- 47 m² (BRA-i)
- Bruksareal
- 66 m²
- Eksternt bruksareal
- 4 m² (BRA-e)
- Innglasset balkong
- 15 m² (BRA-b)
- Etasje
- 1
- Byggeår
- 1977
- Energimerking
- F - Rød
- Rom
- 2
- Tomteareal
- 9 030 m² (eiet)
Fasiliteter
Balkong/Terrasse
Bredbåndstilknytning
Garasje/P-plass
Kjæledyr tillatt
Kabel-TV
Offentlig vann/kloakk
Rolig
Utsikt
Turterreng
Visning
Privatvisninger avholdes fortløpende. Trykk på "Visningspåmelding" eller kontakt megler på telefon/epost for å avtale dag/klokkeslett for visning.
VisningspåmeldingOm boligen
Praktisk og arealeffektiv 2-roms eierleilighet beliggende i 1. etasje.
- Stue med delåpen løsning mot kjøkkenet
- Kjøkken med god skap- og skuffeplass
- Bad med dusjkabinett og opplegg for vaskemaskin
- Garderobe på soverom og i gang
- Det er noe behov for oppussing/oppgradering
- Lagringsplass i boder
- Innglasset balkong på ca. 15 kvm med skyvbare glassfelt
- Boligblokken er beliggende i høyden på Åssiden
- Nytt garasjeanlegg med lavere høyde i terrenget skal bygges 2026/2027
- Kort gangavstand til bussholdeplass
- Ca. 10 min kjøreavstand til Drammen sentrum med togstasjon, bussknutepunkt og sentrumsfasiliteter
- Felleskostnader blir ca. kr. 6.670,- fra ca. 1. juni 2026
Velkommen til visning!
NB: Knappen for å vise hele beskrivelsen har kun en visuell effekt.
NB: Knappen for å vise hele beskrivelsen har kun en visuell effekt.
Salgsoppgaven beskriver vesentlig og lovpålagt informasjon om eiendommen
Se komplett salgsoppgaveNyttige lenker
Nærområdet
Krogsveen Drammen
Velkommen til en enklere boligreise.
Annonseinformasjon
| FINN-kode | 411437364 |
|---|---|
| Sist endret | 07. des. 2025 21:14 |
| Referanse | KR20.25212 |
Annonsene kan være mangelfulle i forhold til lovpålagt opplysningsplikt. Før bindende avtale inngås oppfordres interessenter til å innhente komplett informasjon fra meglerforetaket, selger eller utleier.



















