Bildegalleri

Velkommen til Nordre gate 9D - Presentert av Christoffer Brekke-Hammersland og Hannah Douglas v/Privatmegleren Park.
Solgt
GRÜNERLØKKA
Unikt og rålekkert townhouse over tre plan fra 2018 midt på Grünerløkka med peis, takterrasse og grønn oase i bakgård.
Prisantydning14 900 000 kr
Nøkkelinfo
- Boligtype
- Rekkehus
- Eieform
- Eier (Selveier)
- Soverom
- 3
- Internt bruksareal
- 117 m² (BRA-i)
- Bruksareal
- 122 m²
- Eksternt bruksareal
- 5 m² (BRA-e)
- Balkong/Terrasse
- 13 m² (TBA)
- Byggeår
- 2018
- Energimerking
- A - Gul
- Rom
- 4
- Tomteareal
- 262 m² (eiet)
- Boligselgerforsikring
- Ja
Fasiliteter
Balkong/Terrasse
Peis/Ildsted
Parkett
Barnevennlig
Rolig
Moderne
Sentralt
Garasje/P-plass
Turterreng
Alarm
Offentlig vann/kloakk
Utsikt
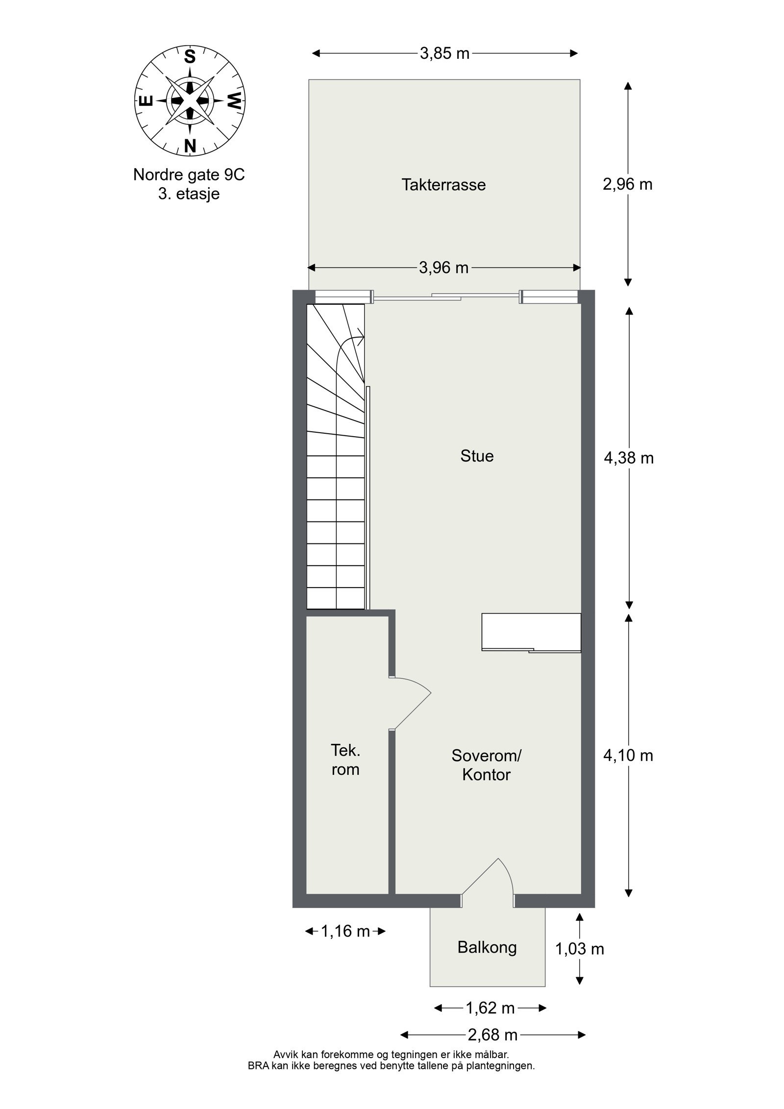
Om boligen
Velkommen til Nordre gate 9C - Et moderne og sjeldent townhouse i byens mest spennende nabolag.
Her får du hus og hage midt i byen. Boligen består av entré, åpen stue- og kjøkkenløsning med god plass til spisegruppe, moderne kjøkken, bad, ekstra toalettrom, 2/3 soverom, tv-stue, bod, balkong og en fantastisk takterrasse med fantastiske solforhold.
- Rålekkert og urbant design
- 3 plan, felles uteplass, 1 balkong og 1 stor usjenert takterrasse med gode solforhold
- Høy standard og smarte løsninger
- Svært gode lagringsmuligheter i boder
- Vannbåren varme i 1. etasje
- Balansert ventilasjon
- Mulighet for leie av garasjeplass med lader
- Nærhet til flotte tur-og rekreasjonsmuligheter som Akerselva og områdets mange parker
- Kort vei til kollektivtilbud og alt som Grünerløkka kan tilby
NB: Knappen for å vise hele beskrivelsen har kun en visuell effekt.
NB: Knappen for å vise hele beskrivelsen har kun en visuell effekt.
Salgsoppgaven beskriver vesentlig og lovpålagt informasjon om eiendommen
Se komplett salgsoppgaveNyttige lenker
Nærområdet

PrivatMegleren Park
Kun det beste på dine vegne
Annonsene kan være mangelfulle i forhold til lovpålagt opplysningsplikt. Før bindende avtale inngås oppfordres interessenter til å innhente komplett informasjon fra meglerforetaket, selger eller utleier.















































