Bildegalleri

Velkommen til Kvernstuveien 2, 8 etg. En påkostet 3 roms fra 2020 med sentral beliggenhet. Sydvendt balkong på 17 kvm. Hei og garasjeplass med el-bil lader.
Mo Sentrum - Nittedal
Påkostet 3-roms fra 2020 med sentral beliggenhet. 8. etasje. Sydvendt balkong på 17 m². Heis. Garasjeplass
Prisantydning5 590 000 kr
Nøkkelinfo
- Boligtype
- Leilighet
- Eieform
- Eier (Selveier)
- Soverom
- 2
- Internt bruksareal
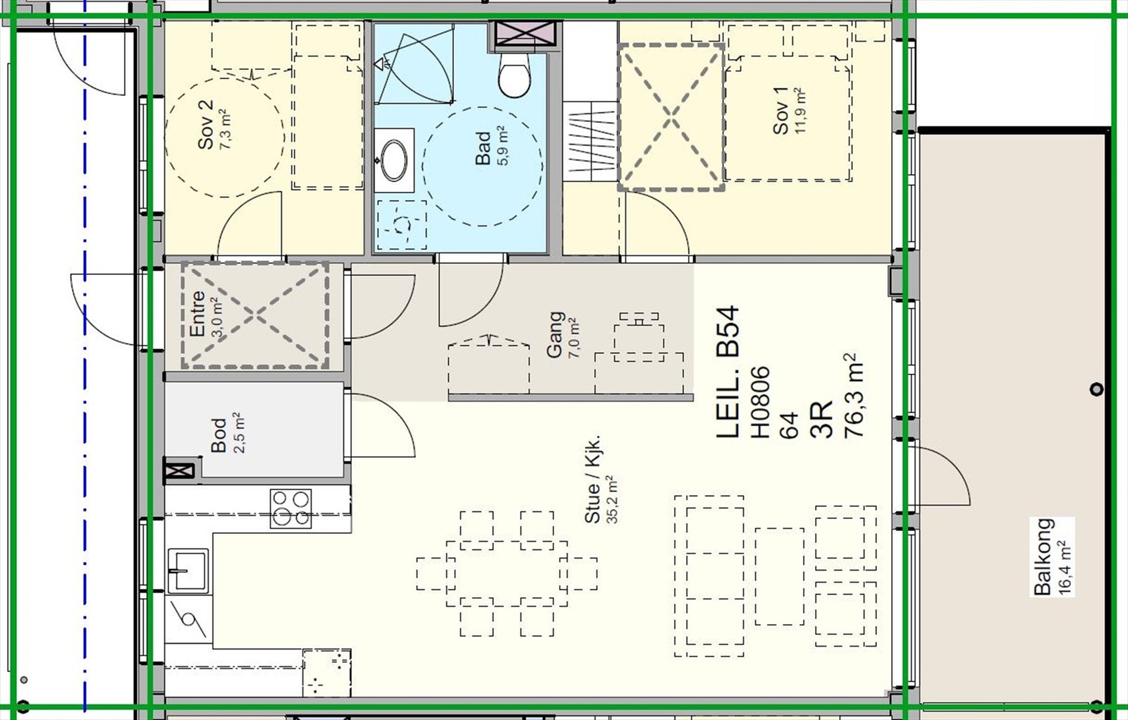
- 76 m² (BRA-i)
- Bruksareal
- 81 m²
- Eksternt bruksareal
- 5 m² (BRA-e)
- Balkong/Terrasse
- 17 m² (TBA)
- Etasje
- 8
- Byggeår
- 2020
- Energimerking
- A - Gul
- Rom
- 6
- Tomteareal
- 5 605 m² (eiet)
Fasiliteter
Balkong/Terrasse
Bredbåndstilknytning
Garasje/P-plass
Heis
Kabel-TV
Offentlig vann/kloakk
Parkett
Sentralt
Utsikt
Turterreng
Lademulighet
Balansert ventilasjon
Om boligen
Velkommen til en nyere og lekker 3-roms i Sentrum terrasse!
Dette er midt i hjertet av Nittedal, hvor du kan ta heisen rett ned til Mosenteret med tilgang til alle fasiliteter. Her bor du enkelt og greit mens vaktmesteren passer utearealene.
Planløsningen er godt utnyttet, og består av kjøkken og stue i sosial åpen løsning, to gode soverom, entré med gode oppbevaringsmuligheter, samt et pent flislagt bad med varmekabler. Det er også gulvvarme i entré, gang og stue/kjøkken.
Kort fortalt:
Nyere og innflytningsklar 3-roms
Gulvvarme i entré, gang, stue/kjøkken og bad
Sigdal kjøkken m/integrerte hvitevarer
Romslig stue m/store vindusflater
Vannbåren varme i gulvene
Ekstern bod i samme etasje
TV/internett, a-kto varmtvann & oppvarming ink.
1 garasjeplass følger,
Leiligheten selges møblert
Dette er midt i hjertet av Nittedal, hvor du kan ta heisen rett ned til Mosenteret med tilgang til alle fasiliteter. Her bor du enkelt og greit mens vaktmesteren passer utearealene.
Planløsningen er godt utnyttet, og består av kjøkken og stue i sosial åpen løsning, to gode soverom, entré med gode oppbevaringsmuligheter, samt et pent flislagt bad med varmekabler. Det er også gulvvarme i entré, gang og stue/kjøkken.
Kort fortalt:
Nyere og innflytningsklar 3-roms
Gulvvarme i entré, gang, stue/kjøkken og bad
Sigdal kjøkken m/integrerte hvitevarer
Romslig stue m/store vindusflater
Vannbåren varme i gulvene
Ekstern bod i samme etasje
TV/internett, a-kto varmtvann & oppvarming ink.
1 garasjeplass følger,
Leiligheten selges møblert
NB: Knappen for å vise hele beskrivelsen har kun en visuell effekt.
NB: Knappen for å vise hele beskrivelsen har kun en visuell effekt.
Salgsoppgaven beskriver vesentlig og lovpålagt informasjon om eiendommen
Se komplett salgsoppgaveNyttige lenker
Nærområdet
Krogsveen Nittedal
Verdien av en god megler.
Annonseinformasjon
| FINN-kode | 410934771 |
|---|---|
| Sist endret | 22. jan. 2026 12:52 |
| Referanse | KR62.2541 |
Annonsene kan være mangelfulle i forhold til lovpålagt opplysningsplikt. Før bindende avtale inngås oppfordres interessenter til å innhente komplett informasjon fra meglerforetaket, selger eller utleier.





































