Bildegalleri

Slik kan kontoret bli med møbler
Sentrum / Torggata - Lys kontorlokale. Kantine og sykkelparkering
Nøkkelinfo
- Areal
- 487 m²
- Etasje
- 3.
- Overtakelse
- 01.04.2025
Type lokale
Fasiliteter
Om eiendommen
Velkommen til Torggata 5. Eiendommen ligger rett ved Stortorvet med ca. 5 minutters gange fra Jernbanetorget og Oslo S. Eiendommen har fellesfasiliteter som innendørs sykkelparkering og fullverdig kantine med varm mat alle hverdager, se bilder.
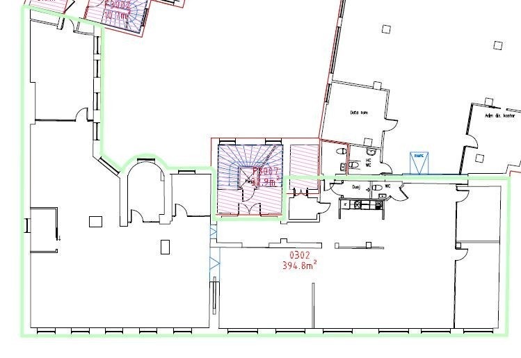
Arealnr. 302 ligger i 3. etasje og er på 394,8 kvm netto / 487,1 kvm brutto. Nåværende planløsning består av åpent kontorlandskap, lukkede kontorsoner, møterom, store sosiale soner og kjøkken. Det er flere toaletter i lokalet.
Beliggenhet
Torggata er en spennende gate som har utviklet seg mye de siste årene og er nå den tredje største handlegaten i Oslo. Torggata har blitt en fargerik, livlig og trendy gate med unike nisjebutikker, spennende spisesteder og kule barer har fylt lokalene på gateplan. Fasadene har blitt pusset opp, kommunen har fått på plass sykkelveier og området har fått et skikkelig løft. Det har med andre ord skjedd mye det siste tiåret i gata som knytter sentrum og Grünerløkka sammen – og Torggata fortsetter stadig å utvikle seg. Fra eiendommen er det ca 5 minutters gange til Jernbanetorget og Oslo S.
Visning
Ta kontakt for å avtale visning.Thon Eiendom
John Ejnar Blomlie Müller
Nærområdet
Annonseinformasjon
| FINN-kode | 410910319 |
|---|---|
| Sist endret | 17. juli 2025 08:08 |
| Referanse | Eline Høyte |
Annonsene kan være mangelfulle i forhold til lovpålagt opplysningsplikt. Før bindende avtale inngås oppfordres interessenter til å innhente komplett informasjon fra meglerforetaket, selger eller utleier.















