Bildegalleri

Lokale har et industriellest preg med flere kule detaljer
Innflyttingsklare kontorlokaler sentralt i Torggata
Nøkkelinfo
- Areal
- 861 m²
- Etasje
- 4.
- Overtakelse
- 01.04.2025
Type lokale
Fasiliteter
Om eiendommen
Velkommen til Torggata 7. Eiendommen ligger rett ved Stortorvet med ca. 5 minutters gange til Jernbanetorget og Oslo S. Flere kreative selskap er etablert i gaten som passer godt for selskap med et ungt miljø med tanke på alt som finnes rett utenfor døra i Torggata.
Lokalet i 4.etg er innflyttingsklare med åpent kontorlandskap flere møte- og stillerom samt sosiale soner. Kontorlokalet har også kjøkken og spisesoner.
Dersom dere liker å sykle til jobben er det gode muligheter for det med både innendørs sykkelparkering og dusj i lokalet.
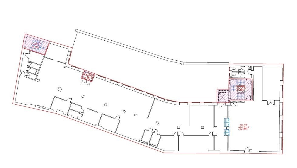
Arealnr. 401 ligger i 4. etasje og er på 860,7 m² brutto og netto 712,7 m².
Beliggenhet
Torggata er en spennende gate som har utviklet seg mye de siste årene og er nå den tredje største handlegaten i Oslo. Torggata har blitt en fargerik, livlig og trendy gate med unike nisjebutikker, spennende spisesteder og kule barer har fylt lokalene på gateplan. Fasadene har blitt pusset opp, kommunen har fått på plass sykkelveier og området har fått et skikkelig løft. Det har med andre ord skjedd mye det siste tiåret i gata som knytter sentrum og Grünerløkka sammen – og Torggata fortsetter stadig å utvikle seg. Fra eiendommen er det ca. 5 minutters gange til Jernbanetorget og Oslo S.
Visning
Ta kontakt for å avtale visning.Thon Eiendom
John Ejnar Blomlie Müller
Nærområdet
Annonseinformasjon
| FINN-kode | 410784957 |
|---|---|
| Sist endret | 10. juli 2025 10:49 |
| Referanse | Eline Høyte |
Annonsene kan være mangelfulle i forhold til lovpålagt opplysningsplikt. Før bindende avtale inngås oppfordres interessenter til å innhente komplett informasjon fra meglerforetaket, selger eller utleier.















