Bildegalleri

Velkommen til Kjetilskotvegen 505 - Duohytte med nydelig beliggenhet på toppen av Vrådal Panorama!
Vrådal Panorama
Smakfull og tidløst innredet hytte -Fantastisk utsikt - Ski in/Ski out
Prisantydning2 950 000 kr
- Omkostninger
- 84 790 kr
- Totalpris
- 3 034 790 kr
- Kommunale avg.
- 13 988 kr per år
- Formuesverdi
- 713 625 kr
Nøkkelinfo
- Beliggenhet
- På fjellet
- Boligtype
- Hytte
- Eieform
- Selveier
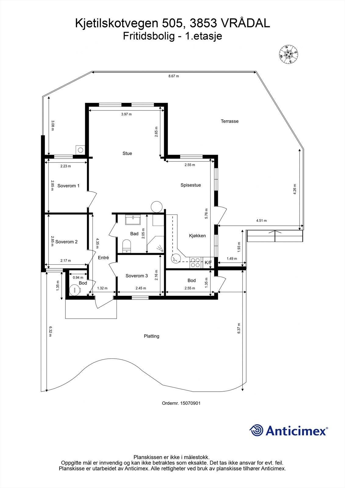
- Internt bruksareal
- 71 m² (BRA-i)
- Bruksareal
- 75 m²
- Eksternt bruksareal
- 4 m² (BRA-e)
- Balkong/Terrasse
- 109 m² (TBA)
- Tomteareal
- 1 043 m² (eiet)
- Byggeår
- 2010
- Soverom
- 3
- Rom
- 4
- Energimerking
Fasiliteter
Innlagt vann
Alpinanlegg
Balkong/Terrasse
Barnevennlig
Bilvei frem
Bredbåndstilknytning
Garasje/P-plass
Kabel-TV
Peis/Ildsted
Rolig
Utsikt
Bademulighet
Innlagt strøm
Offentlig vann/kloakk
Turterreng
Visning
For å delta på visning må du melde deg på i forkant. Dette sikrer at du mottar viktig informasjon, og at vi kan sette av god tid til deg. Visning vil ikke bli avholdt dersom det ikke er noen påmeldte.
Dersom oppsatt tidspunkt ikke passer, ta kontakt med megler for å avtale en privatvisning.
Vi anbefaler også at du leser salgsoppgaven før visning, slik at du stiller godt forberedt.
Ønsker du kun å holde deg orientert om salget, kan du registrere deg på eiendommens hjemmeside for å få varsel om solgtpris eller kontakte megler direkte.
VisningspåmeldingOm boligen
Velkommen til Kjetilskotvegen 505 på toppen av Vrådal Panorama!
Dette er stilren og lettstelt duohytte med flott beliggenhet høyt i terrenget. Her får du nydelig panoramautsikt mot Vrådal og omkringliggende fjell samt solrike uteplasser. Hytten er smakfullt innredet i moderne stil og har en smart planløsning med 3 soverom, bad, åpen stue- og kjøkkenløsning, hems og utebod. Et usjenert fristed med ro, rekreasjon og aktiviteter året rundt.
Høydepunkter:
- Gode uteleimuligheter
- Fantastisk utsikt mot Vrådal og fjellene
- Sol fra morgen til kveld på stor terrasse
- 3 soverom + hems til overnatting og lagring
- Kort vei til slalåmløypa og Utsikten spisested
- Langrennsløyper like utenfor hytteveggen
- Lekeplass
- Sauna og bademulighet ca.200m unna
- Helårsaktiviteter i vakre omgivelser
Dette er stilren og lettstelt duohytte med flott beliggenhet høyt i terrenget. Her får du nydelig panoramautsikt mot Vrådal og omkringliggende fjell samt solrike uteplasser. Hytten er smakfullt innredet i moderne stil og har en smart planløsning med 3 soverom, bad, åpen stue- og kjøkkenløsning, hems og utebod. Et usjenert fristed med ro, rekreasjon og aktiviteter året rundt.
Høydepunkter:
- Gode uteleimuligheter
- Fantastisk utsikt mot Vrådal og fjellene
- Sol fra morgen til kveld på stor terrasse
- 3 soverom + hems til overnatting og lagring
- Kort vei til slalåmløypa og Utsikten spisested
- Langrennsløyper like utenfor hytteveggen
- Lekeplass
- Sauna og bademulighet ca.200m unna
- Helårsaktiviteter i vakre omgivelser
NB: Knappen for å vise hele beskrivelsen har kun en visuell effekt.
NB: Knappen for å vise hele beskrivelsen har kun en visuell effekt.
Salgsoppgaven beskriver vesentlig og lovpålagt informasjon om eiendommen
Se komplett salgsoppgaveNyttige lenker
Nærområdet
Krogsveen Sandefjord
Verdien av en god megler.
Annonseinformasjon
| FINN-kode | 410365477 |
|---|---|
| Sist endret | 25. mars 2026 09:59 |
| Referanse | KR22.25169 |
Annonsene kan være mangelfulle i forhold til lovpålagt opplysningsplikt. Før bindende avtale inngås oppfordres interessenter til å innhente komplett informasjon fra meglerforetaket, selger eller utleier.
























































