Bildegalleri

Flott to-roms - trappefri adkomst - garasje - lave fellesutgifter - utleie mulighet - tv og internett inkl. m.m.
Prisantydning3 650 000 kr
Nøkkelinfo
- Boligtype
- Leilighet
- Eieform
- Selveier
- Soverom
- 1
- Internt bruksareal
- 54 m² (BRA-i)
- Bruksareal
- 54 m²
- Etasje
- 1
- Byggeår
- 2015
- Energimerking
- Rom
- 2
- Tomteareal
- 11 048 m² (eiet)
Fasiliteter
Alpinanlegg
Balkong/Terrasse
Barnevennlig
Bredbåndstilknytning
Garasje/P-plass
Golfbane
Kabel-TV
Offentlig vann/kloakk
Parkett
Rolig
Sentralt
Bademulighet
Fiskemulighet
Turterreng
Lademulighet
Om boligen
Nordvik eiendomsmegling har gleden av å presentere en flott to-roms i en firemannsbolig med garasje i garasjerekke.
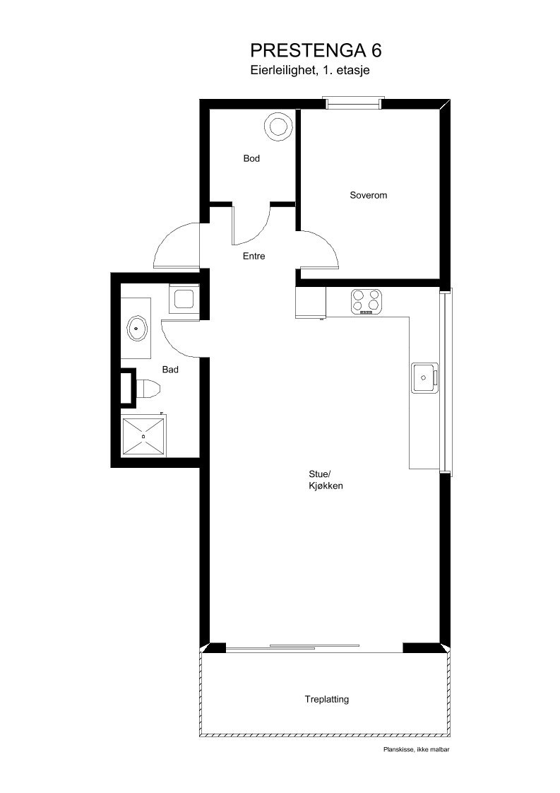
Boligen ligger i 1.etg. og inneholder følgende:
- entré
- stue
- kjøkken
- bad/WC
- soverom I
- innebod på ca. tre kvm.
-markterrasse på ca. 8 kvm.
I tillegg disponerer:
- garasjeplass i felles rekke
- en utebod på ca. 4 kvm.
Høydepunkter med boligen og området:
- gjennomgående
- hjørne og endeleilighet
- varmekabler på bad/WC
- mulighet for lading av el-bil på gjesteparkeringen
- foretatt tester med fuktsøker på våtrommet, uten unormale utslag de steder søkene ble
utført TG0
- ingen avvik mellom byggemeldte tegninger og slik boligen fremstår i dag
- trappefri adkomst
- ingen fellesgjeld
- barnevennlig
- hyggelig nabolag
- populær beliggenhet
Boligen ligger i 1.etg. og inneholder følgende:
- entré
- stue
- kjøkken
- bad/WC
- soverom I
- innebod på ca. tre kvm.
-markterrasse på ca. 8 kvm.
I tillegg disponerer:
- garasjeplass i felles rekke
- en utebod på ca. 4 kvm.
Høydepunkter med boligen og området:
- gjennomgående
- hjørne og endeleilighet
- varmekabler på bad/WC
- mulighet for lading av el-bil på gjesteparkeringen
- foretatt tester med fuktsøker på våtrommet, uten unormale utslag de steder søkene ble
utført TG0
- ingen avvik mellom byggemeldte tegninger og slik boligen fremstår i dag
- trappefri adkomst
- ingen fellesgjeld
- barnevennlig
- hyggelig nabolag
- populær beliggenhet
NB: Knappen for å vise hele beskrivelsen har kun en visuell effekt.
NB: Knappen for å vise hele beskrivelsen har kun en visuell effekt.
Salgsoppgaven beskriver vesentlig og lovpålagt informasjon om eiendommen
Se komplett salgsoppgaveNyttige lenker
Nærområdet
Nordvik St.Hanshaugen
Annonseinformasjon
| FINN-kode | 410273008 |
|---|---|
| Sist endret | 27. mars 2026 18:35 |
| Referanse | 5-0225/25 |
Annonsene kan være mangelfulle i forhold til lovpålagt opplysningsplikt. Før bindende avtale inngås oppfordres interessenter til å innhente komplett informasjon fra meglerforetaket, selger eller utleier.






















