Bildegalleri

Kristoffer Mjåtveit har gleden av å presentere Lille Bislett 24! Illustrasjonsbilde fra tilsvarende leilighet - merk at balkongdøren i denne leiligheten er plassert på motsatt side.
Solgt
Attraktivt og sentralt på Bislett
Innbydende og hyggelig leilighet m solrik, vestvendt balkong - Heis - Vv og fyring inkludert - Perfekt førstegangskjøp!
Prisantydning4 290 000 kr
Nøkkelinfo
- Boligtype
- Leilighet
- Eieform
- Eier (Selveier)
- Soverom
- 0
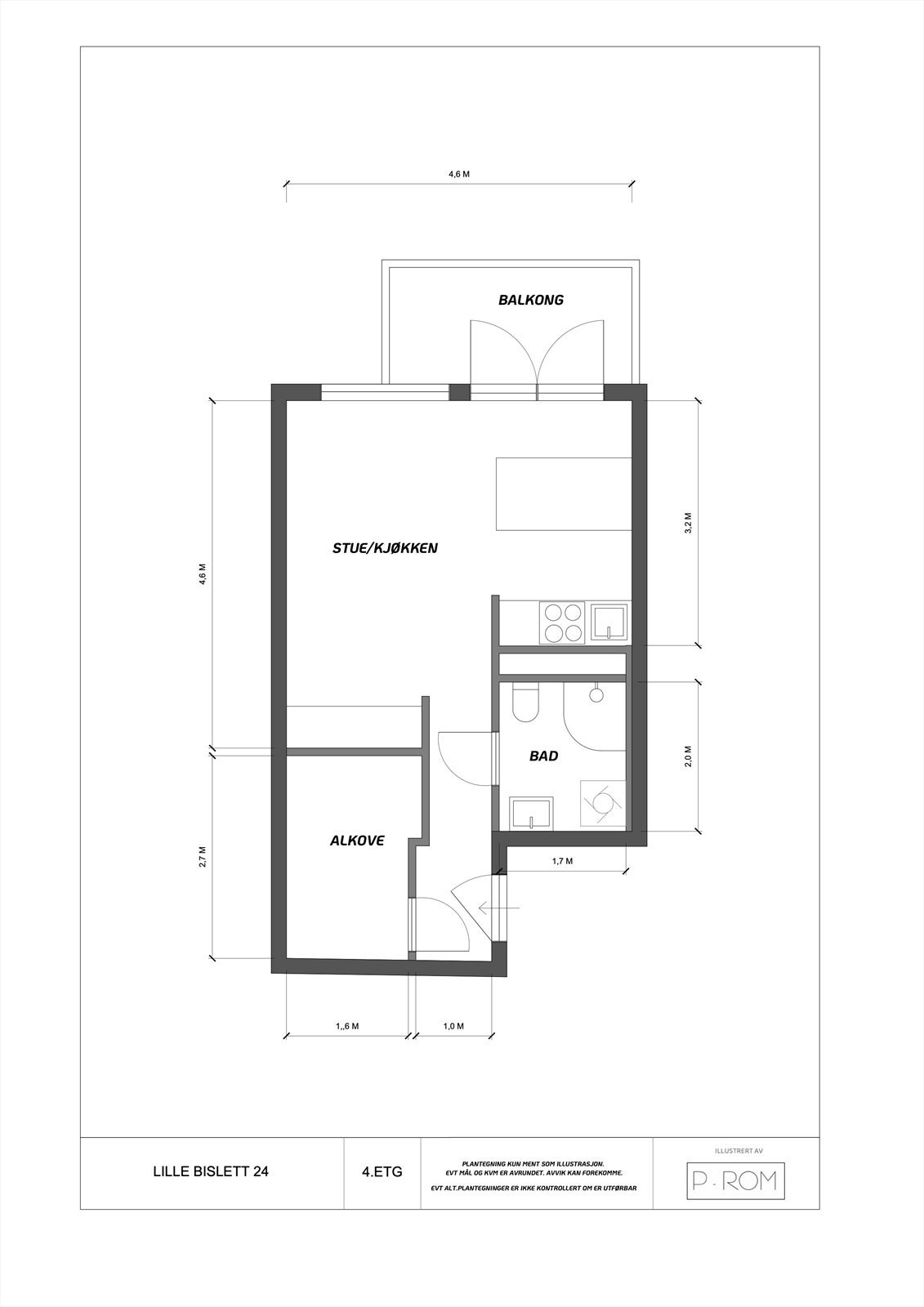
- Internt bruksareal
- 31 m² (BRA-i)
- Bruksareal
- 36 m²
- Eksternt bruksareal
- 5 m² (BRA-e)
- Balkong/Terrasse
- 4 m² (TBA)
- Etasje
- 4
- Byggeår
- 2007
- Energimerking
- D - Mørkegrønn
- Rom
- 1
- Tomteareal
- 5 011 m² (eiet)
Fasiliteter
Balkong/Terrasse
Bredbåndstilknytning
Heis
Kabel-TV
Offentlig vann/kloakk
Parkett
Rolig
Sentralt
Turterreng
Om boligen
Velkommen til Lille Bislett 24 - En fin, innbydende og hyggelig 1-roms med en sentralt beliggenhet på Bislett med nærhet til alt . Sameiet har en idyllisk og frodig bakgård med fine sittegrupper og pen beplantning, kun for beboerne.
Leiligheten har en arealeffektiv planløsning, hvor hver kvadratmeter er utnyttet til det maksimale. Her har du entré, pent kjøkken, stue med store vindusflater, skjermet sovealkove og flislagt bad.
Leiligheten har en arealeffektiv planløsning, hvor hver kvadratmeter er utnyttet til det maksimale. Her har du entré, pent kjøkken, stue med store vindusflater, skjermet sovealkove og flislagt bad.
- Hyggelig balkong på ca. 4 kvm.
- Store vindusflater
- Velholdt, med standard fra 2007
- Kjellerbod
- Heis og felles sykkelbod i bygget
- Lave felleskostnader på 2 018,- med varmtvann, fyring og internett inkl.
- Felles takterrasse
- Mulighet for garasjeleie i privat regi
- Veldrevet sameie
- Perfekt førstegangskjøp!
NB: Knappen for å vise hele beskrivelsen har kun en visuell effekt.
NB: Knappen for å vise hele beskrivelsen har kun en visuell effekt.
Salgsoppgaven beskriver vesentlig og lovpålagt informasjon om eiendommen
Se komplett salgsoppgaveNyttige lenker
Nærområdet
Nordvik St.Hanshaugen
Annonseinformasjon
| FINN-kode | 410257778 |
|---|---|
| Sist endret | 31. aug. 2025 20:20 |
| Referanse | 5-0240/25 |
Annonsene kan være mangelfulle i forhold til lovpålagt opplysningsplikt. Før bindende avtale inngås oppfordres interessenter til å innhente komplett informasjon fra meglerforetaket, selger eller utleier.


































