Bildegalleri

EIE eiendomsmegling v/ Inger Johanne Mauland Frivold har gleden av å presentere Selvikveien 88
Solgt
Nydelig fritidseiendom |Hytte, anneks, naust og brygge | Herlig sted med fantastisk utsikt
Prisantydning5 850 000 kr
- Omkostninger
- 167 500 kr
- Totalpris
- 6 017 500 kr
- Kommunale avg.
- 3 010 kr per år
- Formuesverdi
- 159 675 kr
Nøkkelinfo
- Beliggenhet
- Ved sjøen
- Boligtype
- Hytte
- Eieform
- Eier (Selveier)
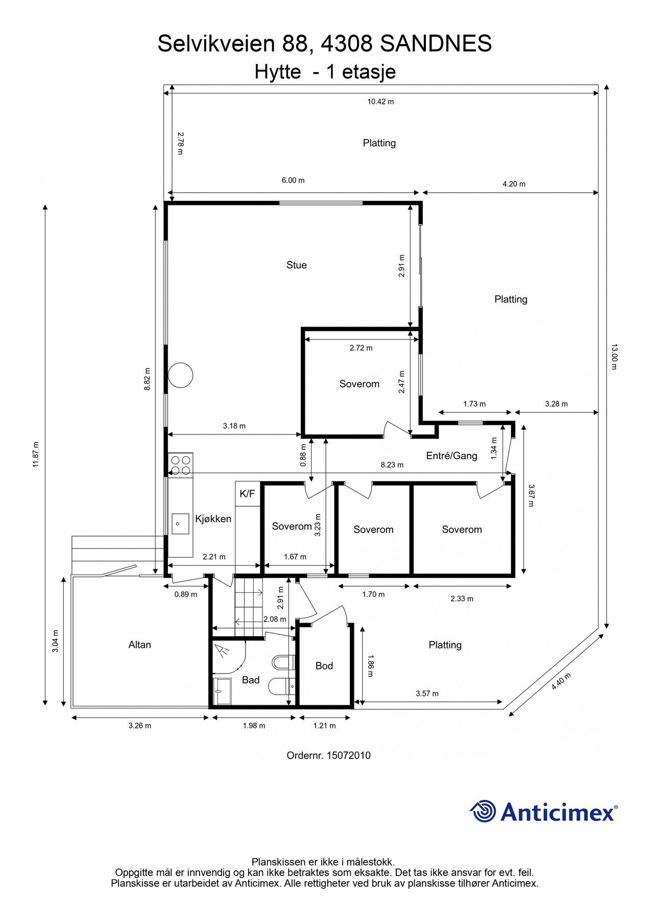
- Internt bruksareal
- 73 m² (BRA-i)
- Bruksareal
- 121 m²
- Eksternt bruksareal
- 48 m² (BRA-e)
- Balkong/Terrasse
- 90 m² (TBA)
- Tomteareal
- 5 000 m² (eiet)
- Byggeår
- 1948
- Soverom
- 4
- Rom
- 5
- Energimerking
- G - Oransje
Fasiliteter
Balkong/Terrasse
Fiskemulighet
Peis/Ildsted
Strandlinje
Turterreng
Utsikt
Båtplass
Innlagt strøm
Innlagt vann
Om boligen
EIE eiendomsmegling v/ Inger Johanne M. Frivold presenterer Selvikveien 88.
Virkelig et nydelig sted.
Eiendommen:
- Ca. 5 mål
- Strandlinje
- Naust og brygge
- Anneks
- Opparbeidet med steinheller, plattinger, utekjøkken, plen, beplantning samt naturtomt. Trapper og sti opp fra brygge.
- Usjenert og solrikt
- Ca. 15 minutter å gå fra parkeringen eller få minutter med båt fra Selvikvågen
Hytta:
- Renovert i 2014 og 2022
- Nydelig utsikt
- Rommelig stue og kjøkken
- 4 soverom + hems
- Balkong med glasstak
- Innlagt vann
- Dusj og hyttetoalett
En eiendom som innbyr til aktivitet enten det er båtliv, fisking, bading, sportsaktiviteter, turer i flotte turområder på merkede stier, eller bare å nyte dagene i solveggen, hengekøya eller putle med det man måtte ønske. Familietid, alenetid, hjemmekontor, et sted å ta imot gjester og ikke minst et sted som vil gi varige gleder og minner.
Virkelig et nydelig sted.
Eiendommen:
- Ca. 5 mål
- Strandlinje
- Naust og brygge
- Anneks
- Opparbeidet med steinheller, plattinger, utekjøkken, plen, beplantning samt naturtomt. Trapper og sti opp fra brygge.
- Usjenert og solrikt
- Ca. 15 minutter å gå fra parkeringen eller få minutter med båt fra Selvikvågen
Hytta:
- Renovert i 2014 og 2022
- Nydelig utsikt
- Rommelig stue og kjøkken
- 4 soverom + hems
- Balkong med glasstak
- Innlagt vann
- Dusj og hyttetoalett
En eiendom som innbyr til aktivitet enten det er båtliv, fisking, bading, sportsaktiviteter, turer i flotte turområder på merkede stier, eller bare å nyte dagene i solveggen, hengekøya eller putle med det man måtte ønske. Familietid, alenetid, hjemmekontor, et sted å ta imot gjester og ikke minst et sted som vil gi varige gleder og minner.
NB: Knappen for å vise hele beskrivelsen har kun en visuell effekt.
NB: Knappen for å vise hele beskrivelsen har kun en visuell effekt.
Salgsoppgaven beskriver vesentlig og lovpålagt informasjon om eiendommen
Se komplett salgsoppgaveNyttige lenker
Nærområdet
EIE eiendomsmegling - Rogaland Eiendomsmegling AS
Annonseinformasjon
| FINN-kode | 410254581 |
|---|---|
| Sist endret | 10. mars 2026 10:02 |
| Referanse | 54251045 |
Annonsene kan være mangelfulle i forhold til lovpålagt opplysningsplikt. Før bindende avtale inngås oppfordres interessenter til å innhente komplett informasjon fra meglerforetaket, selger eller utleier.




































































