Bildegalleri

Velkommen til Frøystadveien 6 - Pen 3 roms leilighet i 4.etasje med innglasset veranda.
Hovland - Pen 3 roms leilighet i 4.etasje med innglasset veranda, garasjesplass, og god standard. Bygget har heis.
Prisantydning1 890 000 kr
Nøkkelinfo
- Boligtype
- Leilighet
- Eieform
- Andel
- Soverom
- 2
- Internt bruksareal
- 73 m² (BRA-i)
- Bruksareal
- 90 m²
- Eksternt bruksareal
- 5 m² (BRA-e)
- Innglasset balkong
- 12 m² (BRA-b)
- Etasje
- 4
- Byggeår
- 2019
- Energimerking
- A
- Rom
- 3
- Tomteareal
- 598 m² (eiet)
Fasiliteter
Balkong/Terrasse
Barnevennlig
Bredbåndstilknytning
Garasje/P-plass
Heis
Kabel-TV
Offentlig vann/kloakk
Parkett
Rolig
Sentralt
Turterreng
Balansert ventilasjon
Visning
mandag, 02. mars
17:00 – 18:00
NB ! Husk påmelding til visning. Dersom ingen er påmeldt innen kl. 15.00 dagen før visningen skal avholdes, vil visningen bli avlyst. Ved ønske om privatvisningen ta kontakt med megler eller kontoret på mobil: 99 25 77 56 eller 33 13 85 00.
VisningspåmeldingOm boligen
Leiligheten ligger i toppetasjen, og holder gjennomgående god standard. Det er lyse og tidsriktige farger.
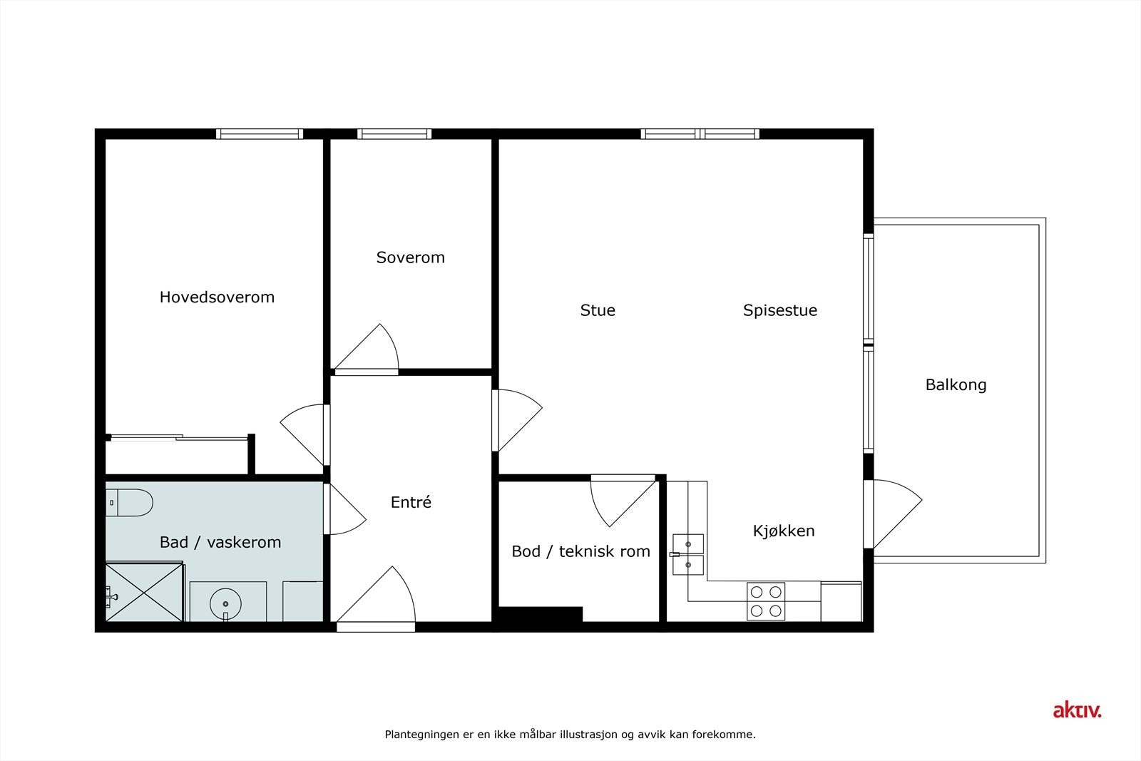
Boligen inneh: Gang/hall, bad/wc/vaskerom, 2 soverom, tekniskrom/bod, kjøkken og stue med utgang til innglasset veranda med vidt utsyn. Det medfølger sportbod ( 5 kvm ) i kjeller, samt egen parkeringsplass. På gulvene er det benyttet parkett mens det på veggene er malte gipsvegger. Bad/vaskerom har tilkomst fra entreen, og her finnes vaskeservant i innredning, speil med lysarmatur, vegghengt toalett, hengslede dusjvegger i nedsenket nisje og opplegg for vaskemaskin. Kjøkkenet er i åpne løsning med stuen og har innredning med glatte fronter og intergrete hvitevarer.
Det er IN på fellesgjeld og mulig å innfri fellesgjeld. Ved innfrielse er mnd. felleskost kr. 4.568,-.
Boligen inneh: Gang/hall, bad/wc/vaskerom, 2 soverom, tekniskrom/bod, kjøkken og stue med utgang til innglasset veranda med vidt utsyn. Det medfølger sportbod ( 5 kvm ) i kjeller, samt egen parkeringsplass. På gulvene er det benyttet parkett mens det på veggene er malte gipsvegger. Bad/vaskerom har tilkomst fra entreen, og her finnes vaskeservant i innredning, speil med lysarmatur, vegghengt toalett, hengslede dusjvegger i nedsenket nisje og opplegg for vaskemaskin. Kjøkkenet er i åpne løsning med stuen og har innredning med glatte fronter og intergrete hvitevarer.
Det er IN på fellesgjeld og mulig å innfri fellesgjeld. Ved innfrielse er mnd. felleskost kr. 4.568,-.
NB: Knappen for å vise hele beskrivelsen har kun en visuell effekt.
NB: Knappen for å vise hele beskrivelsen har kun en visuell effekt.
Salgsoppgaven beskriver vesentlig og lovpålagt informasjon om eiendommen
Se komplett salgsoppgaveNærområdet
Aktiv Larvik
Annonseinformasjon
| FINN-kode | 410242419 |
|---|---|
| Sist endret | 27. feb. 2026 13:29 |
| Referanse | 1303250072 |
Annonsene kan være mangelfulle i forhold til lovpålagt opplysningsplikt. Før bindende avtale inngås oppfordres interessenter til å innhente komplett informasjon fra meglerforetaket, selger eller utleier.








































