Bildegalleri

6.etg
Inaktiv
Storgata ved Domkirken - Fleksible kontorareal over 2 plan
Nøkkelinfo
- Areal
- 209 - 472 m²
- Etasje
- 6.
- Overtakelse
- Etter avtale
Type lokale
Kontor
Fasiliteter
Bredbåndstilknytning
Heis
Om eiendommen
Midt i Storgata har vi ledige kontorlokaler. Beliggenheten til eiendommen gjør at det er enkelt for både ansatte og besøkende å komme seg til kontoret. Det er kun 4 minutters gange til Oslo S og Jernbanetorget med alt av offentlig kommunikasjon. Stortorvet og Karl Johans gate ligger kun 190 meter bortenfor eiendommen.
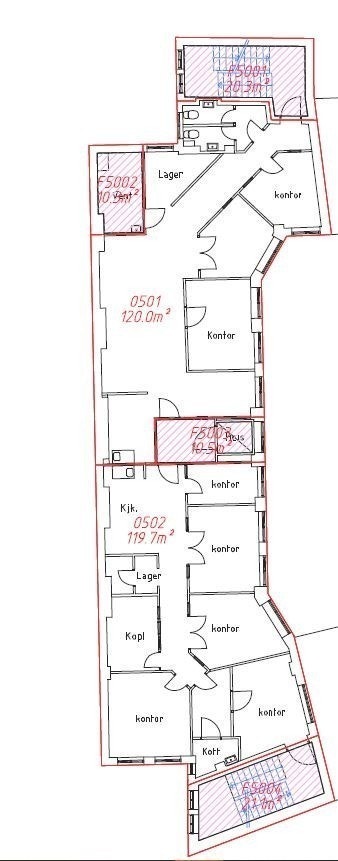
Fra arealnr 502 er det trapp opp til kontoret i 6.etg. Lokalene kan leies hver for seg eller samlet.
- Lokalet 502 er på 119,7 kvm netto og 208,9 kvm brutto.
- Lokalet 502 i 6. etasje er på 119,7 kvm netto og 263,3 kvm brutto
NB: Knappen for å vise hele beskrivelsen har kun en visuell effekt.
NB: Knappen for å vise hele beskrivelsen har kun en visuell effekt.
Visning
Ta kontakt for å avtale visning.Thon Eiendom
Vi hjelper deg å lykkes
Markus Gjessing
Nærområdet
Annonseinformasjon
| FINN-kode | 410222805 |
|---|---|
| Sist endret | 30. mai 2025 06:24 |
| Referanse | Eline Høyte Tofte |
Annonsene kan være mangelfulle i forhold til lovpålagt opplysningsplikt. Før bindende avtale inngås oppfordres interessenter til å innhente komplett informasjon fra meglerforetaket, selger eller utleier.














