Bildegalleri

EIE eiendomsmegling ved Alexander Reitan har gleden av å presentere Nedre Granåslia 3C!
Solgt
Granåslia
Moderne rekkehus med takterrasse | Familievennlig område | Byggeår 2016 | God planløsning | Parkering
Prisantydning6 700 000 kr
Nøkkelinfo
- Boligtype
- Rekkehus
- Eieform
- Eier (Selveier)
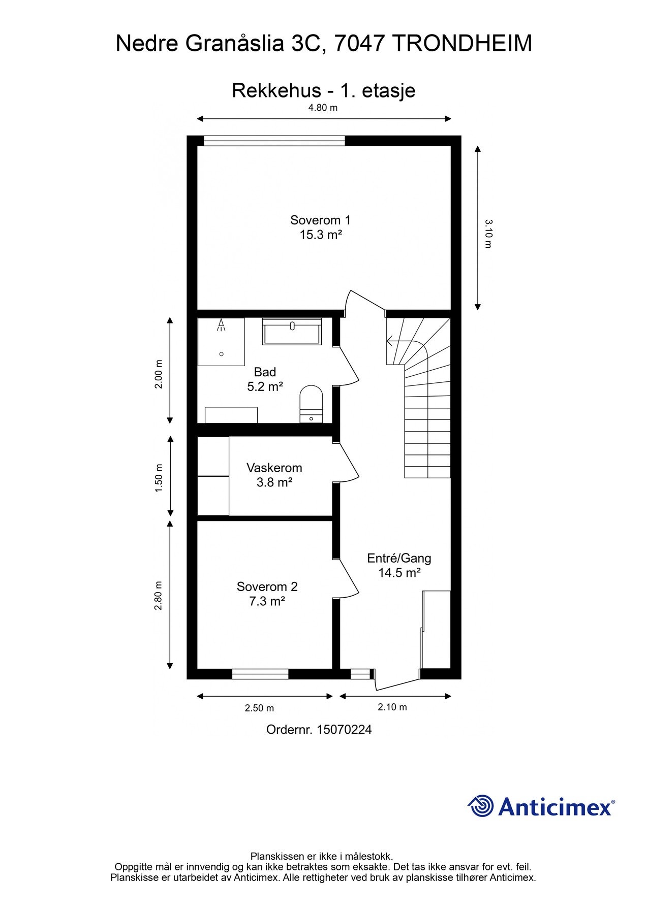
- Soverom
- 3
- Internt bruksareal
- 114 m² (BRA-i)
- Bruksareal
- 121 m²
- Eksternt bruksareal
- 7 m² (BRA-e)
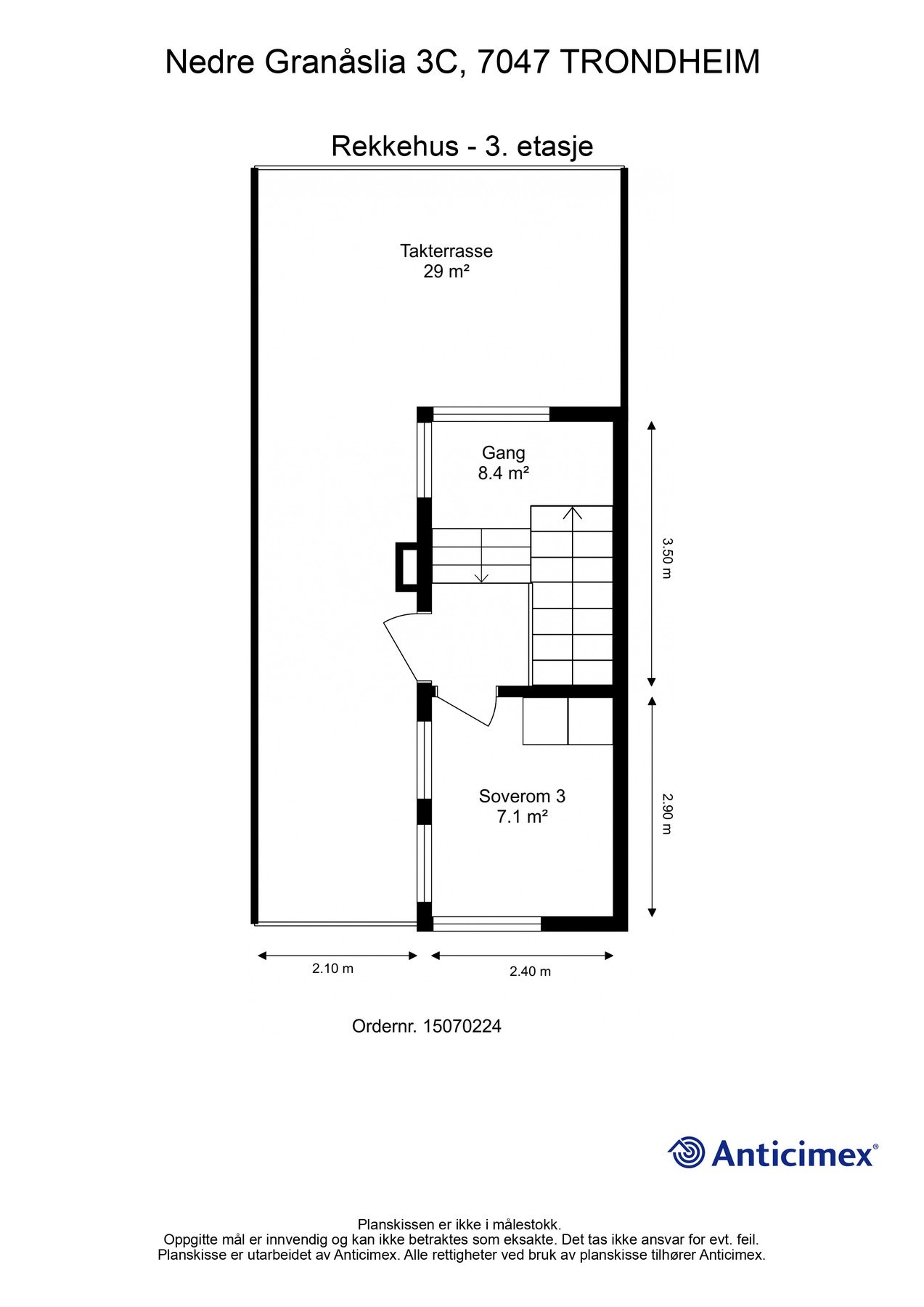
- Balkong/Terrasse
- 29 m² (TBA)
- Byggeår
- 2016
- Energimerking
- B - Mørkegrønn
- Rom
- 4
- Tomt
- Eiet
Fasiliteter
Barnevennlig
Balkong/Terrasse
Garasje/P-plass
Kabel-TV
Offentlig vann/kloakk
Parkett
Utsikt
Bredbåndstilknytning
Moderne
Rolig
Lademulighet
Balansert ventilasjon
Om boligen
EIE eiendomsmegling ved Alexander Reitan har gleden av å presentere Nedre Granåslia 3C! Et innholdsrikt rekkehus i et barnevennlig og populært område.
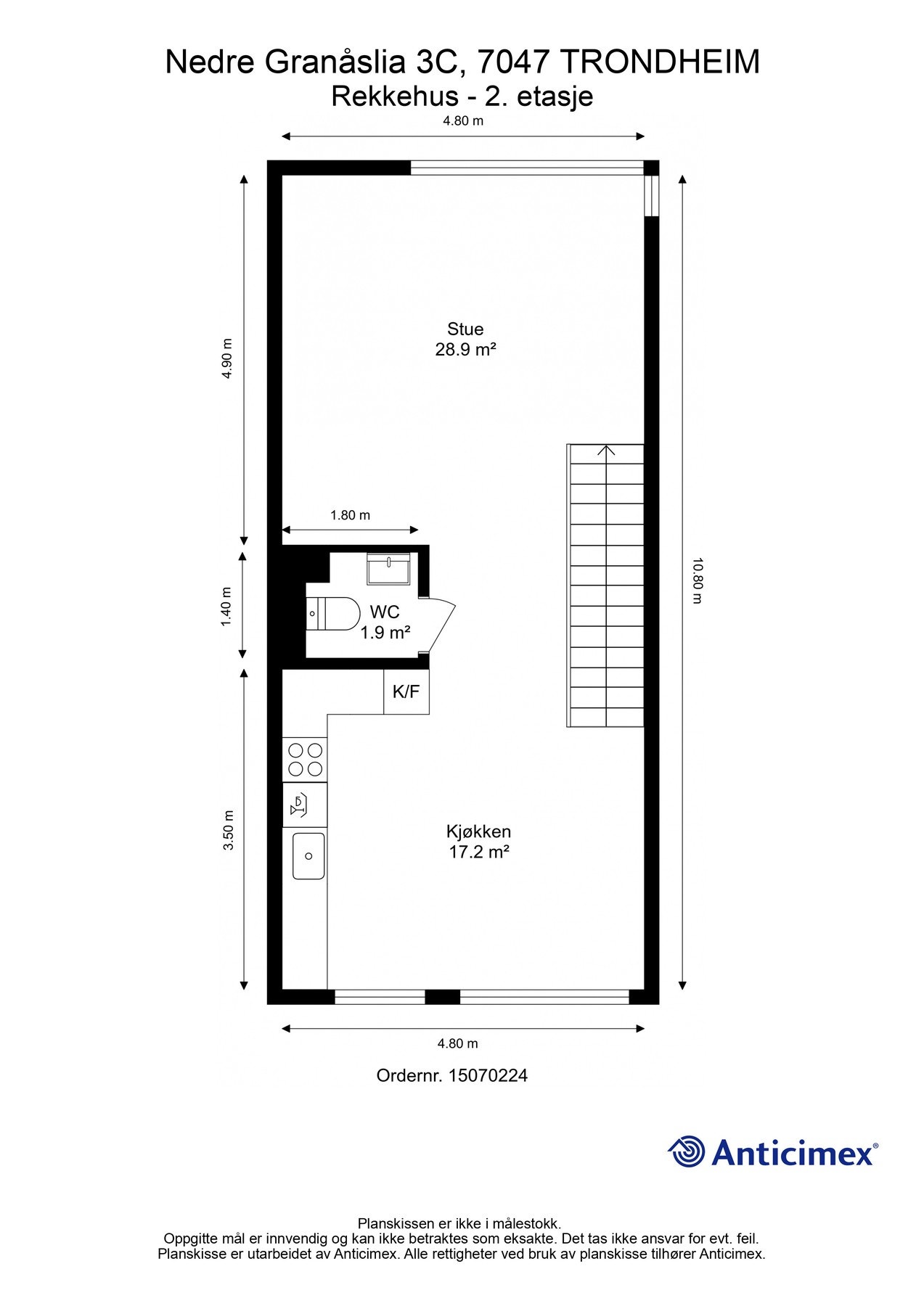
Denne boligen har en god planløsning og strekker seg over tre plan. Boligen fremstår som moderne som et resultat av tidsriktige materialvalg og godt vedlikehold. Med tre soverom, bad, toalettrom, vaskerom og en stor takterrasse byr denne boligen på mye plass og gode løsninger. Her vil du bo i et veletablert område , med flotte uteområder, lekeplasser og "alt" annet du trenger i hverdagen!
Høydepunkter:
Stor takterrase på 29 kvm
Fantastisk utsikt
God planløsning
Gjennomgående god standard
Parkering
Veletablert boligområde
Velkommen til visning!
Denne boligen har en god planløsning og strekker seg over tre plan. Boligen fremstår som moderne som et resultat av tidsriktige materialvalg og godt vedlikehold. Med tre soverom, bad, toalettrom, vaskerom og en stor takterrasse byr denne boligen på mye plass og gode løsninger. Her vil du bo i et veletablert område , med flotte uteområder, lekeplasser og "alt" annet du trenger i hverdagen!
Høydepunkter:
Stor takterrase på 29 kvm
Fantastisk utsikt
God planløsning
Gjennomgående god standard
Parkering
Veletablert boligområde
Velkommen til visning!
NB: Knappen for å vise hele beskrivelsen har kun en visuell effekt.
NB: Knappen for å vise hele beskrivelsen har kun en visuell effekt.
Salgsoppgaven beskriver vesentlig og lovpålagt informasjon om eiendommen
Se komplett salgsoppgaveNyttige lenker
Nærområdet
EIE eiendomsmegling Trondheim sentrum
Annonseinformasjon
| FINN-kode | 409955236 |
|---|---|
| Sist endret | 14. juni 2025 10:19 |
| Referanse | 33251041 |
Annonsene kan være mangelfulle i forhold til lovpålagt opplysningsplikt. Før bindende avtale inngås oppfordres interessenter til å innhente komplett informasjon fra meglerforetaket, selger eller utleier.



































