Bildegalleri

LANGENES
Sjønær enebolig med fantastisk sjøutsikt - Ingen boplikt - Stor solrik pent opparbeidet tomt - Stor garasje.
Prisantydning7 490 000 kr
Pris på lån: fra 30 315 kr/mnd
Eff.rente 5,00 %. 5 243 000 o/25 år. Kostnad: 3 851 500 kr. Totalt 9 094 500 kr.
LånekalkulatorNøkkelinfo
- Boligtype
- Enebolig
- Eieform
- Eier (Selveier)
- Soverom
- 4
- Internt bruksareal
- 170 m² (BRA-i)
- Bruksareal
- 213 m²
- Eksternt bruksareal
- 43 m² (BRA-e)
- Balkong/Terrasse
- 74 m² (TBA)
- Rom
- 5
- Tomteareal
- 1 829 m² (eiet)
Fasiliteter
Balkong/Terrasse
Barnevennlig
Bredbåndstilknytning
Garasje/P-plass
Hage
Parkett
Peis/Ildsted
Rolig
Sentralt
Utsikt
Bademulighet
Turterreng
Visning
Eiendomsmegler Norge sine visninger har påmelding. Påmelding gjøres enkelt ved å benytte knappen under. Ta kontakt med megler dersom oppsatt tidspunkt ikke passer. Det vil ikke bli avholdt visning uten påmelding, frist for påmelding er senest kl. 12.00 på visningsdagen. Husk å laste ned salgsoppgaven digitalt før visning. Velkommen til en hyggelig visning!
VisningspåmeldingOm boligen
VI HAR NÅ GLEDEN AV Å SELGE EN FLOTT EIENDOM MED FLOTT BELIGGENHET PÅ EN LITEN HØYDE I 100 METERS BELTET SENTRALT PÅ YTTERSIDEN PÅ LANGENES!
Attraktiv beliggenhet like ved sjøen. Eiendommen har nydelig utsikt og vender mot sydvest slik at det gode solforhold og flotte solnedganger. Kort vei til flotte friområder med svaberg og badeplasser. Kort båttur til Ny Hellesund og Høllen.
Boligen er påbygd og er over to plan og har følgende innhold:
1.Etg:
Gang, hall , bad/wc, vaskerom, kjøkken, spisestue, romslig vinkelstue og soverom.
2. Etg:
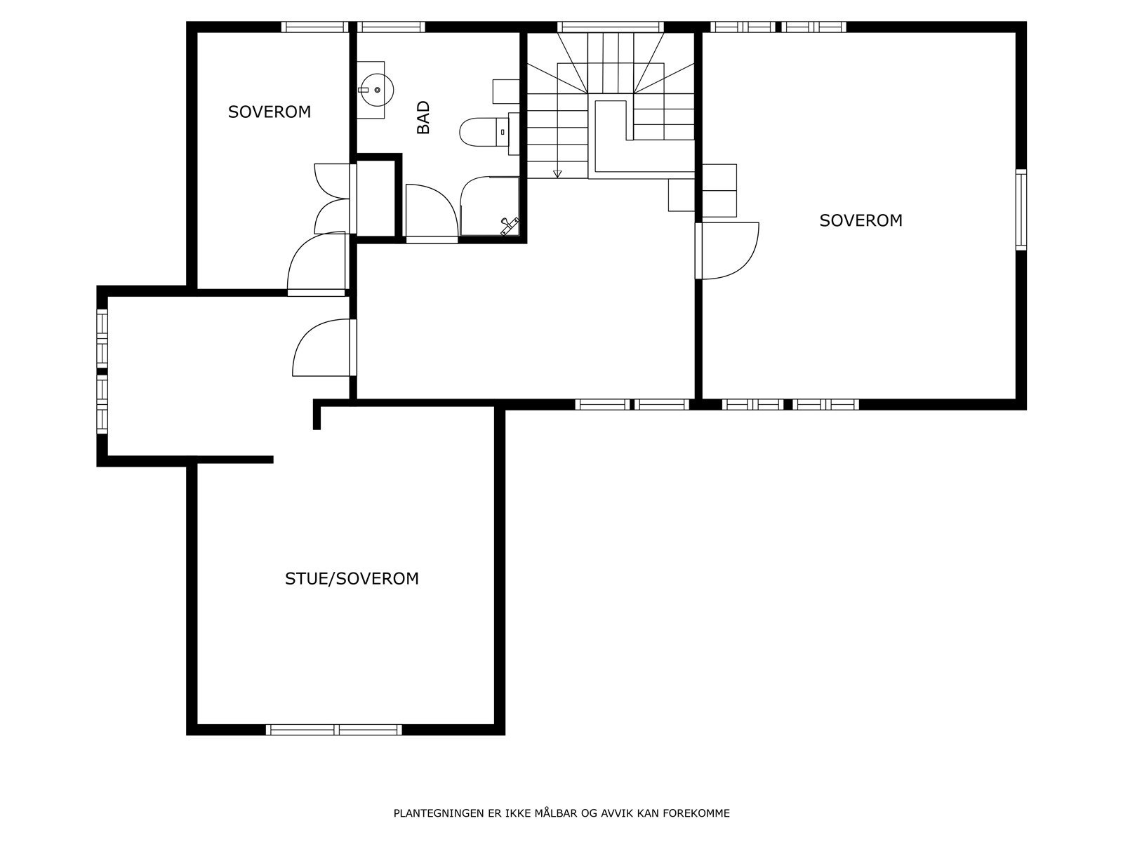
Gang, stor loftsstue (evt sov), bad/wc og to soverom.
Stor garasje med bod og innredet hems. P-plasser på tomten
Solrik tomt med nydelig utsikt, hagestue, terrasse, plen og blomster
Her er det ikke boplikt og eiendommen passer også fint som landsted.
Attraktiv beliggenhet like ved sjøen. Eiendommen har nydelig utsikt og vender mot sydvest slik at det gode solforhold og flotte solnedganger. Kort vei til flotte friområder med svaberg og badeplasser. Kort båttur til Ny Hellesund og Høllen.
Boligen er påbygd og er over to plan og har følgende innhold:
1.Etg:
Gang, hall , bad/wc, vaskerom, kjøkken, spisestue, romslig vinkelstue og soverom.
2. Etg:
Gang, stor loftsstue (evt sov), bad/wc og to soverom.
Stor garasje med bod og innredet hems. P-plasser på tomten
Solrik tomt med nydelig utsikt, hagestue, terrasse, plen og blomster
Her er det ikke boplikt og eiendommen passer også fint som landsted.
NB: Knappen for å vise hele beskrivelsen har kun en visuell effekt.
NB: Knappen for å vise hele beskrivelsen har kun en visuell effekt.
Salgsoppgaven beskriver vesentlig og lovpålagt informasjon om eiendommen
Se komplett salgsoppgaveNyttige lenker
Nærområdet
Eiendomsmegler Norge Kristiansand
Det viktigste stedet i Norge er der du bor
Annonseinformasjon
| FINN-kode | 409928734 |
|---|---|
| Sist endret | 04. des. 2025 11:48 |
| Referanse | 50250118 |
Annonsene kan være mangelfulle i forhold til lovpålagt opplysningsplikt. Før bindende avtale inngås oppfordres interessenter til å innhente komplett informasjon fra meglerforetaket, selger eller utleier.



























































