Bildegalleri

Anders Øium v/Eiendomsmegler 1 presenterer Nyseterjordet 3!
Solgt
Dahle
Pen og innholdsrik enebolig med fin beliggenhet på Dahle | 3 (5) soverom, tidløst kjøkken & oppgradert bad | Garasje
Prisantydning2 600 000 kr
Nøkkelinfo
- Boligtype
- Enebolig
- Eieform
- Eier (Selveier)
- Soverom
- 3
- Internt bruksareal
- 190 m² (BRA-i)
- Bruksareal
- 220 m²
- Eksternt bruksareal
- 30 m² (BRA-e)
- Balkong/Terrasse
- 27 m² (TBA)
- Etasje
- 2
- Byggeår
- 1984
- Rom
- 4
- Tomteareal
- 849 m² (eiet)
Fasiliteter
Aircondition
Balkong/Terrasse
Barnevennlig
Garasje/P-plass
Hage
Kjæledyr tillatt
Offentlig vann/kloakk
Peis/Ildsted
Rolig
Utsikt
Turterreng
Om boligen
EiendomsMegler1 Lillehammer og Gudbrandsdal presenterer Nyseterjordet 3!
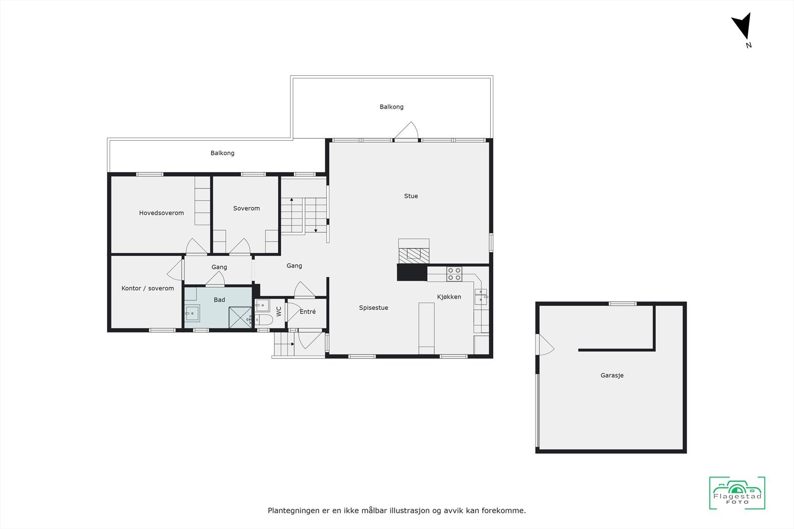
Her får man en svært hyggelig, velholdt og oppgradert enebolig med god beliggenhet på Dahle. Planløsningen går over to plan og inneholder bl.a. hovedetasje med entré og gang, en lys stue med skråhimling og utgang til terrasse, et praktisk og tidløst kjøkken, 3 soverom, et nyere bad fra 2020 samt separat wc-rom. Boligen har vedovn og varmepumpe. Underetg. har både innvendig og utvendig adkomst og byr på et lyst og praktisk vaskerom, to rom innredet som kjellerstue og soverom, samt godt med bod-/lagringsplass. Det er parkering i garasje m/tilhørende bod. Det er flott utsikt mot området omkring og gode solforhold. Holdeplass for skolebuss rett utenfor.
Velkommen til visning!
Her får man en svært hyggelig, velholdt og oppgradert enebolig med god beliggenhet på Dahle. Planløsningen går over to plan og inneholder bl.a. hovedetasje med entré og gang, en lys stue med skråhimling og utgang til terrasse, et praktisk og tidløst kjøkken, 3 soverom, et nyere bad fra 2020 samt separat wc-rom. Boligen har vedovn og varmepumpe. Underetg. har både innvendig og utvendig adkomst og byr på et lyst og praktisk vaskerom, to rom innredet som kjellerstue og soverom, samt godt med bod-/lagringsplass. Det er parkering i garasje m/tilhørende bod. Det er flott utsikt mot området omkring og gode solforhold. Holdeplass for skolebuss rett utenfor.
Velkommen til visning!
NB: Knappen for å vise hele beskrivelsen har kun en visuell effekt.
NB: Knappen for å vise hele beskrivelsen har kun en visuell effekt.
Salgsoppgaven beskriver vesentlig og lovpålagt informasjon om eiendommen
Se komplett salgsoppgaveNyttige lenker
Nærområdet
EiendomsMegler 1 Lillehammer og Gudbrandsdal - avd Gudbrandsdal
Vi loser deg trygt gjennom hele boligsalget
Prisstatistikk
Nyseterjordet 3
3 729 klikk
på annonsen
13 684 kr
prisantydning per kvadratmeter
Prisfordeling
Pris per m² ligger 684 kr over snittet for eneboliger i Sel.
Grafen viser antall eneboliger solgt i Sel siste året fordelt på pris per m² - totalt 19 eneboliger
Antall boliger
Kvadratmeterpris tilsvarer prisantydning pluss fellesgjeld per kvadratmeter (p-rom eller BRA-i). Prisene i grafen er avrundet til nærmeste 1000 kr.
Annonseinformasjon
| FINN-kode | 409799788 |
|---|---|
| Sist endret | 26. aug. 2025 11:32 |
| Referanse | 1312250056 |
Annonsene kan være mangelfulle i forhold til lovpålagt opplysningsplikt. Før bindende avtale inngås oppfordres interessenter til å innhente komplett informasjon fra meglerforetaket, selger eller utleier.











































