Bildegalleri

Langgårdsveien 12 presenteres av Kenneth Graarud Olsen i Krogsveen.
Solgt
Slevik
Herskapelig og unik eiendom, betydelig påkostet både ute og inne. Stor hage med havestue. Gjestefløy. Dobbelgarasje.
Prisantydning9 990 000 kr
Nøkkelinfo
- Boligtype
- Enebolig
- Eieform
- Eier (Selveier)
- Soverom
- 4
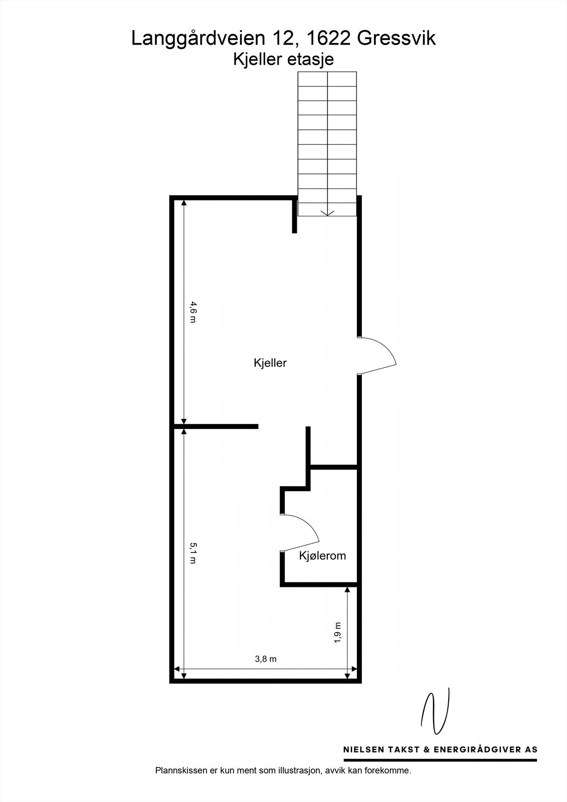
- Internt bruksareal
- 271 m² (BRA-i)
- Bruksareal
- 386 m²
- Eksternt bruksareal
- 115 m² (BRA-e)
- Balkong/Terrasse
- 136 m² (TBA)
- Etasje
- 2
- Byggeår
- 1990
- Energimerking
- D - Gul
- Rom
- 7
- Tomteareal
- 3 181 m² (eiet)
Fasiliteter
Balkong/Terrasse
Barnevennlig
Bredbåndstilknytning
Garasje/P-plass
Hage
Kjæledyr tillatt
Ingen gjenboere
Kabel-TV
Offentlig vann/kloakk
Parkett
Peis/Ildsted
Rolig
Utsikt
Bademulighet
Turterreng
Om boligen
Eksklusiv, tilbaketrukket eiendom med herskapelig atmosfære
- Fredelige og familievennlige omgivelser på attraktive Slevik
- Imponerende terrasse på ca. 120 kvm fra 2022, med massasjebad og isolert havestue med varmekabler
- Flere uteplasser gir optimale solforhold fra morgen til kveld
- Storslått enebolig med generøse rom og egen gjestefløy
- Innvendig gjennomgående oppgradert fra 2018 og fremover
- Vesentlig påkostet hage og uteområder
- Lekkert kjøkken fra 2018 med integrerte hvitevarer
- Elegant hovedbad, bygget opp på nytt i 2018
- Kort vei til båthavn og sandstrender
- Dobbelgarasje fra 2011 med loft innredet til stue (ikke godkjent)
- Praktisk frittstående bod til redskaper og sykler
- Gangavstand til barnehage og skole
NB: Knappen for å vise hele beskrivelsen har kun en visuell effekt.
NB: Knappen for å vise hele beskrivelsen har kun en visuell effekt.
Salgsoppgaven beskriver vesentlig og lovpålagt informasjon om eiendommen
Se komplett salgsoppgaveNyttige lenker
Nærområdet
Krogsveen Fredrikstad og Sarpsborg
Verdien av en god megler.
Annonseinformasjon
| FINN-kode | 409118608 |
|---|---|
| Sist endret | 16. feb. 2026 07:52 |
| Referanse | KR67.25135 |
Annonsene kan være mangelfulle i forhold til lovpålagt opplysningsplikt. Før bindende avtale inngås oppfordres interessenter til å innhente komplett informasjon fra meglerforetaket, selger eller utleier.























































