Bildegalleri

Velkommen til Harry Sønsterøds vei 20, presentert av Pojan Eskandari i Krogsveen! Foto: Trond Reder
Heggedal Terrasse
Rålekker og moderne enderekkehus fra 2023. 2 garasjeplasser, én m/lader. Takterrasse på 40 kvm. Nær skole og barnehager.
Prisantydning7 400 000 kr
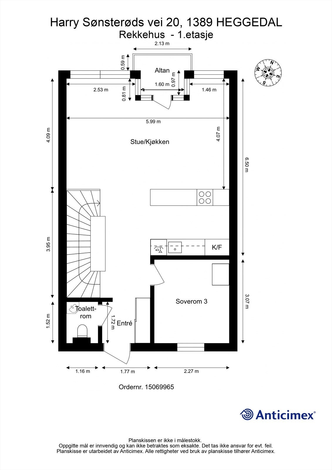
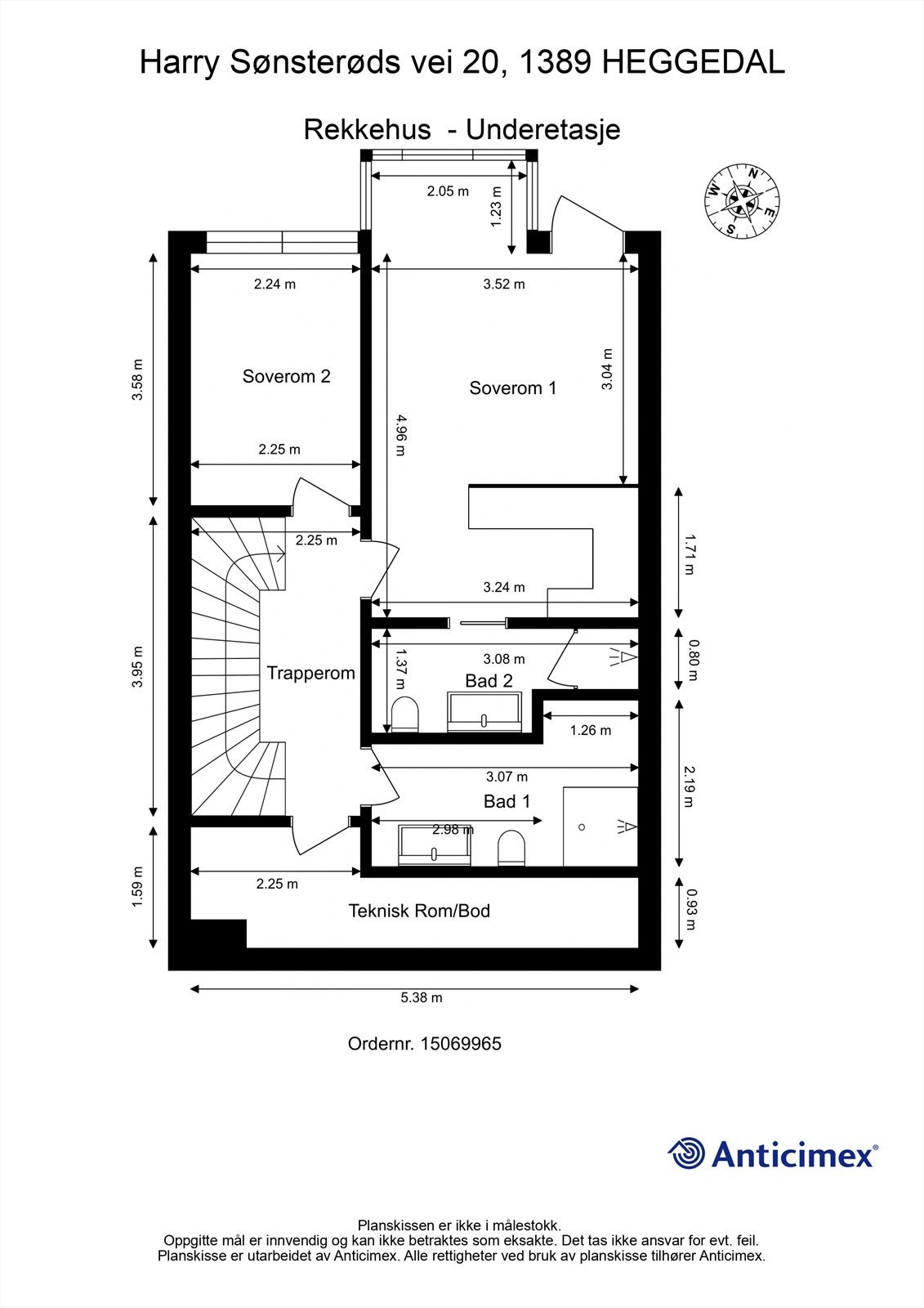
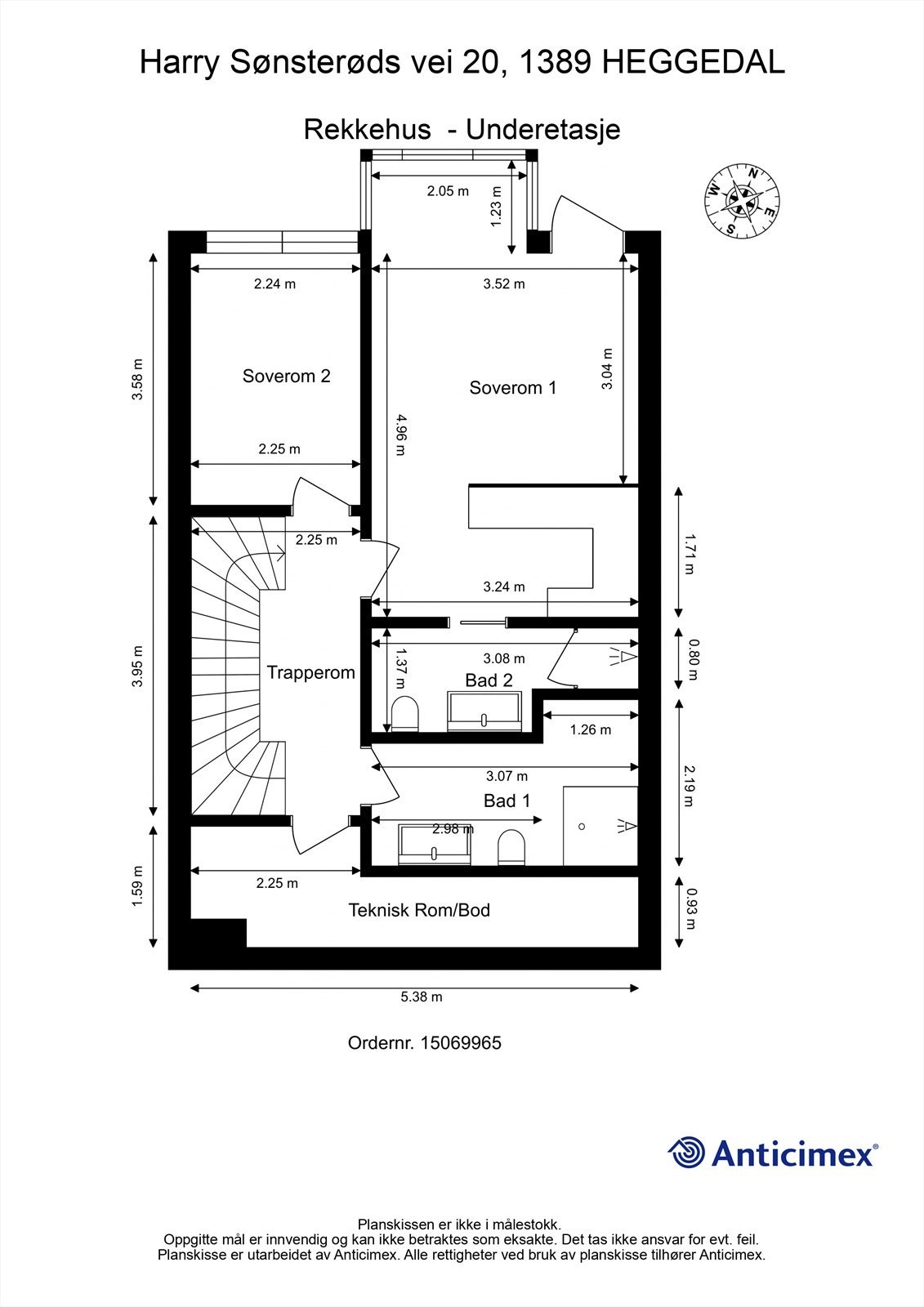
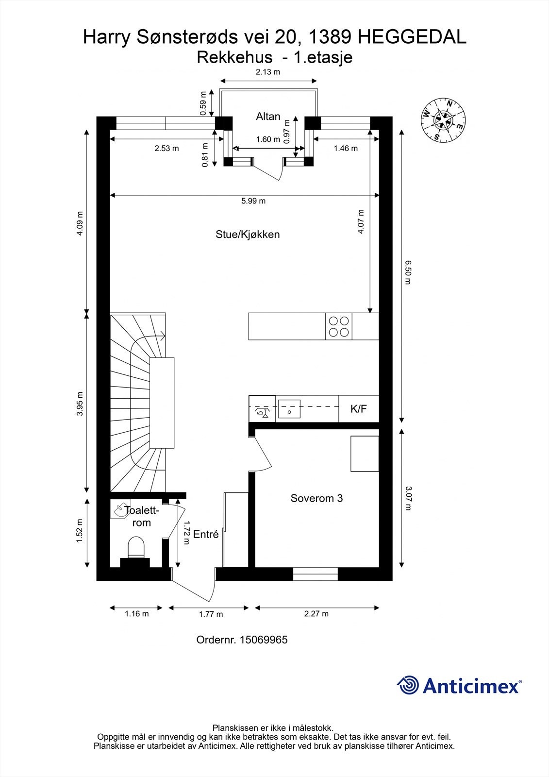
Nøkkelinfo
- Boligtype
- Rekkehus
- Eieform
- Eier (Selveier)
- Soverom
- 3
- Internt bruksareal
- 112 m² (BRA-i)
- Bruksareal
- 112 m²
- Balkong/Terrasse
- 19 m² (TBA)
- Etasje
- 2
- Byggeår
- 2023
- Energimerking
- B - Rød
- Rom
- 4
- Tomteareal
- 27 365 m² (eiet)
Fasiliteter
Takterrasse
Balkong/Terrasse
Barnevennlig
Garasje/P-plass
Hage
Kjæledyr tillatt
Ingen gjenboere
Kabel-TV
Parkett
Rolig
Sentralt
Utsikt
Turterreng
Lademulighet
Balansert ventilasjon
Visning
For å delta på visning, ber vi om at du melder deg på. Da sikrer vi at du får nødvendig informasjon og at det er satt av tilstrekkelig med tid. Kontakt megler dersom annet tidspunkt ønskes. Husk å lese salgsoppgaven før visningen, så du stiller forberedt. NB. Visning utgår dersom det ikke er noen påmeldte.
Ønsker du kun å bli holdt orientert, kan du fra eiendommens hjemmeside få varsel om solgtpris, eller kontakte megler.
VisningspåmeldingOm boligen
Velkommen til Harry Sønsterøds Vei 20, presentert av Pojan Eskandari i Krogsveen.
Her får du et moderne og gjennomført enderekkehus fra 2023 med stilren utforming, høy standard og attraktive tilvalg. Boligen har en koselig og solrik takterrasse med flott utsikt, hage, og svært gode solforhold. To garasjeplasser, hvorav én med lader, følger med. Boligen ligger i et rolig og barnevennlig område. Her bor du i et nytt og trivelig område med nærhet til skole, barnehage og fine turområder.
Kort fortalt:
Her får du et moderne og gjennomført enderekkehus fra 2023 med stilren utforming, høy standard og attraktive tilvalg. Boligen har en koselig og solrik takterrasse med flott utsikt, hage, og svært gode solforhold. To garasjeplasser, hvorav én med lader, følger med. Boligen ligger i et rolig og barnevennlig område. Her bor du i et nytt og trivelig område med nærhet til skole, barnehage og fine turområder.
Kort fortalt:
- Attraktivt og moderne rekkehus fra 2023
- Svært god planløsning med naturlig sonedeling
- Solrik takterrasse på 40 kvm
- Tre gode soverom
- Nærhet til skole, barnehage og turområder
- Hage
- To garasjeplasser, en m/lader
- Rolig og barnevennlig nabolag
NB: Knappen for å vise hele beskrivelsen har kun en visuell effekt.
NB: Knappen for å vise hele beskrivelsen har kun en visuell effekt.
Salgsoppgaven beskriver vesentlig og lovpålagt informasjon om eiendommen
Se komplett salgsoppgaveNyttige lenker
Nærområdet
Krogsveen Asker
Verdien av en god megler.
Annonseinformasjon
| FINN-kode | 409084115 |
|---|---|
| Sist endret | 03. mars 2026 08:56 |
| Referanse | KR15.2531 |
Annonsene kan være mangelfulle i forhold til lovpålagt opplysningsplikt. Før bindende avtale inngås oppfordres interessenter til å innhente komplett informasjon fra meglerforetaket, selger eller utleier.

























































