Bildegalleri

Stor hage og gode solforhold.
HOLMEN/MAKRELLBEKKEN
Moderne og lekker enebolig fra 2016, solrik terrasse, stor hage, 4 sov, dobbelgarasje m/ el-lader, hybel, barnevennlig.
Prisantydning18 900 000 kr
Nøkkelinfo
- Boligtype
- Enebolig
- Eieform
- Eier (Selveier)
- Soverom
- 4
- Internt bruksareal
- 251 m² (BRA-i)
- Bruksareal
- 251 m²
- Balkong/Terrasse
- 28 m² (TBA)
- Byggeår
- 2016
- Energimerking
- Rom
- 7
- Tomteareal
- 1 539 m² (eiet)
Fasiliteter
Balkong/Terrasse
Barnevennlig
Garasje/P-plass
Hage
Kjæledyr tillatt
Kabel-TV
Offentlig vann/kloakk
Parkett
Peis/Ildsted
Rolig
Sentralt
Utsikt
Turterreng
Lademulighet
Balansert ventilasjon
Visning
søndag, 22. mars
12:00 – 12:45
Ta kontakt med megler for privatvisning.
Annonserte visninger har obligatorisk påmelding. Dersom det ikke er påmeldt noen til visning senest 2 timer før, så blir visningen avlyst.
Kravet om påmelding har vi for å kunne gi deg og andre visningsdeltakere en best mulig opplevelse og service knyttet til gjennomføring av visningen. Velkommen!
VisningspåmeldingOm boligen
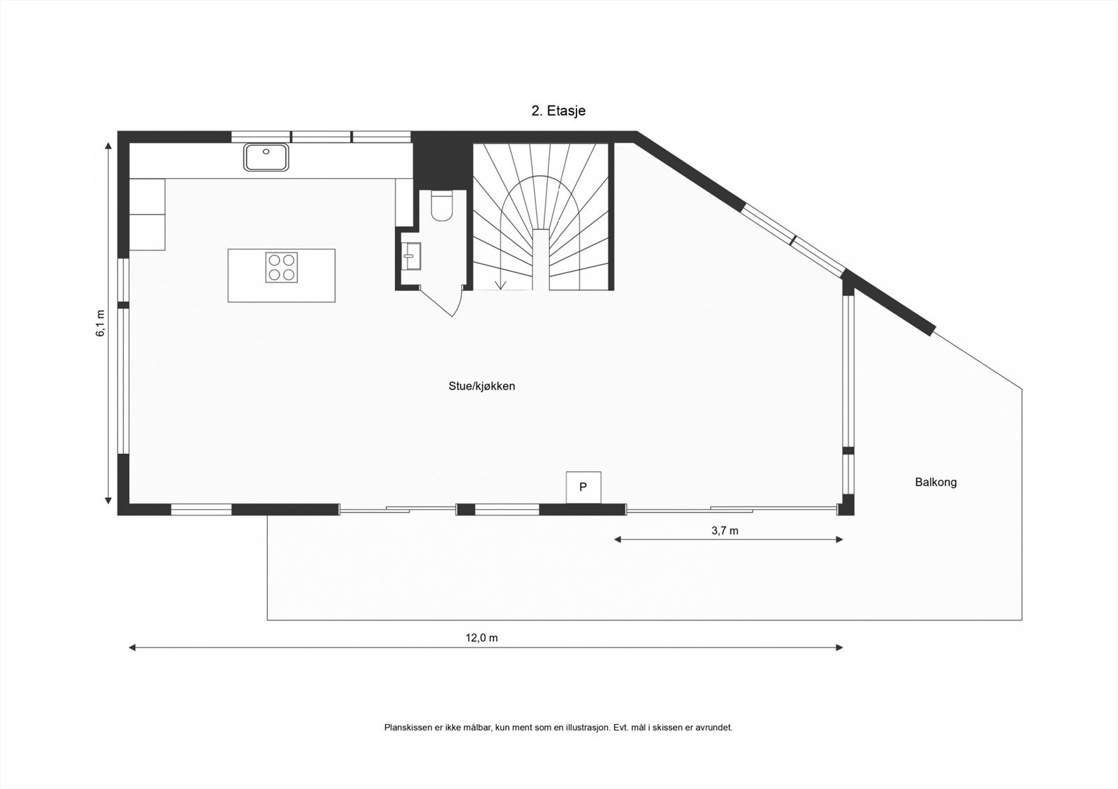
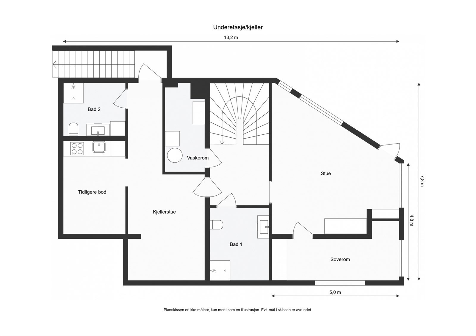
Moderne enebolig fra 2016, fordelt over 3 etasjer med et bruksareal på totalt 251 m².
Svært innholdsrik enebolig med 4 soverom, stue, kjøkken, tv-stue, 3 bad, 2 separate toalett, vaskerom og hybel.
Stor solrik terrasse på 28 kvm. med adkomst fra stue/kjøkken gjennom to store skyvedører, her er det flott utsikt og sol fra soloppgang til ca. kl. 21:00. Boligen har ekstra god takhøyde i stuen (opp til 310 cm), noe som gir en luftig romfølelse, samt store vindusflater. Kjøkkenet er stilfullt innredet med løsninger fra JKE Design. Peis og balansert ventilasjon som sikrer et godt inneklima hele året. Dobbel garasje med elbil lader og lagringsplass. En moderne bolig med barnevennlig beliggenhet skjermet fra trafikk. Umiddelbar nærhet til gode servicetilbud på Makrellbekken.
Svært innholdsrik enebolig med 4 soverom, stue, kjøkken, tv-stue, 3 bad, 2 separate toalett, vaskerom og hybel.
Stor solrik terrasse på 28 kvm. med adkomst fra stue/kjøkken gjennom to store skyvedører, her er det flott utsikt og sol fra soloppgang til ca. kl. 21:00. Boligen har ekstra god takhøyde i stuen (opp til 310 cm), noe som gir en luftig romfølelse, samt store vindusflater. Kjøkkenet er stilfullt innredet med løsninger fra JKE Design. Peis og balansert ventilasjon som sikrer et godt inneklima hele året. Dobbel garasje med elbil lader og lagringsplass. En moderne bolig med barnevennlig beliggenhet skjermet fra trafikk. Umiddelbar nærhet til gode servicetilbud på Makrellbekken.
NB: Knappen for å vise hele beskrivelsen har kun en visuell effekt.
NB: Knappen for å vise hele beskrivelsen har kun en visuell effekt.
Salgsoppgaven beskriver vesentlig og lovpålagt informasjon om eiendommen
Se komplett salgsoppgaveNærområdet
Sem & Johnsen
Boliger utenom det vanlige
Annonseinformasjon
| FINN-kode | 409080297 |
|---|---|
| Sist endret | 17. mars 2026 17:22 |
| Referanse | 20-25-0692 |
Annonsene kan være mangelfulle i forhold til lovpålagt opplysningsplikt. Før bindende avtale inngås oppfordres interessenter til å innhente komplett informasjon fra meglerforetaket, selger eller utleier.














































