Bildegalleri

Velkommen til Sondrevegen 2 C! Presentert v/ Therese Ekeli Berg i Krogsveen
Solgt
Ullern
Usjenert og flott terrasseleilighet. Stor terrasse og fantastisk utsikt. Oppussingsobjekt med stort potensial. Garasje.
Prisantydning10 500 000 kr
Nøkkelinfo
- Boligtype
- Leilighet
- Eieform
- Eier (Selveier)
- Soverom
- 2
- Internt bruksareal
- 137 m² (BRA-i)
- Bruksareal
- 148 m²
- Eksternt bruksareal
- 11 m² (BRA-e)
- Balkong/Terrasse
- 26 m² (TBA)
- Etasje
- 3
- Byggeår
- 1971
- Energimerking
- E - Rød
- Rom
- 3
- Tomteareal
- 5 645 m² (festet)
- Festeavgift
- 129 000 kr
Fasiliteter
Balkong/Terrasse
Barnevennlig
Bredbåndstilknytning
Garasje/P-plass
Kjæledyr tillatt
Kabel-TV
Offentlig vann/kloakk
Parkett
Peis/Ildsted
Rolig
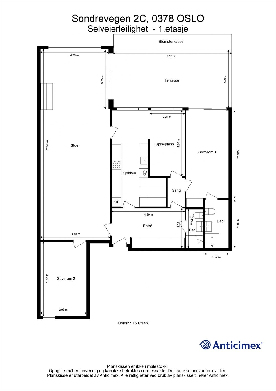
Om boligen
Velkommen til Sondrevegen 2 C!
Her kan du skape ditt eget drømmehjem. Terrasseleiligheten har kanskje en av de fineste beliggenhetene i sameiet med en helt fantastisk utsikt mot fjorden. Det er behov modernisering da leiligheten ikke er pusset opp på mange år.
Gjennomgående planløsning. Store vinduer gir leiligheten godt med lys.
- Peis i stuen
- Garasjeplass
- To store skyvedører ut til terrassen
- Terrasse på hele 26 kvm med fantastisk utsikt
- Godt med lagringsplass. To eksterne boder
- Leiligheten ligger plassert med inngang rett inn fra inngangsparti. Kun et trappetrinn opp.
Her kan du skape ditt eget drømmehjem. Terrasseleiligheten har kanskje en av de fineste beliggenhetene i sameiet med en helt fantastisk utsikt mot fjorden. Det er behov modernisering da leiligheten ikke er pusset opp på mange år.
Gjennomgående planløsning. Store vinduer gir leiligheten godt med lys.
- Peis i stuen
- Garasjeplass
- To store skyvedører ut til terrassen
- Terrasse på hele 26 kvm med fantastisk utsikt
- Godt med lagringsplass. To eksterne boder
- Leiligheten ligger plassert med inngang rett inn fra inngangsparti. Kun et trappetrinn opp.
NB: Knappen for å vise hele beskrivelsen har kun en visuell effekt.
NB: Knappen for å vise hele beskrivelsen har kun en visuell effekt.
Salgsoppgaven beskriver vesentlig og lovpålagt informasjon om eiendommen
Se komplett salgsoppgaveNyttige lenker
Nærområdet
Krogsveen Majorstuen og Oslo Vest
Verdien av en god megler.
Annonseinformasjon
| FINN-kode | 408629988 |
|---|---|
| Sist endret | 31. mai 2025 11:39 |
| Referanse | KR40.25113 |
Annonsene kan være mangelfulle i forhold til lovpålagt opplysningsplikt. Før bindende avtale inngås oppfordres interessenter til å innhente komplett informasjon fra meglerforetaket, selger eller utleier.


































