Bildegalleri

Velkommen til Krokvegen 31B - presentert av Espen Richardsen og Hjem Eiendomsmegling!
Tromsdalen
Innbydende og praktisk enebolig med flere terrasser beliggende sentralt i Tromsdalen | garasje m/badstue | byggeår 2012
Prisantydning7 290 000 kr
Nøkkelinfo
- Boligtype
- Enebolig
- Eieform
- Eier (Selveier)
- Soverom
- 3
- Internt bruksareal
- 136 m² (BRA-i)
- Bruksareal
- 158 m²
- Eksternt bruksareal
- 22 m² (BRA-e)
- Balkong/Terrasse
- 68 m² (TBA)
- Byggeår
- 2012
- Energimerking
- C
- Rom
- 5
- Tomteareal
- 502 m² (eiet)
Fasiliteter
Balkong/Terrasse
Barnevennlig
Bredbåndstilknytning
Garasje/P-plass
Hage
Offentlig vann/kloakk
Peis/Ildsted
Rolig
Sentralt
Utsikt
Turterreng
Balansert ventilasjon
Visning
mandag, 02. mars
17:00 – 17:45
Vi ønsker visninger med høyest mulig servicegrad og forutsigbarhet. Derfor har vi alltid påmelding til visning. Meld deg på visning via lenken Visningspåmelding eller kontakt meg på tlf. eller e-post for å avtale tidspunkt. Visninger uten påmeldte deltagere vil bli avlyst.
VisningspåmeldingOm boligen
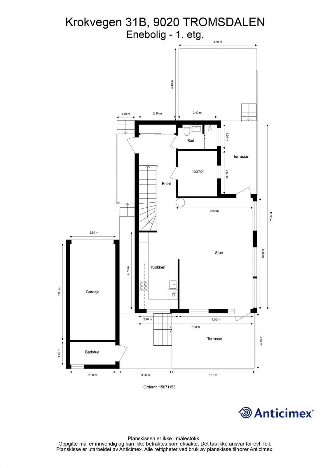
Velkommen til Krokvegen 31B, en flott enebolig bygget i 2012 med god beliggenhet sentralt i barnevennlige Tromsdalen.
Boligen har praktisk planløsning med inngang fra bakkeplan hvor man også har garasje, parkering og markterrasse. I dette planet (øverste etasje) finner man entré med flislagt gulv og varmekabler, bad, kontor (benyttet til soverom), stue og kjøkken. Utgang til terrasse både mot øst og vest med gode solforhold. Romslig kjøkken med integrerte hvitevarer, ildsted i stue og downlights. I underetasjen finner man 3 soverom, gang, flislagt bad med gulvvarme, vaskerom og bod. Boligen har mye vindusflater som slipper inn mye naturlig lys.
Krokvegen 31B ligger plassert i Krokvegen, sentralt i Tromsdalen hvor man har nærhet til skoler, barnehager, butikk og flotte turområder!
Boligen har praktisk planløsning med inngang fra bakkeplan hvor man også har garasje, parkering og markterrasse. I dette planet (øverste etasje) finner man entré med flislagt gulv og varmekabler, bad, kontor (benyttet til soverom), stue og kjøkken. Utgang til terrasse både mot øst og vest med gode solforhold. Romslig kjøkken med integrerte hvitevarer, ildsted i stue og downlights. I underetasjen finner man 3 soverom, gang, flislagt bad med gulvvarme, vaskerom og bod. Boligen har mye vindusflater som slipper inn mye naturlig lys.
Krokvegen 31B ligger plassert i Krokvegen, sentralt i Tromsdalen hvor man har nærhet til skoler, barnehager, butikk og flotte turområder!
NB: Knappen for å vise hele beskrivelsen har kun en visuell effekt.
NB: Knappen for å vise hele beskrivelsen har kun en visuell effekt.
Salgsoppgaven beskriver vesentlig og lovpålagt informasjon om eiendommen
Se komplett salgsoppgaveNærområdet
Hjem Eiendomsmegling
Annonseinformasjon
| FINN-kode | 408521229 |
|---|---|
| Sist endret | 23. feb. 2026 15:18 |
| Referanse | 1-0112/25 |
Annonsene kan være mangelfulle i forhold til lovpålagt opplysningsplikt. Før bindende avtale inngås oppfordres interessenter til å innhente komplett informasjon fra meglerforetaket, selger eller utleier.


















































