Bildegalleri

Velkommen inn i en unik leilighet i Totengata 1, beliggende i et sjarmerende trehus fra 1904.
Inaktiv
VÅLERENGA
Unik leilighet over 2 plan i sjarmerende trehus - Hyggelig felles forhage med eget inngangsparti - Parkering
Prisantydning4 650 000 kr
Nøkkelinfo
- Boligtype
- Leilighet
- Eieform
- Eier (Selveier)
- Soverom
- 0
- Internt bruksareal
- 64 m² (BRA-i)
- Bruksareal
- 68 m²
- Eksternt bruksareal
- 4 m² (BRA-e)
- Etasje
- 2
- Byggeår
- 1890
- Rom
- 3
- Tomteareal
- 176 m² (eiet)
Fasiliteter
Barnevennlig
Bredbåndstilknytning
Garasje/P-plass
Hage
Kjæledyr tillatt
Kabel-TV
Offentlig vann/kloakk
Peis/Ildsted
Rolig
Sentralt
Om boligen
Velkommen inn i Totengata 1!
Her bor du i rolige og idylliske omgivelser på Vålerenga med gåavstand til sentrum, og med bussholdeplass like utenfor døren med flere linjer både inn og ut av sentrumskjernen. I tillegg er det kort vei til t-bane på Ensjø, samt trikk og tog i gangavstand.
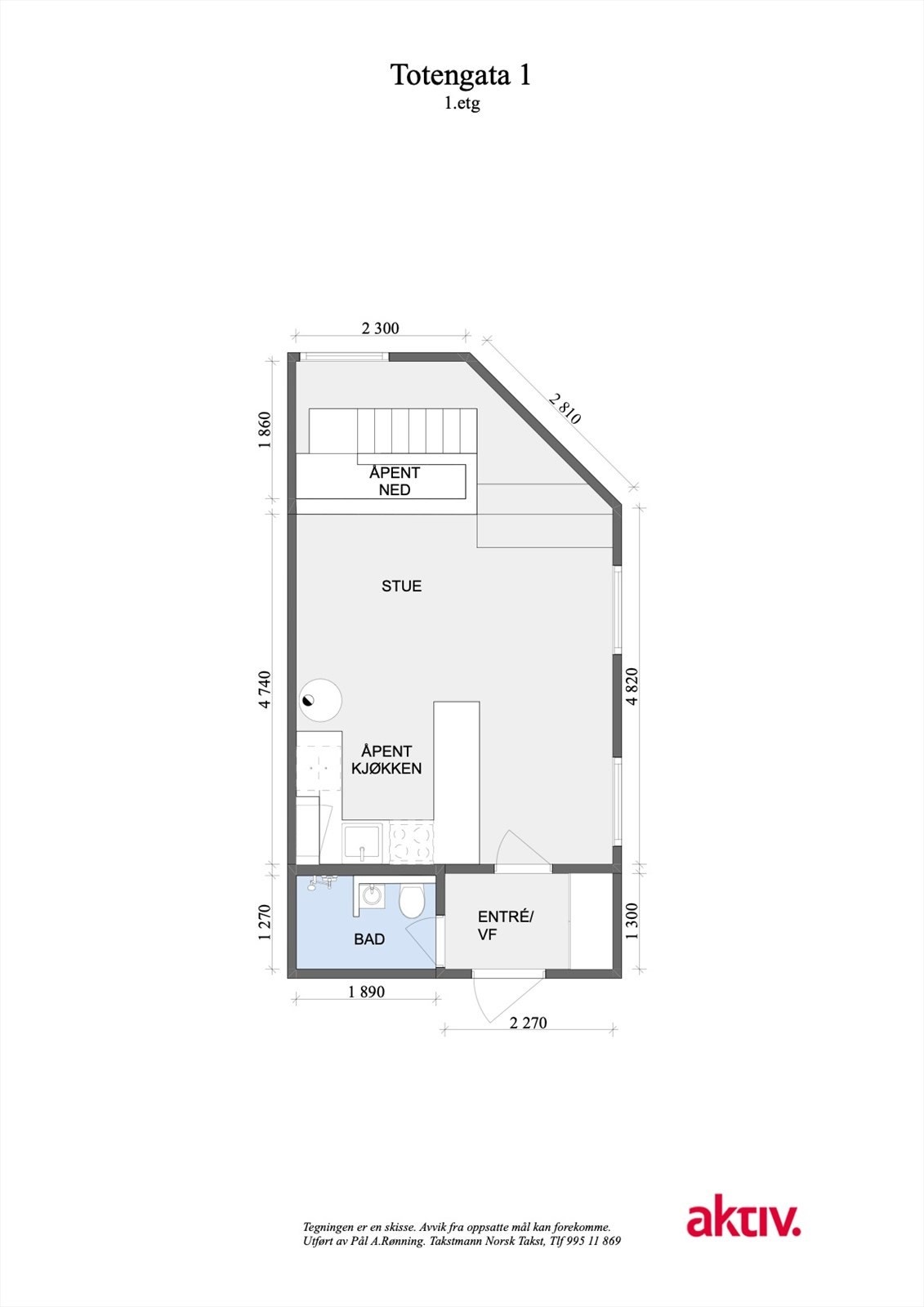
Leiligheten ligger i et sjarmerende trehus fra 1904 og kan bl.a. by på:
- En innholdsrik planløsning over to etasjer m/ innbydende standard
- Rikelig med lysinnslipp fra store vindusflater på hovedplan
- Plassbygget kjøkkeninnredning av heltre og marmor benkeplate fra 2012
- Bad oppusset i 2012, og varmtvannsbereder fra 2022
- Peisovn
- To rom i underetg., innredet som kjellerstue og soverom
- Utebod på ca. 4,2 m2
- Parkeringsplass (deler med seksjon 2)
- Hyggelig felles forhage m/ eget inngangsparti
Her bor du i rolige og idylliske omgivelser på Vålerenga med gåavstand til sentrum, og med bussholdeplass like utenfor døren med flere linjer både inn og ut av sentrumskjernen. I tillegg er det kort vei til t-bane på Ensjø, samt trikk og tog i gangavstand.
Leiligheten ligger i et sjarmerende trehus fra 1904 og kan bl.a. by på:
- En innholdsrik planløsning over to etasjer m/ innbydende standard
- Rikelig med lysinnslipp fra store vindusflater på hovedplan
- Plassbygget kjøkkeninnredning av heltre og marmor benkeplate fra 2012
- Bad oppusset i 2012, og varmtvannsbereder fra 2022
- Peisovn
- To rom i underetg., innredet som kjellerstue og soverom
- Utebod på ca. 4,2 m2
- Parkeringsplass (deler med seksjon 2)
- Hyggelig felles forhage m/ eget inngangsparti
NB: Knappen for å vise hele beskrivelsen har kun en visuell effekt.
NB: Knappen for å vise hele beskrivelsen har kun en visuell effekt.
Salgsoppgaven beskriver vesentlig og lovpålagt informasjon om eiendommen
Se komplett salgsoppgaveNærområdet
Aktiv Gamle Oslo/Bjørvika
Annonseinformasjon
| FINN-kode | 408499399 |
|---|---|
| Sist endret | 03. juli 2025 14:22 |
| Referanse | 1002240106 |
Annonsene kan være mangelfulle i forhold til lovpålagt opplysningsplikt. Før bindende avtale inngås oppfordres interessenter til å innhente komplett informasjon fra meglerforetaket, selger eller utleier.







































