Bildegalleri

Våningshus og garasje ble bygget i 2019 og ferdigstilt i 2020.
Solgt
Tvedestrand
BUD MOTTATT! Landbrukseiendom med nyere våningshus og garasje med godkjent leilighet -Jaktrettigheter - Låve med stall
Prisantydning6 390 000 kr
Nøkkelinfo
- Boligtype
- Gårdsbruk/Småbruk
- Eieform
- Eier (Selveier)
- Soverom
- 6
- Internt bruksareal
- 260 m² (BRA-i)
- Bruksareal
- 499 m²
- Eksternt bruksareal
- 239 m² (BRA-e)
- Balkong/Terrasse
- 54 m² (TBA)
- Etasje
- 2
- Byggeår
- 2019
- Energimerking
- B - Oransje
- Rom
- 10
- Tomteareal
- 136 944 m² (eiet)
Fasiliteter
Balkong/Terrasse
Barnevennlig
Bredbåndstilknytning
Garasje/P-plass
Golfbane
Hage
Kjæledyr tillatt
Ingen gjenboere
Offentlig vann/kloakk
Peis/Ildsted
Rolig
Sentralt
Utsikt
Bademulighet
Fiskemulighet
Turterreng
Balansert ventilasjon
Om boligen
Fantastisk eiendom med rett over 136 dekar fordelt på fem parseller. Tomten består av skog, jorder og tun. Det er ca. 6-7 minutter til Tvedestrand sentrum fra eiendommen og det går skolebuss i nærområdet. Det er også idylliske turstier og en badeplass få meter unna, samt kort vei til skole og sjø. Eier har drevet med hest og det er enkelt å tilrettelegge for andre gårdsdyr på eiendommen. Sola skinner her fra tidlig morgen til ca. kl. 21:30 midtsommers. Huset er fra 2019 med gode, praktiske romløsninger. Det tilhører også en stor låve med låvebru og loft, samt dobbel garasje med elporter og leilighet over som pt. er utleid (helårs).
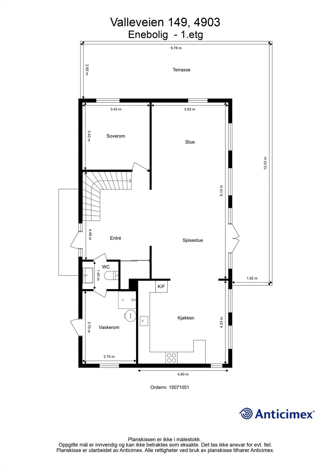
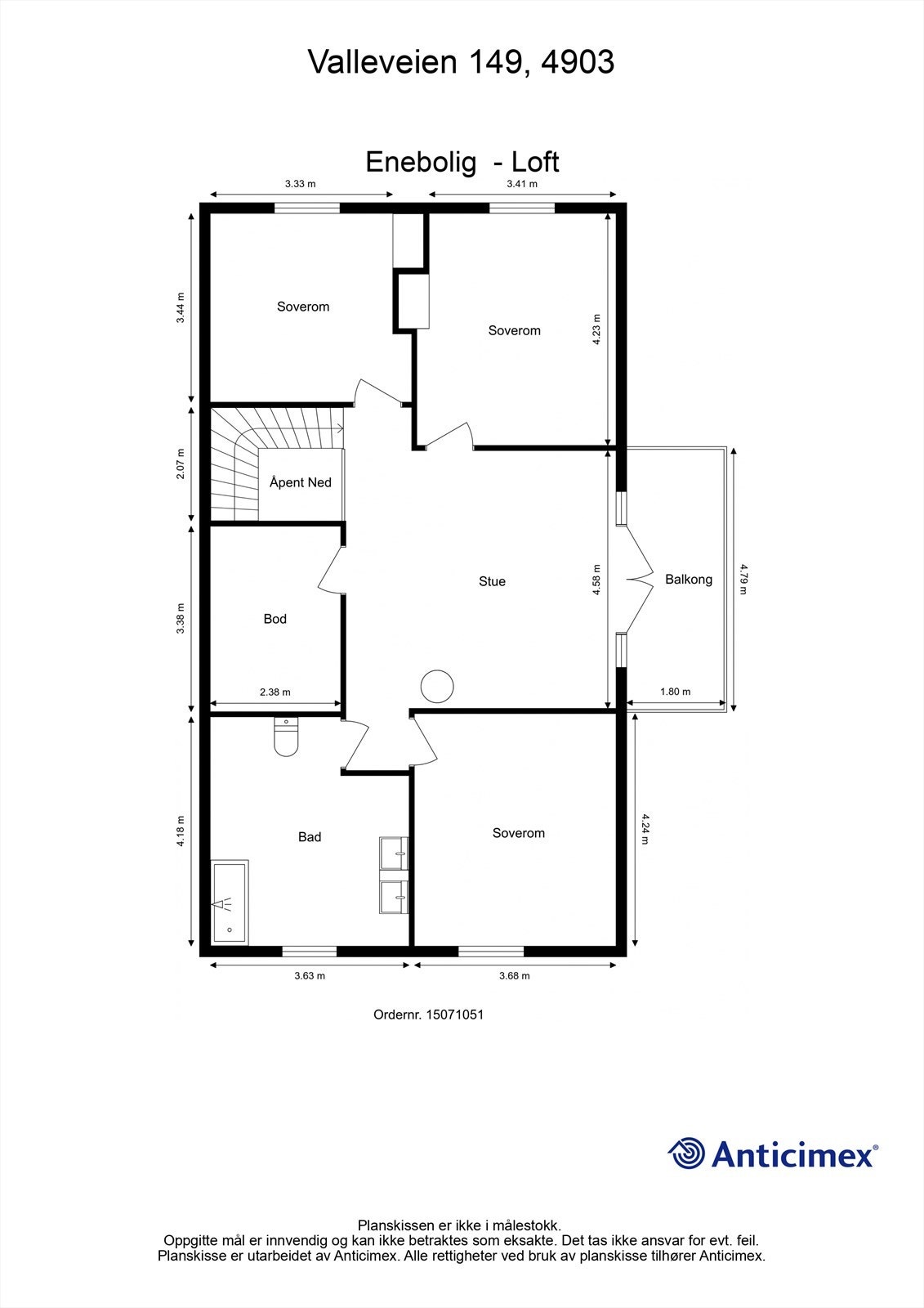
Våningshuset inneholder:
1. etasje: Entré, soverom, stue, spisestue, kjøkken, wc og vaskerom.
2. etasje: Loftstue, tre soverom, bod og baderom.
Våningshuset inneholder:
1. etasje: Entré, soverom, stue, spisestue, kjøkken, wc og vaskerom.
2. etasje: Loftstue, tre soverom, bod og baderom.
NB: Knappen for å vise hele beskrivelsen har kun en visuell effekt.
NB: Knappen for å vise hele beskrivelsen har kun en visuell effekt.
Salgsoppgaven beskriver vesentlig og lovpålagt informasjon om eiendommen
Se komplett salgsoppgaveNyttige lenker
Nærområdet
Krogsveen Arendal
Verdien av en god megler.
Annonseinformasjon
| FINN-kode | 408268734 |
|---|---|
| Sist endret | 05. mars 2026 08:31 |
| Referanse | KR47.2580 |
Annonsene kan være mangelfulle i forhold til lovpålagt opplysningsplikt. Før bindende avtale inngås oppfordres interessenter til å innhente komplett informasjon fra meglerforetaket, selger eller utleier.












































