Bildegalleri

Velkommen til Selvbyggerveien 125 - presentert av Hanne Pettersen i Krogsveen
Solgt
Årvoll/Tonsenhagen
LYCKLIGA GATAN! Sjarmerende enderekkehus med solrik terrasse på hele 60 kvm!- Garasje m/hems - Unik beliggenhet
Prisantydning11 980 000 kr
Nøkkelinfo
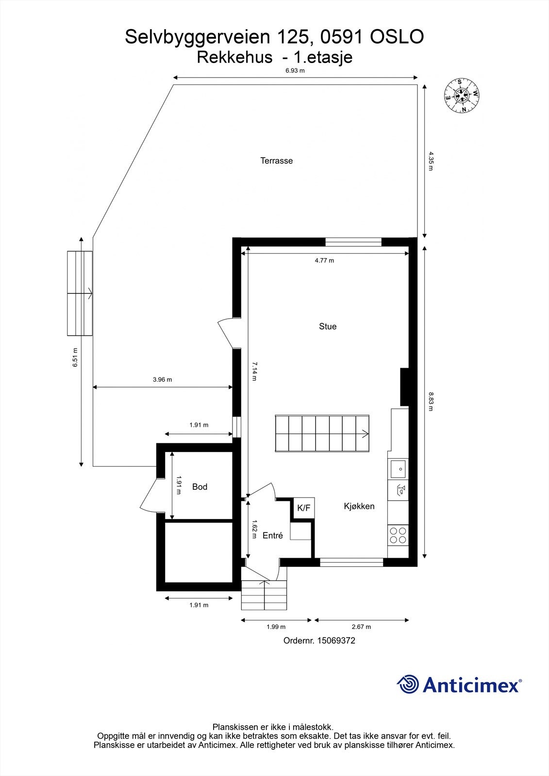
- Boligtype
- Rekkehus
- Eieform
- Andel
- Soverom
- 3
- Internt bruksareal
- 123 m² (BRA-i)
- Bruksareal
- 145 m²
- Eksternt bruksareal
- 22 m² (BRA-e)
- Balkong/Terrasse
- 60 m² (TBA)
- Byggeår
- 1952
- Energimerking
- G - Rød
- Rom
- 4
- Tomteareal
- 13 175 m² (eiet)
Fasiliteter
Alpinanlegg
Balkong/Terrasse
Barnevennlig
Bredbåndstilknytning
Garasje/P-plass
Hage
Kjæledyr tillatt
Ingen gjenboere
Kabel-TV
Offentlig vann/kloakk
Parkett
Peis/Ildsted
Rolig
Sentralt
Utsikt
Vaktmester-/vektertjeneste
Bademulighet
Fiskemulighet
Turterreng
Lademulighet
Om boligen
Sletta borettslag er Tonsenhagens svar på Bakkebygrenda.
Beliggende i markagrensen, omringet av store grøntareal med fotballbaner, lekeparker, skiløyper, slalåmbakke, skøytebane og badedam.
Her løper og sykler barn på bilfrie veier mellom rekkehusene - ren barndomsidyll.
Enderekkehuset vender mot ett enormt fredet grøntareal.
Denne boligen må virkelig oppleves!
Beliggende i markagrensen, omringet av store grøntareal med fotballbaner, lekeparker, skiløyper, slalåmbakke, skøytebane og badedam.
Her løper og sykler barn på bilfrie veier mellom rekkehusene - ren barndomsidyll.
Enderekkehuset vender mot ett enormt fredet grøntareal.
Denne boligen må virkelig oppleves!
- 60 kvm hjørneterrasse m/sol hele dagen
- Utgang til idyllisk, felles hage med gress, eple- og plommetrær og bærbusker
- Peisovn
- 3 luftige soverom
- Kjellerstue (ikke varig oppholdsrom)
- Utvendig bod på 4 kvm rett ved siden ytterdøren
- Garasje på 18 kvm + hems på 9 kvm. Infrastruktur til elbil-lader
- Forhåndsutlyst forkjøpsrett
NB: Knappen for å vise hele beskrivelsen har kun en visuell effekt.
NB: Knappen for å vise hele beskrivelsen har kun en visuell effekt.
Salgsoppgaven beskriver vesentlig og lovpålagt informasjon om eiendommen
Se komplett salgsoppgaveNyttige lenker
Nærområdet
Krogsveen Årvoll
Verdien av en god megler.
Annonseinformasjon
| FINN-kode | 408165129 |
|---|---|
| Sist endret | 08. juni 2025 15:39 |
| Referanse | KR39.2566 |
Annonsene kan være mangelfulle i forhold til lovpålagt opplysningsplikt. Før bindende avtale inngås oppfordres interessenter til å innhente komplett informasjon fra meglerforetaket, selger eller utleier.










































































