Bildegalleri

Velkommen til Ullevålsveien 1!
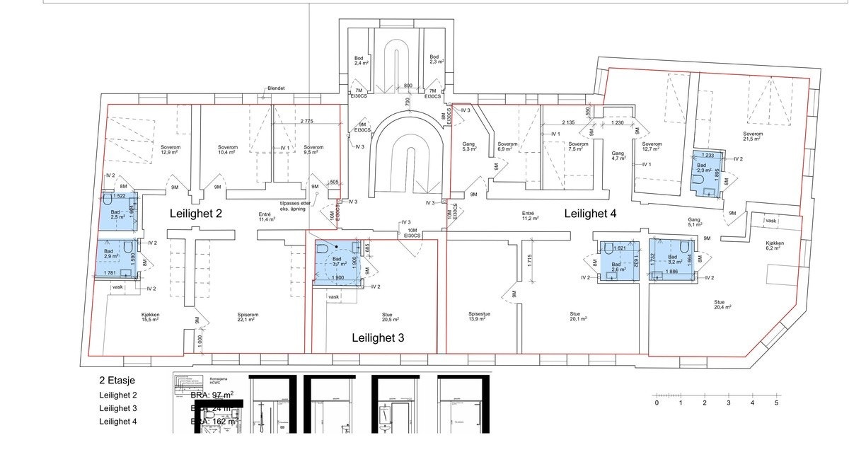
Sentrum - Moderne 4-roms leilighet på 97 m2- Attraktiv og meget sentral beliggenhet
- Månedsleie
- 30 000,–
- Depositum
- 90 000,–
Nøkkelinfo
- Internt bruksareal
- 97 m² (BRA-i)
- Boligtype
- Leilighet
- Soverom
- 3
- Etasje
- 2.
- Leieperiode
- 01.08.2025
Fasiliteter
Beskrivelse
Velkommen til Ullevålsveien 1! Her bor du sentralt, ved St. Olavs plass i bydel St. Hanshaugen. Du har alt du trenger av servicetilbud i gangavstand. Her kommer du deg enkelt rundt i byen eller til alle høyskoler og universiteter med offentlig transport.
Leiligheten 21 (H0201) er på 97 m2 og består av stor stue på 22,1 m2, kjøkken på 15,5 m2 med kjøleskap, oppvaskmaskin og komfyr, 3 romslige soverom hvorav 1 soverom har eget bad og felles bad. Leiligheten leies ut umøblert.
Inventar
Umøblert. Kjøkkenhvitevarer som er integrert medfølger. Andre hvitevarer som måtte stå i leiligheten kan brukes av leietaker i leieforholdet, men byttes ikke ut av utleier dersom defekt.
Internett
Det er grunnpakkehastighet fra Global Connect på 5/5 hastighet inkl. i husleien. Beboere som behøver enda raskere bredbånd kan oppgradere individuelt, til rabatterte priser. TV kjøpes individuelt.
Strøm/oppvarming
Leiligheten varmes opp ved hjelp av panelovner og elektrisitet. Strømabonnement er ikke inkludert i husleien. Dette betyr at leietaker selv tegner eget strømabonnement fra den dato leiekontrakten med oss starter.
Sikkerhetsstillelse
Leietakere kan velge mellom 3 måneders depositum eller leiegaranti tilsvarende 4 måneders husleie.
Leiebetingelser
3års leieavtale. Ni måneders bindingstid og tre måneders oppsigelse etter de ni første måneder. Vi tar referanse- og kredittsjekk av aktuelle leietakere.
Vi tar forbehold om feil i annonsen.
Visning
Hybel.no
Nærområdet
Annonseinformasjon
| FINN-kode | 408136105 |
|---|---|
| Sist endret | 22. juli 2025 08:14 |
| Referanse | leilighet-4-roms-ullevalsveien-1-oslo |
Annonsene kan være mangelfulle i forhold til lovpålagt opplysningsplikt. Før bindende avtale inngås oppfordres interessenter til å innhente komplett informasjon fra meglerforetaket, selger eller utleier.













