Bildegalleri

Grasdalen 35 presenteres av Proaktiv / Ordin Fikstvedt

Solgt
Tånes

Nyere fritidseiendom med nydelig utsikt og usjenert tomt - båtplass i fellesanlegg like ved

Prisantydning4 000 000 kr
Omkostninger
112 850 kr
Totalpris
4 112 850 kr
Kommunale avg.
9 618 kr per år
Formuesverdi
140 250 kr

Nøkkelinfo

Beliggenhet
Ved sjøen
Boligtype
Hytte
Eieform
Eier (Selveier)
Internt bruksareal
122 m² (BRA-i)
Bruksareal
122 m²
Balkong/Terrasse
64 m² (TBA)
Tomteareal
1 854 m² (eiet)
Byggeår
2011
Soverom
4
Rom
5

Les mer om bruksareal her

Fasiliteter

Utsikt
Båtplass

Om boligen

Vi har nå fått for salg en innholdsrik hytte i etablert og populært hyttefelt i Grasdalen


på Tånes. Eiendommen har nydelig havutsikt og gode solforhold samt usjenert tomt.


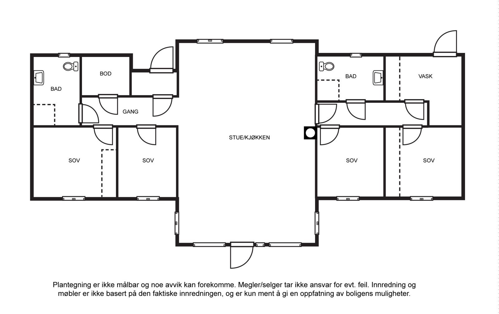
Hytta er bygget i 2011, men fremstår i veldig god stand.  Hytten har en funksjonell og spesiell planløsning,  I stue/kjøkkendelen er det høyt under himlingen.  Det gir en helt spesiell romfølelse.


På hver side av Stue/kjøkken har man soveromsavdelinger. Det er to soverom og ett bad på hver side. Over disse "fløyene" er det praktiske hemser.


 


Innhold: Stue/kjøkken, 4 soverom, 2 bad, bod og vaskerom/(bi-inngang)


Standarden er god med parkett på alle oppholdsrom, foruten baderom som er helfliset.


Vegger er malt i lyse farger.


Fra stuen er det utgang til terrasse med flott utsikt til sjøen. Videre er det montert vedovn i stua.


 


 

Salgsoppgaven beskriver vesentlig og lovpålagt informasjon om eiendommen

Se komplett salgsoppgave

Nærområdet

Annonseinformasjon

FINN-kode408129274
Sist endret29. aug. 2025 10:19
Referanse54250011

Rapporter annonse

Annonsene kan være mangelfulle i forhold til lovpålagt opplysningsplikt. Før bindende avtale inngås oppfordres interessenter til å innhente komplett informasjon fra meglerforetaket, selger eller utleier.