Bildegalleri

Velkommen til Bekkelikroken 4! Foto: Anne Andersen
Skøyen
Kjedet enebolig over 2 plan med stor hage | Flere solrike uteplasser | Usjenert i blindvei | Garasje | Barnevennlig
Prisantydning19 500 000 kr
Nøkkelinfo
- Boligtype
- Enebolig
- Eieform
- Selveier
- Soverom
- 4
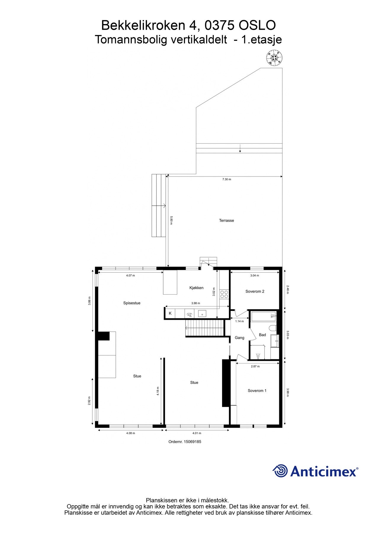
- Internt bruksareal
- 203 m² (BRA-i)
- Bruksareal
- 219 m²
- Eksternt bruksareal
- 16 m² (BRA-e)
- Balkong/Terrasse
- 129 m² (TBA)
- Byggeår
- 1962
- Energimerking
- Tomteareal
- 717 m² (eiet)
Fasiliteter
Barnevennlig
Balkong/Terrasse
Garasje/P-plass
Kabel-TV
Offentlig vann/kloakk
Parkett
Peis/Ildsted
Turterreng
Sentralt
Bredbåndstilknytning
Moderne
Rolig
Lademulighet
Om boligen
Velkommen til Bekkelikroken 4. Kjedet enebolig med meget gode solforhold beliggende i et rolig og attraktivt område. Sentralt med enkel adkomst til Frognerparken, Majorstuen, Skøyen og en kort sykkeltur til badestrender på Bygdøy. Offentlig kommunikasjon på Borgen og Hoff. Boligen er ett av 12 tilsvarende hus i en liten blindvei.
Boligen går over to fulle etasjer og har god planløsning med fleksibel bruk. Det er store, solrike uteområder med sol fra morgen til kveld.
Verdt å merke seg:
- Hovedetasje ble renovert i 2013
- Uteområde på baksiden av huset etablert i 2015.
- Nytt tak, isolert loft, ny fasade og nye vinduer i 2018.
- Underetasje renovert i 2019/2020, med plassbyggede garderobeløsninger, nytt bad og nytt, flislagt vaskerom
- 4 soverom og 2 bad. Muligheter for 5 soverom.
- Plassbygget hyller og skap i begge stuene.
- Garasje med elbillader
- Sogner til Skøyen skole
- Boligen fremstår som kjedet enebolig, men er registrert som vertikaldelt tomannsbolig.
Velkommen!
Boligen går over to fulle etasjer og har god planløsning med fleksibel bruk. Det er store, solrike uteområder med sol fra morgen til kveld.
Verdt å merke seg:
- Hovedetasje ble renovert i 2013
- Uteområde på baksiden av huset etablert i 2015.
- Nytt tak, isolert loft, ny fasade og nye vinduer i 2018.
- Underetasje renovert i 2019/2020, med plassbyggede garderobeløsninger, nytt bad og nytt, flislagt vaskerom
- 4 soverom og 2 bad. Muligheter for 5 soverom.
- Plassbygget hyller og skap i begge stuene.
- Garasje med elbillader
- Sogner til Skøyen skole
- Boligen fremstår som kjedet enebolig, men er registrert som vertikaldelt tomannsbolig.
Velkommen!
NB: Knappen for å vise hele beskrivelsen har kun en visuell effekt.
NB: Knappen for å vise hele beskrivelsen har kun en visuell effekt.
Salgsoppgaven beskriver vesentlig og lovpålagt informasjon om eiendommen
Se komplett salgsoppgaveNyttige lenker
Nærområdet
EIE eiendomsmegling Vinderen
Annonseinformasjon
| FINN-kode | 408115128 |
|---|---|
| Sist endret | 03. apr. 2026 14:40 |
| Referanse | 31250051 |
Annonsene kan være mangelfulle i forhold til lovpålagt opplysningsplikt. Før bindende avtale inngås oppfordres interessenter til å innhente komplett informasjon fra meglerforetaket, selger eller utleier.














































