Bildegalleri

B E K K E L I V E I E N 106 - En skreddersydd bolig med eksklusive material valg!
K O L B O T N
Arkitekttegnet funkisbolig tegnet av Shark Arkitekter- gjennomtenkte løsninger og materialvalg -dbl garasje - utleiedel
Prisantydning15 500 000 kr
Nøkkelinfo
- Boligtype
- Enebolig
- Eieform
- Eier (Selveier)
- Soverom
- 4
- Internt bruksareal
- 206 m² (BRA-i)
- Bruksareal
- 242 m²
- Eksternt bruksareal
- 36 m² (BRA-e)
- Balkong/Terrasse
- 124 m² (TBA)
- Byggeår
- 2016
- Energimerking
- B - Mørkegrønn
- Tomteareal
- 794 m² (eiet)
Fasiliteter
Takterrasse
Balkong/Terrasse
Barnevennlig
Bredbåndstilknytning
Garasje/P-plass
Offentlig vann/kloakk
Utsikt
Lademulighet
Balansert ventilasjon
Visning
NB! For å delta på visning, ber vi om at du melder deg på. Da sikrer vi at du får nødvendig informasjon og at det er satt av tilstrekkelig med tid. Kontakt megler dersom annet tidspunkt ønskes. Husk å lese salgsoppgaven før visningen, så du stiller forberedt.
Ønsker du kun å bli holdt orientert, kan du fra eiendommens hjemmeside få varsel om solgtpris, eller kontakte megler.
VisningspåmeldingOm boligen
Unik mulighet for kjøperen som ønsker seg det beste! Boligen har svært ettertraktet beliggenhet med utsikt og gode solforhold, i et veletablert villaområde på toppen av Kolbotn
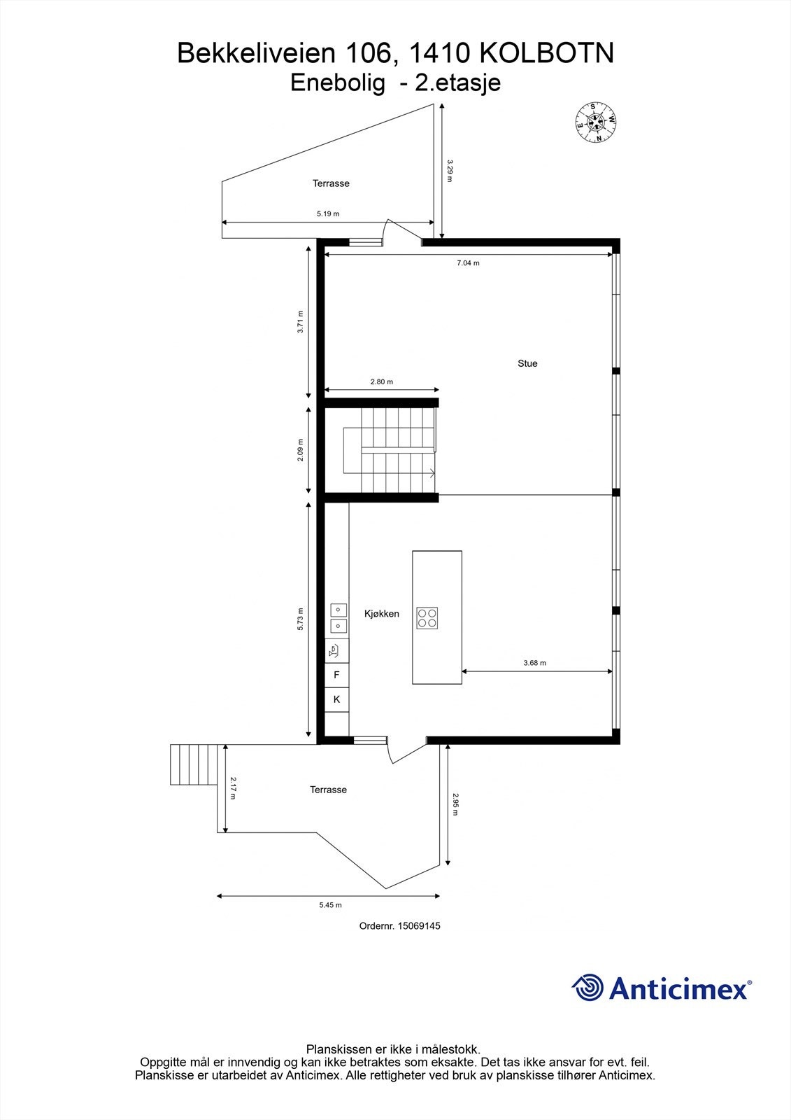
- Inneholder bl.a. stue, kjøkken, 2 bad, vaskerom, 4 soverom og walk-in-closet.
- Gjennomgående, skreddersydde og eksklusive materialvalg
- Balansert ventilasjon i hele boligen
- Vannbåren gulvvarme i hele boligen
- Boligen har en solrik takterrasse på 98 m² med flott utsikt over Kolbotnvannet, mot Oslo og helt til Norefjell
- To solrike uteplasser på ca. 14m² og 12m²
- Integrert dobbel garasje m/ 2 EL-billader(TESLA) og gulvvarme
- Utleiedel på ca 35m²
- Easy living!
NB: Knappen for å vise hele beskrivelsen har kun en visuell effekt.
NB: Knappen for å vise hele beskrivelsen har kun en visuell effekt.
Salgsoppgaven beskriver vesentlig og lovpålagt informasjon om eiendommen
Se komplett salgsoppgaveNyttige lenker
Nærområdet
Krogsveen Kolbotn
Verdien av en god megler.
Annonseinformasjon
| FINN-kode | 408034004 |
|---|---|
| Sist endret | 16. jan. 2026 15:27 |
| Referanse | KR49.2531 |
Annonsene kan være mangelfulle i forhold til lovpålagt opplysningsplikt. Før bindende avtale inngås oppfordres interessenter til å innhente komplett informasjon fra meglerforetaket, selger eller utleier.









































