Bildegalleri

Din lokale eiendomsmegler Notar v/Anders Havneraas presenterer Torjulvågveien 580!
Solgt
Sjarmerende eiendom med solrik beliggenhet i Torjulvågen!
Prisantydning1 290 000 kr
- Omkostninger
- 33 340 kr
- Totalpris
- 1 323 340 kr
- Kommunale avg.
- 15 781 kr per år
Nøkkelinfo
- Beliggenhet
- Ved sjøen
- Boligtype
- Enebolig
- Eieform
- Eier (Selveier)
- Internt bruksareal
- 77 m² (BRA-i)
- Bruksareal
- 119 m²
- Eksternt bruksareal
- 42 m² (BRA-e)
- Tomteareal
- 1 215 m² (eiet)
- Byggeår
- 1939
- Soverom
- 3
- Rom
- 4
- Energimerking
- G - Oransje
- Overtakelse
- Etter avtale. Angi ønsket overtagelse ved budgivningen.
Fasiliteter
Innlagt vann
Balkong/Terrasse
Barnevennlig
Bilvei frem
Garasje/P-plass
Hage
Peis/Ildsted
Rolig
Innlagt strøm
Offentlig vann/kloakk
Turterreng
Om boligen
Din lokale eiendomsmegler Notar v/Anders Havneraas presenterer Torjulvågveien 580! Flott eiendom som består av helårsbolig (pt benyttet som fritidsbolig), garasje, lekestue, lysthus og drivhus. Pent opparbeidet, inngjerdet tomt med frukttrær, plen og blomsterbed. Sol "hele dagen" (8-22) ifølge selger .
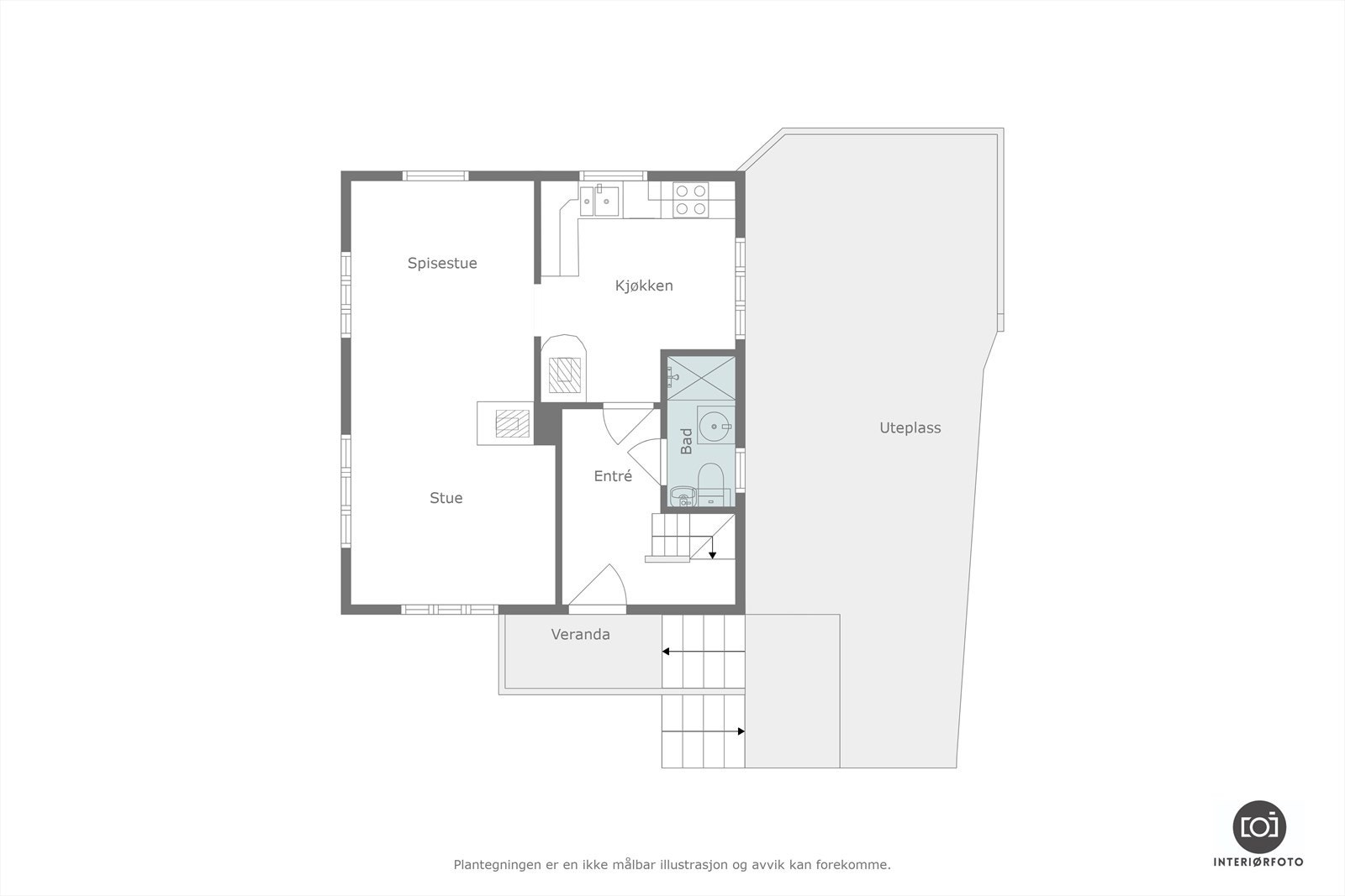
Boligen inneholder stue, spisestue, kjøkken, bad, 3 soverom (lav takhøyde, se salgsoppgave), vaskerom, badstue og div boder. Garasje på 42 kvm med gode lagringsmuligheter, samt overbygd uteplass. Det er montert markise både ved garasje og boligen.
Barnevennlig og rolig beliggenhet med fotballbane og felles grillhus like ved. God turmuligheter sommer som vinter, med oppkjøre skispor for både store og små skiløpere.
Vi ønsker velkommen til visning!
Boligen inneholder stue, spisestue, kjøkken, bad, 3 soverom (lav takhøyde, se salgsoppgave), vaskerom, badstue og div boder. Garasje på 42 kvm med gode lagringsmuligheter, samt overbygd uteplass. Det er montert markise både ved garasje og boligen.
Barnevennlig og rolig beliggenhet med fotballbane og felles grillhus like ved. God turmuligheter sommer som vinter, med oppkjøre skispor for både store og små skiløpere.
Vi ønsker velkommen til visning!
NB: Knappen for å vise hele beskrivelsen har kun en visuell effekt.
NB: Knappen for å vise hele beskrivelsen har kun en visuell effekt.
Salgsoppgaven beskriver vesentlig og lovpålagt informasjon om eiendommen
Se komplett salgsoppgaveNærområdet
Notar Kristiansund
God magefølelse
Annonseinformasjon
| FINN-kode | 407976750 |
|---|---|
| Sist endret | 01. sep. 2025 11:16 |
| Referanse | NO4.25145 |
Annonsene kan være mangelfulle i forhold til lovpålagt opplysningsplikt. Før bindende avtale inngås oppfordres interessenter til å innhente komplett informasjon fra meglerforetaket, selger eller utleier.













































