Bildegalleri

Fasade
Solgt
BUD MOTTATT! Fritidsbolig med to anneks og utebod. Flott beliggenhet på Hesthagan på Øydegard i Tingvoll
Prisantydning1 490 000 kr
- Omkostninger
- 38 340 kr
- Totalpris
- 1 528 340 kr
- Kommunale avg.
- 12 517 kr per år
Nøkkelinfo
- Beliggenhet
- Ved sjøen
- Boligtype
- Hytte
- Eieform
- Eier (Selveier)
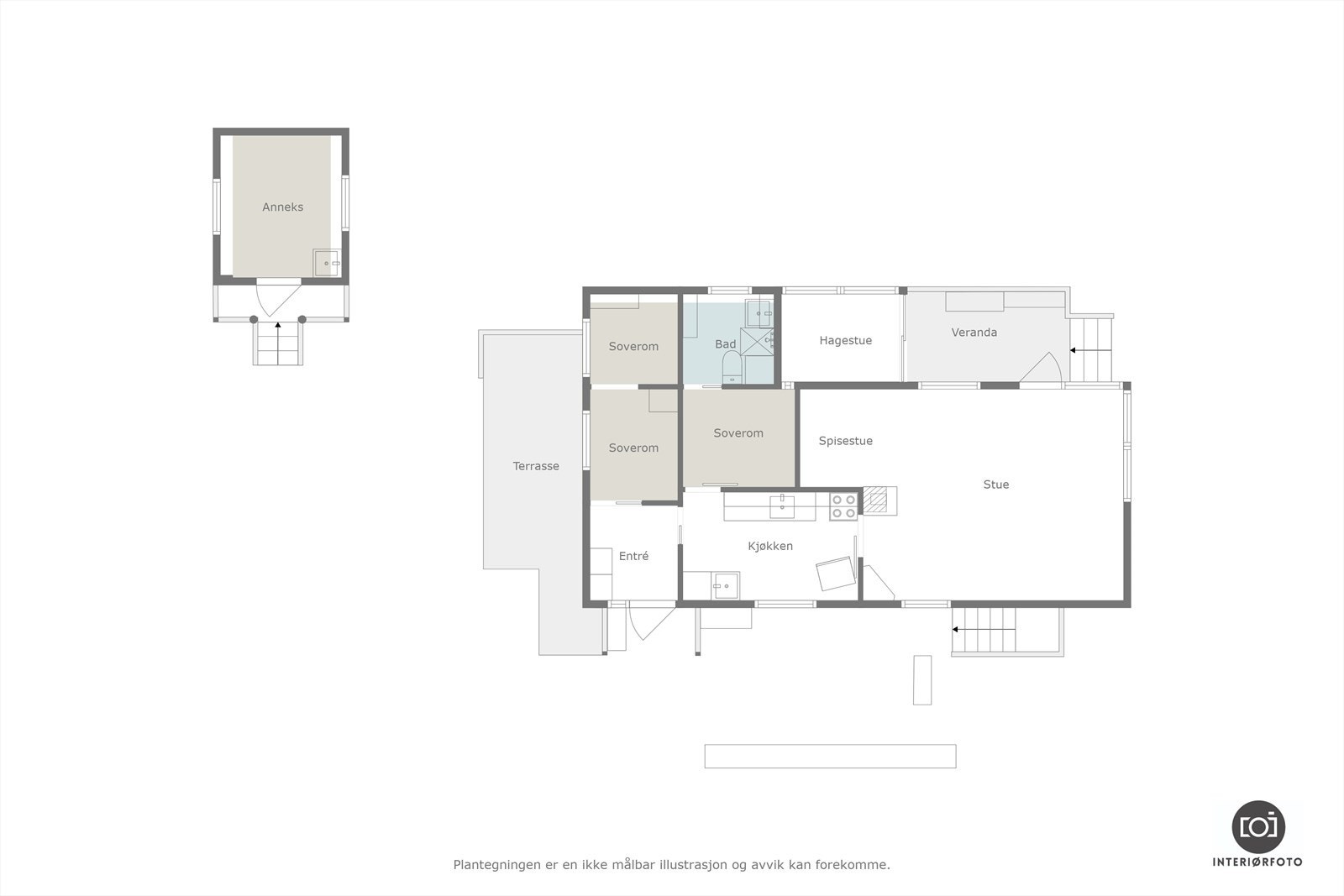
- Internt bruksareal
- 55 m² (BRA-i)
- Bruksareal
- 83 m²
- Eksternt bruksareal
- 23 m² (BRA-e)
- Innglasset balkong
- 5 m² (BRA-b)
- Balkong/Terrasse
- 47 m² (TBA)
- Tomteareal
- 1 761 m² (eiet)
- Byggeår
- 1961
- Soverom
- 3
- Energimerking
- G - Oransje
- Overtakelse
- Etter avtale. Angi ønsket overtagelse ved budgivningen.
Fasiliteter
Innlagt vann
Balkong/Terrasse
Barnevennlig
Bilvei frem
Golfbane
Hage
Peis/Ildsted
Rolig
Utsikt
Bademulighet
Fiskemulighet
Innlagt strøm
Turterreng
Om boligen
Din lokale eiendomsmegler Aleksander Faksvåg Talgø har gleden av å presentere Hesthagan 10. Fritidsboligen ligger fint til på en høyde i Hesthagan på Øydegard i Tingvoll kommune. Hytta ble oppført i 1961 og inneholder entrè, gang, stue, kjøkken, bad og 3 soverom. I tillegg er det to anneks benyttet til soverom og utebod. Tomta er pent opparbeidet og har flott utsikt ut over Langsetvågen med flott solgang. Det er innlagt vann og strøm. Bilvei frem til tomten. Kort kjøretur til "Fjordkroa" med dagligvarebutikk etc. og golfbane. I tillegg er det mange flotte tur- og rekreasjonsområder både ved sjø og fjell i området. Velkommen til visning!
NB: Knappen for å vise hele beskrivelsen har kun en visuell effekt.
NB: Knappen for å vise hele beskrivelsen har kun en visuell effekt.
Salgsoppgaven beskriver vesentlig og lovpålagt informasjon om eiendommen
Se komplett salgsoppgaveNærområdet
Notar Kristiansund
God magefølelse
Annonseinformasjon
| FINN-kode | 407814137 |
|---|---|
| Sist endret | 01. sep. 2025 11:23 |
| Referanse | NO4.25179 |
Annonsene kan være mangelfulle i forhold til lovpålagt opplysningsplikt. Før bindende avtale inngås oppfordres interessenter til å innhente komplett informasjon fra meglerforetaket, selger eller utleier.









































