Bildegalleri

Kjøkken
Oslo sentrum - Lyse kontorlokaler i 5.etg
Nøkkelinfo
- Areal
- 302 m²
- Etasje
- 5.
- Overtakelse
- Etter avtale
Type lokale
Fasiliteter
Om eiendommen
Eiendommen Grensen 18 ligger meget sentralt til i sentrum med trikkeholdeplass og nedgang til T-banestasjonen Stortinget rett utenfor eiendommen. Det er kun 5 minutters gange til Nationaltheatret med alt av offentlig kommunikasjon. Eiendommens plassering gir meget god tilgjengelighet til lokalene for ansatte og besøkende. Tinghuset og Karl Johans gate ligger like ved. Mange hyggelige kaffebarer i området.
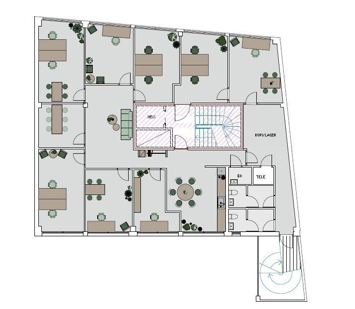
Det ledige arealet ligger 5. etasje og er på 302 kvm brutto og 257 kvm netto. Nåværende planløsning består av kontorer i ulike størrelser møterom, sosiale soner og åpen kjøkkenløsning, se plantegning.
Det er gode mulighet for profilering på eiendommen, se bilder med logoer på fasaden.
Matrikkelinformasjon
Visning
Ta kontakt for å avtale visning.Thon Eiendom
Lisen Fundingsland
Nærområdet
Annonseinformasjon
| FINN-kode | 407528826 |
|---|---|
| Sist endret | 15. juli 2025 08:21 |
| Referanse | Eline Høyte Tofte |
Annonsene kan være mangelfulle i forhold til lovpålagt opplysningsplikt. Før bindende avtale inngås oppfordres interessenter til å innhente komplett informasjon fra meglerforetaket, selger eller utleier.







